Spatiu comercial de vanzare, Arad Confectii

122.850 €
2,613.83 € / mp

Confecţii, Arad

Suprafață utilă totală:
47,25 mp
An construcție:
2026

Descriere spațiu comercial

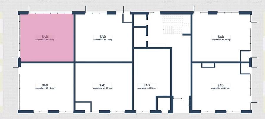
Vă propunem spre vânzare un spațiu comercial modern, situat la parter, cu o suprafață utilă de 47.25 mp și înălțime generoasă de 3,8 m, ideal pentru diverse activități comerciale sau investiționale. Proprietatea beneficiază de două fronturi stradale, oferind vizibilitate excelentă și acces facil, fiind potrivită pentru showroom, birouri, salon, magazin sau alte activități comerciale. Zona este în dezvoltare și are cerere în creștere pentru servicii și spații comerciale, ceea ce face ca acest spațiu să fie o oportunitate foarte bună atât pentru business propriu, cât și pentru investiție în vederea închirierii. Detalii proprietate: • Suprafață utilă: 47.25 mp • Etaj: Parter • Înălțime spațiu: 3,8 m • 2 fronturi stradale • Vizibilitate foarte bună • Predare: 2026 Fiecare spatiu comercial se vinde cu minim 3 locurim de parcare! Utilități și dotări: • Aer condiționat • Gaz • Apă • Canalizare • Curent electric Spațiul este potrivit pentru: showroom birouri salon beauty / clinică magazin cafenea sau alte activități comerciale Pentru mai multe informații sau programarea unei vizionări, vă stau la dispoziție. Marușca Gabriel – Consultant imobiliar Telefon: E-mail:
Citește mai mult Citește mai puțin

Detalii spațiu comercial

ID anunț: 3876833 Actualizat în: 18 Martie 2026
Suprafață utilă: 47,25 mp
Suprafață utilă totală: 47,25 mp
An construcție: 2026

Istoric preț

Facilități

Utilități
Curent Apă Canalizare Gaze

Puncte de interes

Mijloace transport
transport
Aeroportul International Arad
Mijloace transport aprox. 1445 m
transport
Electrometal
Mijloace transport aprox. 1763 m
transport
Electrometal
Mijloace transport aprox. 1770 m
transport
Fortuna
Mijloace transport aprox. 1992 m
Școală
education
U.V. Vasile Goldis
Învățământ aprox. 518 m
education
U.V.V.G Facultatea de Stiinte ale Naturii Inginerie si Informatica
Învățământ aprox. 533 m
education
U.V. Vasile Goldis Campus Universitar
Învățământ aprox. 595 m
education
Generaa 8
Învățământ aprox. 1054 m
Recreere
restaurants
Ire Di Napoli
Restaurante aprox. 738 m
parks
Teren sportiv
Recreere aprox. 1205 m
shopping
Alimentara Non Stop
Supermarket/Mall aprox. 1566 m
shopping
Lelia's Market
Supermarket/Mall aprox. 1572 m

Proprietăți similare

Spațiu comercial, de 83 mp, în Central
120.001 €
Arad, Central
83 mp utili
120 mp teren
7E
Spațiu comercial, de 75 mp, în Malul Mureșului
135.000 €
Arad, Malul Mureșului
75 mp utili
1E
1990
Spațiu comercial, de 68 mp, în Central
129.900 €
Arad, Central
68 mp utili
1E
1902
Spațiu comercial, de 49.779998779297 mp, în Pârneava
119.472 €
Arad, Pârneava
49,78 mp utili
4E
2025
Spațiu comercial, de 90 mp, în Ultracentral
115.000 €
Arad, Ultracentral
90 mp utili
Spațiu comercial, de 800 mp, în Ineu
120.000 €
Județul Arad, Ineu
800 mp utili
966 mp teren
Spațiu comercial, de 225 mp, în Satu Mare
119.000 €
Județul Arad, Satu Mare
225 mp utili
1950
Spațiu comercial, de 1,000 mp, în Conop
135.000 €
Județul Arad, Conop
1.000 mp utili

Abonează-te la newsletter să fii primul care primește cele mai noi recomandări de proprietăți și sfaturi de la experți.