7 luni în urmă
19
- Agenție
Cladire de birouri servicii, 1000 mp , semicentral, Timisoara
€ 10
/ lună
Nord, Timişoara
Descriere
Raportează anunț
Sesizează o problemă
Cladire de birouri servicii, 1000 mp , semicentral, Timisoara
Cladire de birouri servicii, 1000 mp , semicentral, Timisoara
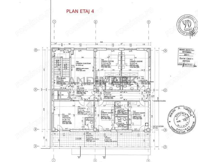
LANDMARK ofera spre inchiriere o cladire de birouri situata innbsp; zona istoricanbsp; IOSEFINnbsp; pe malul raului Bega, vedere deosebita,nbsp; la o distanta de aprovimativ 1500 m fata de centrul orasului. Regimul de inaltime este S+P+4E cu urmatoarea compartimentare : Subsol =nbsp; 287 mp utili,nbsp; compus dinnbsp; parcare auto 8 locurinbsp; , centrala termica, spatii depozitare, grup sanitar Parternbsp; = 102 mp utili,, compus dinnbsp; hol acces, receptie, lift, casa scarii, spatii birouri , camera tehnica, curte privata cu acces controlat,nbsp; parcare auto 4 locuri.nbsp; Etajelenbsp; 1,2,3 =nbsp; 260 mp utili nivel, compuse din spatii birouri open space, grupuri sanitare, oficiu, lift, casa scarii Etaj 4 =nbsp; 192 mp utili - compus din sala consiliu, oficiu, grupuri sanitare, 3 camerenbsp; regim hotelier cu baie proprie , terasa deschisanbsp; 42 mpnbsp; Cladirea dispune de centrala proprie pe gaz,nbsp; sistem de ventilatie si aer conditionat, fatada de sticla, acces auto automatizatnbsp; In proximitatenbsp; se afla multiple mijloace de transport, tramvai, autobuz, zona comerciala, Gara de Nord. Pretul chiriei solicitat de proprietar este denbsp; 10 Euro mp + TVAnbsp; . ID intern 210642 nbsp; ID anun? : 1767620715
Citește mai mult
Citește mai puțin
ID anunț: 989219
Actualizat în: 07 Ianuarie 2026
Suprafață utilă:
287 mp
Suprafață utilă totală:
287 mp
Istoric preț
Proprietăți similare
Abonează-te la newsletter să fii primul care primește cele mai noi recomandări de proprietăți și sfaturi de la experți.
Căutări similare
- Spații comerciale de închiriat în Nord
- Spații comerciale de închiriat în Timișoara
- Spații comerciale de închiriat în Central
- Spații comerciale de închiriat în Lipovei
- Spații comerciale de închiriat în Șagului
- Spații comerciale de închiriat în Torontalului
- Spații comerciale de închiriat în Complex Studențesc
- Spații comerciale de închiriat în Ultracentral
- Spații comerciale de închiriat în Aradului
- Spații comerciale de închiriat în Freidorf
- Spații comerciale de închiriat în Iosefin
- Spații comerciale de închiriat în Elisabetin