Spatiu comercial, 674.81 mp, zona Complex Studentesc

6.500 € / lună
9.64 € / mp / lună

Complex Studenţesc, Timişoara

Suprafață utilă totală:
674 mp

Descriere spațiu comercial

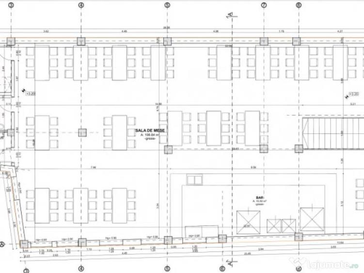
Blitz va prezinta pentru inchiriere un spatiu comercial generos, gandit si compartimentat pentru activitati din domeniul HoReCa si evenimente de zi, cu functionalitate clara si infrastructura completa. Imobilul este dispus pe 3 nivele (Parter + Etaj + Pod Inalt), avand o suprafata utila totala de 674.81 mp, oferind o separare logica a fluxurilor pentru clienti si personal. Parterul este amenajat cu: -zona de bucatarie -zona dedicata clientilor -zona de bar -grup sanitar pentru clienti -2 grupuri sanitare pentru angajati -zona de vestiar Etajul dispune de: -zona de bar -zona de clienti -grup sanitar pentru clienti Podul Inalt, cu o suprafata utila de 221.94mp, ofera spatiu suplimentar flexibil, ce poate fi adaptat Spatiul beneficiaza de acces separat pentru marfa in curte, facilitand aprovizionarea fara a interfera cu zona de clienti. Confortul si controlul utilitatilor sunt asigurate prin centrala termica proprie si panou electric separat pentru fiecare nivel, oferind flexibilitate si eficienta in exploatare. In plus, imobilul este dotat cu: sistem de supraveghere video, autorizatie ISU, un avantaj major pentru demararea rapida a activitatii. Destinatia spatiului este pretabila pentru Pub, Fast Food sau Evenimente de zi, fiind pregatit pentru functionare cu investitii minime suplimentare. Conditii de inchiriere: -Perioada contractuala minima: 5 ani -Garantie: 18.000 euro, cu posibilitatea achitarii in transe, de comun acord Daca doresti sa-ti deschizi o afacere cu un minim de investitie, nu ezita sa ne contactezi si sa programam o vizionare. Cod oferta / ID BLITZ: P163158 Id intern: P163158 Stadiu constructie: Finalizat Tip imobil: Casa/Vila Publicat prin , vezi anuntul complet aici.
Citește mai mult Citește mai puțin

Detalii spațiu comercial

ID anunț: 3380470 Actualizat în: 05 Februarie 2026
Suprafață utilă: 674 mp
Suprafață utilă totală: 674 mp

Istoric preț

Puncte de interes

Mijloace transport
transport
Statie Vasile Parvan E8
Mijloace transport aprox. 68 m
transport
Leonardo da Vinci
Mijloace transport aprox. 153 m
transport
Statie Complex studentesc E7, E8, E3
Mijloace transport aprox. 327 m
transport
Leonardo da Vinci
Mijloace transport aprox. 339 m
Școală
education
Universitatea Dimitrie Cantemir
Învățământ aprox. 26 m
education
Universitatea Tibiscus
Învățământ aprox. 306 m
education
Gradinita Program Prelungit Nr. 45
Învățământ aprox. 405 m
education
Scoala generala nr. 28
Învățământ aprox. 437 m
Recreere
restaurants
WakeUp
Restaurante aprox. 14 m
parks
ZHH Termal
Recreere aprox. 163 m
shopping
Profi
Supermarket/Mall aprox. 175 m
shopping
Profi City
Supermarket/Mall aprox. 375 m

Proprietăți similare

Spațiu comercial, de 425 mp, în Complex Studențesc
6.500 € / lună
Timișoara, Complex Studențesc
425 mp utili
Spațiu industrial, de 1,400 mp, în Lugojului
6.720 € / lună
Timișoara, Lugojului
1.400 mp utili
2007
Spațiu comercial, de 600 mp, în Central
7.000 € / lună
Timișoara, Central
600 mp utili
Spațiu comercial, în Telegrafului
6.000 € / lună
Timișoara, Telegrafului
2E
Spațiu comercial, de 519 mp, în Central
7.000 € / lună
Timișoara, Central
519 mp utili
Spațiu comercial, de 602 mp, în Medicină
6.400 € / lună
Timișoara, Medicină
602 mp utili
1E
Spațiu comercial, de 425 mp, în Traian
6.500 € / lună
Timișoara, Traian
425 mp utili
2017
Spațiu comercial, de 1,400 mp, în Buziașului
6.300 € / lună
Timișoara, Buziașului
1.400 mp utili
Spațiu comercial, de 587 mp, în Central
5.900 € / lună
Timișoara, Central
587 mp utili

Abonează-te la newsletter să fii primul care primește cele mai noi recomandări de proprietăți și sfaturi de la experți.