Inchiriez spatiu comercial situat ultracentral - Nicolae Balcescu,72m,pt cafenea

2.503 € / lună
34.76 € / mp / lună

Ultracentral, Sibiu

Suprafață utilă totală:
72 mp
Nr. niveluri:
1
An construcție:
1940

Descriere spațiu comercial

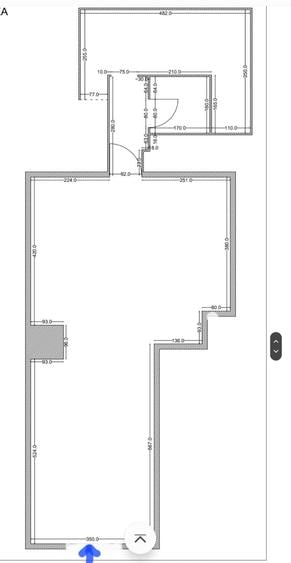
Agentia imobiliara Piedra va propune spre inchiriere un spatiu comercial situat ultracentral pe Nicolae Balcescu,la parter, cu vitrina la bulevard. Spatiul are o suprafata de 72mp si este format dintr-o incapere open space, hol,grup sanitar si un spatiu de depozitare. Spatiul are schimbarea de destinatie facuta in alimentatie publica si este pretabil pentru cafenea,cofetarie,fast-food. In fata spatiului se poate scoate terasa. Spatiul este amenajat si are toate dotarile moderne. Pret 2500Euro+TVA Pentru mai multe detalii si alte oferte , vizitati si site-ul agentiei imobiliare Piedra ,rubrica Inchirieri spatii comerciale
Citește mai mult Citește mai puțin

Detalii spațiu comercial

ID anunț: 3767919 Actualizat în: 09 Martie 2026
Suprafață utilă: 72 mp
Suprafață utilă totală: 72 mp
Regim înălțime: P+1E
An construcție: 1940

Istoric preț

Facilități

Utilități
Curent Canalizare Apă

Puncte de interes

Mijloace transport
transport
Nufarul
Mijloace transport aprox. 170 m
transport
Teatru
Mijloace transport aprox. 218 m
transport
A. Saguna
Mijloace transport aprox. 256 m
transport
Casa Armatei
Mijloace transport aprox. 325 m
Școală
education
Scoala speciala
Învățământ aprox. 239 m
education
Scoala Generala Nr. 15
Învățământ aprox. 344 m
education
Laboratoare ULBS
Învățământ aprox. 407 m
education
Liceul de Arte
Învățământ aprox. 411 m
Recreere
restaurants
Unicum
Restaurante aprox. 33 m
shopping
Galeriile Pacea
Supermarket/Mall aprox. 90 m
parks
Parc
Recreere aprox. 132 m
shopping
BILLA Balcescu
Supermarket/Mall aprox. 134 m

Proprietăți similare

Spațiu comercial, de 100 mp, în Sub Arini
2.500 € / lună
Sibiu, Sub Arini
100 mp utili
Spațiu comercial, de 335 mp, în Turnișor
2.500 € / lună
Sibiu, Turnișor
335 mp utili
Spațiu comercial, de 380 mp, în Terezian
2.501 € / lună
Sibiu, Terezian
380 mp utili
Spațiu industrial, de 600 mp, în Industrial Est
2.400 € / lună
Sibiu, Industrial Est
600 mp utili
1E
2000
Spațiu comercial, de 300 mp, în Central
2.550 € / lună
Sibiu, Central
300 mp utili
1E
1990
Spațiu industrial, de 570 mp, în Broscărie
2.600 € / lună
Sibiu, Broscărie
570 mp utili
500 mp teren
Spațiu comercial, de 150 mp, în Calea Dumbrăvii
2.500 € / lună
Sibiu, Calea Dumbrăvii
150 mp utili
Spațiu comercial, de 33 mp, în Calea Dumbrăvii
2.500 € / lună
Sibiu, Calea Dumbrăvii
33 mp utili
Spațiu comercial, de 103 mp, în Central
2.575 € / lună
Sibiu, Central
103 mp utili
3E
2023

Abonează-te la newsletter să fii primul care primește cele mai noi recomandări de proprietăți și sfaturi de la experți.