Teren intravilan 536 mp cu deschidere de 14 m Piata Cluj

230.000 € / lună
429.10 € / mp / lună

Piaţa Cluj, Sibiu

Suprafață teren:
536 mp

Descriere spațiu comercial

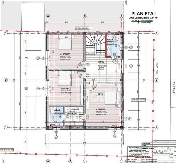
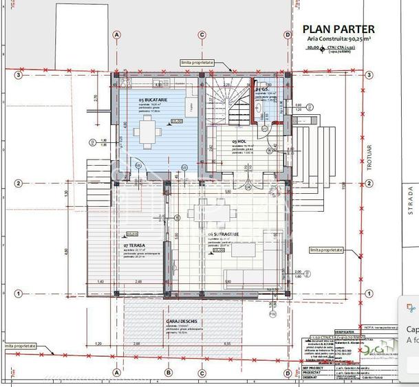
Teren intravilan 536 mp cu deschidere de 14 m proiect si autorizatie de construire incluse Va propunem spre vanzare un teren intravilan complet pregatit pentru constructie, cu o suprafata totala de 536 mp si o deschidere de 14 metri la strada, ideal pentru dezvoltarea unei locuinte moderne, asa cum este proiectul prezentat in imagine. Caracteristici teren: Suprafata totala: 536 mp Deschidere la strada: 14 ml Regim juridic: Intravilan, construibil Utilitati: apa, canalizare, gaz, energie electrica toate la limita proprietatii Acces: drum asfaltat / amenajat Topografie: teren drept, excelent pentru constructie fara costuri suplimentare de terasament Avantaje: Terenul beneficiaza deja de autorizatie de construire, ideal pentru cei care doresc sa inceapa lucrarile imediat. Proiectul aprobat include o casa moderna S+P+E, cu terase generoase, parcare pentru mai multe masini si un concept arhitectural actual. Zona este formata exclusiv din case, oferind intimitate si un mediu linistit. Pozitionare foarte buna, potrivita atat pentru locuinta proprie, cat si pentru investitie. Destinatie ideala: locuinta familiala moderna investitie (inchiriere pe termen lung / dezvoltare) Pret: 230.000 Negociabil Telefon: (folosesti formularul de contact)- Rares
Citește mai mult Citește mai puțin
ID anunț: 3439572 Actualizat în: 02 Aprilie 2026

Istoric preț

Puncte de interes

Mijloace transport
transport
Campului 1
Mijloace transport aprox. 100 m
transport
Campului 2
Mijloace transport aprox. 113 m
transport
Paris 1
Mijloace transport aprox. 238 m
transport
Paris 2
Mijloace transport aprox. 241 m
Școală
education
Scoala cu Clasele I - VIII NR. 12 Sibiu
Învățământ aprox. 466 m
education
Gradinita Nr. 19
Învățământ aprox. 480 m
education
Scoala cu Clasele I - VIII NR. 12 Sibiu
Învățământ aprox. 505 m
education
Scoala Generala Nr. 13
Învățământ aprox. 786 m
Recreere
parks
Parc
Recreere aprox. 442 m
restaurants
Kon Tiki
Restaurante aprox. 576 m
shopping
Profi
Supermarket/Mall aprox. 921 m
shopping
PLUS Terezian
Supermarket/Mall aprox. 936 m

Proprietăți similare

Spațiu comercial, în Piața Cluj
215.000 € / lună
Sibiu, Piața Cluj
560 mp teren
Spațiu comercial, în Ștrand
250.000 € / lună
Sibiu, Ștrand
634 mp teren
1E
Spațiu comercial, în Turnișor
250.000 € / lună
Sibiu, Turnișor
800 mp teren
Spațiu comercial, de 173 mp, în Nord
215.751 € / lună
Sibiu, Nord
173 mp utili
3E
Spațiu comercial, în Cristian
215.000 € / lună
Județul Sibiu, Cristian
4.540 mp teren
Spațiu comercial, în Cristian
250.001 € / lună
Județul Sibiu, Cristian
3.100 mp teren
3E
Spațiu comercial, în Central
215.470 € / lună
Județul Sibiu, Agnita
21.547 mp teren
Spațiu comercial, în Cristian
233.000 € / lună
Județul Sibiu, Cristian
2.300 mp teren
Spațiu comercial, în Șura Mare
214.600 € / lună
Județul Sibiu, Șura Mare
3.700 mp teren

Abonează-te la newsletter să fii primul care primește cele mai noi recomandări de proprietăți și sfaturi de la experți.