Spatiu de birouri luminos si creativ de 93 mp la mansarda Ultracen

1.700 € / lună
18.28 € / mp / lună

Central, Sibiu

Suprafață utilă totală:
93 mp

Descriere spațiu comercial

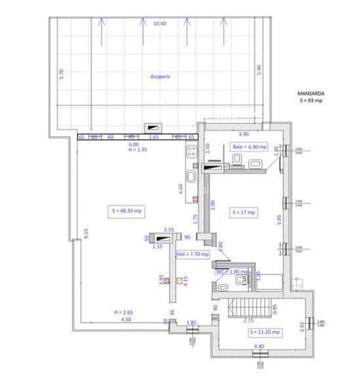
Agentia Imobiliara Noblea va ofera spre inchiriere un spatiu de birouri deosebit cu suprafata utila de 93 mp, situat la mansarda intr-o casa eleganta, complet renovata in 2026 (demisol + parter + etaj 1 + mansarda), in plin centru istoric al Sibiului. Acest spatiu se remarca prin ambianta sa luminoasa, aerul creativ si intimitatea oferita de pozitionarea la mansarda, fiind ideal pentru echipe mici sau profesionisti care doresc un mediu de lucru inspirator si diferit. Caracteristici principale: - Suprafata utila: 93 mp - Birou mare open-space generos - Bucatarie separata - 2 bai moderne (una de serviciu) - Lumina naturala excelenta prin ferestrele de mansarda - Tavane inalte cu grinzi aparente - Finisaje noi de calitate superioara, instalatii refacute complet - Acces comod prin casa scarii Acest spatiu este perfect pentru: - Birouri de creatie, agentii de marketing, design, IT sau consultanta - Sediu social de firma cu echipa mica/medie - Cabinet de avocatura, arhitectura, proiectare sau servicii profesionale - Spatii de lucru creative care beneficiaza de un ambient cald si inspirator Avantaje: - Locatie ultracentrala premium la doar cateva minute de Piata Mare, Piata Mica, Strada N. Balcescu si principalele atractii ale orasului istoric - Cladire complet renovata in 2026 aspect modern, curat si fara investitii suplimentare - Atmosfera luminoasa, intima si creativa, specifica mansardelor renovate elegant - Flexibilitate in amenajare si un plus de liniste fata de etajele inferioare Pret chirie: 1700 euro / luna. (utilitati separate sau conform consum) Pentru vizionari, poze detaliate, plan de etaj sau informatii suplimentare, va rugam sa ne contactati. Suntem alaturi de dvs. cu profesionalism si caldura pentru a transforma aceasta mansarda intr-un mediu perfect pentru productivitatea si inspiratia echipei dumneavoastra!
Citește mai mult Citește mai puțin

Detalii spațiu comercial

ID anunț: 4185013 Actualizat în: 19 Aprilie 2026
Suprafață utilă: 93 mp
Suprafață utilă totală: 93 mp

Istoric preț

Puncte de interes

Mijloace transport
transport
Piata Aurel Vlaicu 1
Mijloace transport aprox. 161 m
transport
Lomonosov
Mijloace transport aprox. 184 m
transport
Sala Transilvania
Mijloace transport aprox. 217 m
transport
Bloc 1 Mihai Viteazu
Mijloace transport aprox. 276 m
Școală
education
Facultatea de Stiinte Agroalimentare
Învățământ aprox. 65 m
education
Universitatea Romano-Germana Sibiu
Învățământ aprox. 199 m
education
Facultatea de Stiinte Economice (ULBS)
Învățământ aprox. 358 m
education
Gradinita Nr. 42
Învățământ aprox. 545 m
Recreere
parks
Teren sportiv
Recreere aprox. 89 m
restaurants
Super Mamma
Restaurante aprox. 112 m
shopping
Alcomsib Cedonia
Supermarket/Mall aprox. 671 m
shopping
Magazinul Dumbrava
Supermarket/Mall aprox. 692 m

Proprietăți similare

Spațiu comercial, de 90 mp, în Central
1.530 € / lună
Sibiu, Central
90 mp utili
Spațiu comercial, de 93 mp, în Central
1.700 € / lună
Sibiu, Central
93 mp utili
Spațiu comercial, de 65 mp, în Central
1.550 € / lună
Sibiu, Central
65 mp utili
2E
Spațiu comercial, de 300 mp, în Central
1.800 € / lună
Sibiu, Central
300 mp utili
2000
Spațiu comercial, de 100 mp, în Central
1.600 € / lună
Sibiu, Central
100 mp utili
2025
Spațiu comercial, de 107 mp, în Central
1.800 € / lună
Sibiu, Central
107 mp utili
1E
1980
Spațiu comercial, de 300 mp, în Central
1.800 € / lună
Sibiu, Central
300 mp utili
Spațiu comercial, de 90 mp, în Central
1.530 € / lună
Sibiu, Central
90 mp utili
1E
2024
Spațiu comercial, de 200 mp, în Central
1.650 € / lună
Sibiu, Central
200 mp utili
2024

Abonează-te la newsletter să fii primul care primește cele mai noi recomandări de proprietăți și sfaturi de la experți.