Inchiriere Spatiu Comercial 700 mp- Metrou Gorjului

€ 6.300 / lună

Gorjului, Bucureşti

Suprafață utilă totală:
700 mp
Nr. niveluri:
2

Descriere

Raportează anunț

Inchiriere Spatiu Comercial 700 mp- Metrou Gorjului

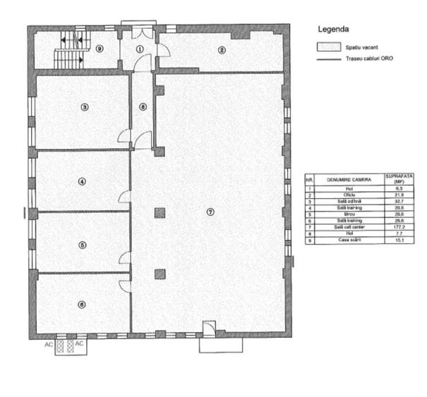
Se ofera spre inchiriere un spa?iu generos de 350 mp2 dar se poate duce daca se doreste pana la 700 mp2 situat in zona Militari, la doar cateva minute de mers pe jos de Metrou Gorjului. Spa?iul beneficiaza de compartimentare interioara flexibila, putand fi adaptat pentru diverse activita?i birouri, depozit, showroom sau produc?ie. Pret inchiriere 700 mp2-9E plus TVA per mp2 Pret inchiriere 350 mp2-11E plus TVA per mp2(asta daca doriti doar jumatate din spatiu) Spatiul se preteaza pentru activitati comerciale cat si office Sala fitness, sala karate, clinica medicala( stomatologie, imagistica,) It, contabilitate, call center,notariat,birou avocatura arhitectura,depozitare, productie Caracteristici: Suprafa?a: 350 mp2 dar se poate duce pana la 700 mp2 dispus pe 2 nivele(etaj 1-350mp2|etaj2-350 mp2) Zona: Militari Metrou Gorjului Compartimentare: flexibila Inal?ime: 4 m Grupuri sanitare proprii Parcare interioara inclusa Incalzire si racire prin ventilatie tavan(ventilocovectoare) Avantaje: Acces facil catre mijloacele de transport in comun Zona cu vad comercial ?i infrastructura completa Ideal pentru firme care doresc un spa?iu amplu ?i bine pozi?ionat Va asteptam cu mare drag! ID anun? : 1767793868
Citește mai mult Citește mai puțin
ID anunț: 3091734 Actualizat în: 09 Ianuarie 2026
Suprafață utilă: 700 mp
Suprafață utilă totală: 700 mp
Regim înălțime: P+2E
Nr. locuri parcare: 3
Stadiu construcție: Finalizată

Istoric preț

Proprietăți similare

Spațiu industrial, de 12,000 mp, în Militari
€ 6.630 / lună
București, Militari
12.000 mp utili
2017
Spațiu comercial, de 60 mp, în Grozăvești
€ 6.600 / lună
București, Grozăvești
60 mp utili
9E
Spațiu comercial, de 46,959 mp, în Grozăvești
€ 5.735 / lună
București, Grozăvești
46.959 mp utili
14E
2009
Spațiu industrial, de 1,066 mp, în Grozăvești
€ 6.929 / lună
București, Grozăvești
1.066 mp utili
Spațiu comercial, de 400 mp, în Grozăvești
€ 6.200 / lună
București, Grozăvești
400 mp utili
Spațiu comercial, de 270 mp, în Militari
€ 6.500 / lună
București, Militari
270 mp utili
Spațiu comercial, de 380 mp, în Liviu Rebreanu
€ 6.000 / lună
București, Liviu Rebreanu
380 mp utili
Spațiu comercial, de 650 mp, în Rahova
€ 6.499 / lună
București, Rahova
650 mp utili
1E
Spațiu comercial, de 3,400 mp, în Pipera
€ 6.000 / lună
București, Pipera
3.400 mp utili
2E

Abonează-te la newsletter să fii primul care primește cele mai noi recomandări de proprietăți și sfaturi de la experți.