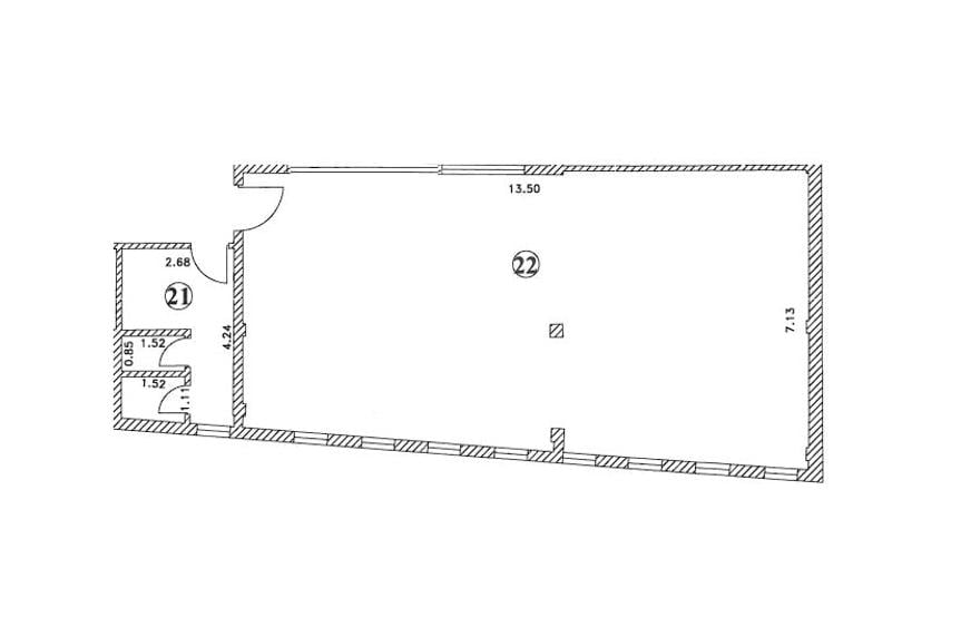
The Hub - Rahova #3 - 88,5 mp util - Etaj 1 - Prima Inchiriere

1.106 € / lună
12.57 € / mp / lună

Rahova, Bucureşti

Suprafață utilă totală:
88,5 mp
Nr. niveluri:
2
An construcție:
2025

Descriere spațiu comercial

The Hub - Rahova #3 Spațiu comercial aflat la Prima Inchiriere, situat într-o zonă cu trafic intens, într-o clădire nouă, construită în 2025, care nu se compară cu nimic din zonă prin poziționare, calitate și vecinătăți. Suprafață 88,5 mp, la care se adaugă un grup sanitar dublu de 10,5 mp, amplasat la etajul 1. Spațiul beneficiază de centrală termică proprie, compartimentare eficientă și finisaje moderne, fiind ușor adaptabil pentru o gamă largă de activități. Clădirea este nouă, cu vecini de calitate și un concept coerent, gândit pentru business-uri care caută stabilitate și imagine bună. Este un spațiu care transmite profesionalism și creează cadrul potrivit pentru povești de business construite pe termen lung. Un avantaj important îl reprezintă posibilitatea de amplasare a elementelor de semnalistică și publicitate exterioară, pentru vizibilitate crescută și branding eficient. Este un spațiu care oferă vizibilitate, confort și flexibilitate, ideal pentru construirea unor povești de business pe termen lung, într-un cadru coerent și bine gândit. Dacă acest spațiu nu se potrivește nevoilor dumneavoastră, mai avem disponibile alte 3 spații în aceeași clădire. Ideal pentru birouri, cabinete, servicii, showroom, activități educaționale sau alte activități comerciale.
Citește mai mult Citește mai puțin

Detalii spațiu comercial

ID anunț: 3043048 Actualizat în: 11 Martie 2026
Suprafață utilă: 88,5 mp
Suprafață utilă totală: 88,5 mp
Regim înălțime: P+2E
An construcție: 2025

Istoric preț

Facilități

Utilități
Gaze Curent Canalizare Apă

Puncte de interes

Mijloace transport
transport
Antiaeriana
Mijloace transport aprox. 79 m
transport
Statia Antiaeriana, linia 302, N114, 226, 227,32
Mijloace transport aprox. 93 m
transport
Statia Soseaua Alexandriei / Soseaua Magurele, linia 227, 303
Mijloace transport aprox. 132 m
transport
Tacerii
Mijloace transport aprox. 214 m
Școală
education
Cresa
Învățământ aprox. 369 m
education
Scoala nr.126
Învățământ aprox. 398 m
education
ŞCOALA CU CLASELE I-VIII NR. 126
Învățământ aprox. 410 m
education
Scoala Generala "Mircea Santimbreanu" Nr. 139
Învățământ aprox. 733 m
Recreere
shopping
Complex Comercial Neptun
Supermarket/Mall aprox. 265 m
shopping
Cora Alexandriei
Supermarket/Mall aprox. 442 m
restaurants
Restaurant Casa Ionescu
Restaurante aprox. 451 m
parks
Teren sportiv
Recreere aprox. 1100 m

Proprietăți similare

Spațiu comercial, de 73.400001525879 mp, în Rahova
1.101 € / lună
București, Rahova
73,4 mp utili
2E
2025
Spațiu comercial, de 70 mp, în Rahova
1.000 € / lună
București, Rahova
70 mp utili
Spațiu comercial, de 66 mp, în Rahova
1.099 € / lună
București, Rahova
66 mp utili
8E
1984
Spațiu comercial, de 74 mp, în Rahova
1.000 € / lună
București, Rahova
74 mp utili
Spațiu comercial, de 58.599998474121 mp, în Rahova
1.172 € / lună
București, Rahova
58,6 mp utili
2E
2025
Spațiu comercial, în Alexandriei
1.000 € / lună
București, Alexandriei
2.000 mp teren
Spațiu comercial, de 25.309999465942 mp, în 13 Septembrie
1.000 € / lună
București, 13 Septembrie
25,31 mp utili
Spațiu comercial, de 120 mp, în Cotroceni
1.100 € / lună
București, Cotroceni
120 mp utili
Spațiu comercial, de 25 mp, în Sebastian
1.100 € / lună
București, Sebastian
25 mp utili

Abonează-te la newsletter să fii primul care primește cele mai noi recomandări de proprietăți și sfaturi de la experți.