Metrou Dimitrie Leonida - Spatiu comercial de inchiriat

1.423 € / lună
29.65 € / mp / lună

Berceni, Bucureşti

Suprafață utilă totală:
48 mp

Descriere spațiu comercial

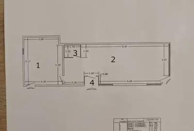
Spatiu comercial cu o suprafata de 50 mp, ideal pentru desfasurarea unei varietati de activitati precum magazin, birou, salon de infrumusetare sau alte servicii. Spatiul este bine compartimentat si ofera un mediu functional, usor de adaptat in functie de necesitati. Dispune de o zona principala open-space, luminoasa, cu vitrina stradala , care asigura vizibilitate si acces facil pentru clienti. In plus, spatiul poate include grup sanitar propriu si spatiu de depozitare. Este situat intr-o zona accesibila, cu trafic pietonal si auto, aproape de puncte de interes, ceea ce il face potrivit pentru dezvoltarea unei afaceri. Spatiul poate fi amenajat sau personalizat in functie de domeniul de activitate, oferind flexibilitate si potential pentru diverse tipuri de business. Detalii alte incaperi: Spatiu de depozitare Serviciul nou oferit de PREMIER Imobiliare! Solicita acum VIZIONARE ONLINE pentru aceasta proprietate! COMISION 0% Aceasta proprietate se poate achizitiona prin orice tip de credit bancar. Departamentul nostru financiar Premier Credit Hub va sta la dispozitie GRATUIT (comision 0%) pentru: - identificarea celei mai bune solutii de finantare; - intocmirea dosarului bancar complet; - obtinerea rapida a creditului necesar achizitiei. Beneficiati de un serviciu ALL IN ONE, cu acces direct la ofertele tuturor bancilor comerciale din Romania. Se accepta inclusiv venituri din strainatate, astfel incat fiecare client sa poata cumpara in cele mai avantajoase conditii. Solicitati acum o simulare de credit direct din anunt sau cereti detalii consultantului Premier Imobiliare! An finalizare constructie: 2024 Vitrina: 4 m Stadiu constructie: Finalizat Numar incaperi: 2 Numar Grupuri Sanitare: 1 Posibilitate parcare: Nu Tip imobil: Bloc de apartamente
Citește mai mult Citește mai puțin

Detalii spațiu comercial

Actualizat în: 22 Mai 2026 ID anunț: 1400595
Suprafață utilă: 48 mp
Suprafață utilă totală: 48 mp

Istoric preț

Puncte de interes

Mijloace transport
transport
Statie tramvai 34,46 - Roma
Mijloace transport aprox. 218 m
transport
Roma
Mijloace transport aprox. 223 m
transport
Calea Dorobantilor
Mijloace transport aprox. 303 m
transport
Statia Liceul Ion Luca Caragiale, linia 131, 182, 330, 331, 335, N113, 301
Mijloace transport aprox. 320 m
Școală
education
Liceul Nicolae Tonitza
Învățământ aprox. 300 m
education
Badulescu Aurelia (en)
Învățământ aprox. 323 m
education
Colegiul National "Ion Luca Caragiale"
Învățământ aprox. 385 m
education
Liceul Alexandru Vlahuta + Scoala 15 (en)
Învățământ aprox. 388 m
Recreere
restaurants
Restaurant "La Templu" (coa) (calea Dorobantilor 127-129)
Restaurante aprox. 165 m
parks
Parc
Recreere aprox. 207 m
shopping
"METROPLIS CENTER"
Supermarket/Mall aprox. 310 m
shopping
Mega Image - IANCU DE HUNEDOARA
Supermarket/Mall aprox. 320 m

Proprietăți similare

Spațiu comercial, de 75 mp, în Berceni
1.300 € / lună
București, Berceni
75 mp utili
Spațiu comercial, de 88 mp, în Berceni
1.500 € / lună
București, Berceni
88 mp utili
8E
2024
Proprietate specială, 400 mp în Vitan-Bârzești
1.350 € / lună
București, Vitan-Bârzești
650 mp teren
2012
Spațiu comercial, de 20 mp, în Berceni
1.500 € / lună
București, Berceni
20 mp utili
Spațiu industrial, în Giurgiului
1.500 € / lună
București, Giurgiului
2001
Spațiu comercial, de 63 mp, în Apărătorii Patriei
1.448 € / lună
București, Apărătorii Patriei
63 mp utili
2009
Spațiu comercial, de 1,000 mp, în Berceni
1.490 € / lună
București, Berceni
1.000 mp utili
Spațiu comercial, de 112 mp, în Berceni
1.490 € / lună
București, Berceni
112 mp utili
2018
Spațiu comercial, de 82 mp, în Berceni
1.400 € / lună
București, Berceni
82 mp utili
1986

Abonează-te la newsletter să fii primul care primește cele mai noi recomandări de proprietăți și sfaturi de la experți.