Spatiu Comerceial , parter bloc nou construit , zona Nerva T

550.000 € / lună
2,500.00 € / mp / lună

Nerva Traian, Bucureşti

Suprafață utilă totală:
220 mp

Descriere spațiu comercial

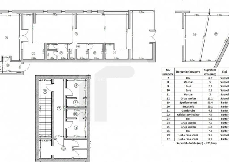
Spatiu comercial de 220 mp in zona Nerva Traian in cladire nou construita 2025 ideal pentru restaurant, clinica sau showroom Va prezentam spre vanzare un spatiu comercial generos cu o suprafata totala utila de 220,6 mp, situat in zona ultracentrala Nerva Traian, pe o strada linistita, cu acces facil la mijloace de transport, sedii de birouri si zone rezidentiale premium. Compartimentare eficienta: Parter 130,7 mp utili: Spatiu principal de vanzare/comercial: 98,4 mp (incaperea 19) Bucatarie complet separata: 7,4 mp Garderoba: 6,8 mp Oficiu servire/bar: 7,9 mp Grupuri sanitare (dublu acces): 12,2 mp Subsol 34,6 mp utili: Hol acces si vestiare personal 2 bai si un grup sanitar suplimentar (11,1 mp) Acces dublu intrare principala si secundara Holuri + case scarii: 15,3 mp Ideal pentru: Restaurante/cafenele (flux logic intre spatiu de servire oficiu bucatarie) Clinica medicala/stomatologica (compartimentare versatila si grupuri sanitare multiple) Showroom cu back-office/depozitare in subsol Sediu firma, co-working, beauty center Caracteristici tehnice: Cladire cu regim de inaltime Susol + Parter + 6 etaje Spatiu vitrat pe intreaga lungime a fatadei (expunere excelenta) Inaltime generoasa in zona comerciala Acces pietonal direct din strada Toate utilitatile disponibile (inclusiv gaze, 380V daca este necesar) Compartimentare ce permite adaptare usoara in functie de destinatie Localizare: Zona Nerva Traian, la 5 minute de Piata Unirii si Timpuri Noi Acces rapid la Splaiul Unirii, Bd. Octavian Goga, Bd. Decebal Zona cu trafic pietonal, birouri si blocuri locuite permanent Se pot achizitona separat doua locuri de parcare. Pretul este 2500 euro per mp plus TVA si se preda la GRI Id intern: GS20429 Suprafata totala: 250 m2 An finalizare constructie: 2025 Stadiu constructie: Finalizat Comision cumparator: 0% Tip imobil: Bloc de apartamente
Citește mai mult Citește mai puțin

Detalii spațiu comercial

ID anunț: 3722280 Actualizat în: 04 Martie 2026
Suprafață utilă: 220 mp
Suprafață utilă totală: 220 mp

Istoric preț

Puncte de interes

Mijloace transport
transport
Statie tramvai 34,46 - Roma
Mijloace transport aprox. 218 m
transport
Roma
Mijloace transport aprox. 223 m
transport
Calea Dorobantilor
Mijloace transport aprox. 303 m
transport
Statia Liceul Ion Luca Caragiale, linia 131, 182, 330, 331, 335, N113, 301
Mijloace transport aprox. 320 m
Școală
education
Liceul Nicolae Tonitza
Învățământ aprox. 300 m
education
Badulescu Aurelia (en)
Învățământ aprox. 323 m
education
Colegiul National "Ion Luca Caragiale"
Învățământ aprox. 385 m
education
Liceul Alexandru Vlahuta + Scoala 15 (en)
Învățământ aprox. 388 m
Recreere
restaurants
Restaurant "La Templu" (coa) (calea Dorobantilor 127-129)
Restaurante aprox. 165 m
parks
Parc
Recreere aprox. 207 m
shopping
"METROPLIS CENTER"
Supermarket/Mall aprox. 310 m
shopping
Mega Image - IANCU DE HUNEDOARA
Supermarket/Mall aprox. 320 m

Proprietăți similare

Spațiu comercial, de 179 mp, în Calea Victoriei
530.000 € / lună
București, Calea Victoriei
179 mp utili

Abonează-te la newsletter să fii primul care primește cele mai noi recomandări de proprietăți și sfaturi de la experți.