STEFAN CEL MARE SUPRAFATA 402 MP PRET 6000E

6.000 € / lună
14.93 € / mp / lună

Ştefan cel Mare, Bucureşti

Suprafață utilă totală:
402 mp

Descriere spațiu comercial

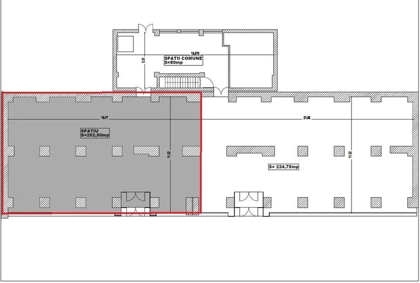
Vă prezentăm spre închiriere un spațiu comercial versatil, situat într-o zonă cu vad comercial exceptional, Sos. Stefan cel Mare . SUPRAFATA UTILA :402,5 mp, SUPRAFATA VITRINA : 11 ml. Spatiul se poate impartii. Imobilul este compus dintr-un show-room de 202,5 mp, zona de receptie, vestiare, toalete in partea din spate (commune cu spatial vecin) si o suparfata generoasa de 200 mp pentru depozitare, situate la subsol, accesul facandu-se pe o scara interioara si cu ajutorul unui lift. 2 intrări separate (una frontala și una prin spate), ceea ce oferă posibilitatea aprovizionarii prin accesul secundar. Spațiul este disponibil imediat și beneficiază de toate utilitățile esențiale.
Citește mai mult Citește mai puțin

Detalii spațiu comercial

ID anunț: 3878971 Actualizat în: 18 Martie 2026
Suprafață utilă: 402 mp
Suprafață utilă totală: 402 mp

Istoric preț

Puncte de interes

Mijloace transport
transport
Statia Lizeanu / Soseaua Stefan cel Mare, linia 330, 335, 1, 16, 46
Mijloace transport aprox. 22 m
transport
Lizeanu
Mijloace transport aprox. 23 m
transport
Soseaua Stefan cel Mare
Mijloace transport aprox. 91 m
transport
Lizeanu
Mijloace transport aprox. 124 m
Școală
education
Scoala Postliceala Carol Davila (en)
Învățământ aprox. 305 m
education
Universitatea Spiru Haret - Facultatea de Medicina veterinara
Învățământ aprox. 532 m
education
Liceul Tehnologic Special nr. 3
Învățământ aprox. 579 m
education
Scoala Pentru Hipoacuzici
Învățământ aprox. 592 m
Recreere
restaurants
Kebab Mania
Restaurante aprox. 55 m
shopping
Stock Market
Supermarket/Mall aprox. 64 m
shopping
Mega Image Lizeanu Non-Stop
Supermarket/Mall aprox. 116 m
parks
Respawn B
Recreere aprox. 275 m

Proprietăți similare

Spațiu comercial, de 402.5 mp, în Ștefan cel Mare
5.997 € / lună
București, Ștefan cel Mare
402,5 mp utili
11E
Spațiu comercial, de 177 mp, în Ștefan cel Mare
6.018 € / lună
București, Ștefan cel Mare
177 mp utili
Spațiu industrial, de 1,500 mp, în Pantelimon
6.000 € / lună
București, Pantelimon
1.500 mp utili
Spațiu comercial, de 200 mp, în Iancului
5.750 € / lună
București, Iancului
200 mp utili
4E
Spațiu comercial, de 192 mp, în Moșilor
5.650 € / lună
București, Moșilor
192 mp utili
Spațiu comercial, de 550 mp, în Pantelimon
5.500 € / lună
București, Pantelimon
550 mp utili
1E
2000
Spațiu comercial, de 150 mp, în Iancului
6.000 € / lună
București, Iancului
150 mp utili
Spațiu comercial, de 700 mp, în Dacia
6.000 € / lună
București, Dacia
700 mp utili
500 mp teren
Spațiu comercial, de 200 mp, în Dacia
5.440 € / lună
București, Dacia
200 mp utili
5E
2021

Abonează-te la newsletter să fii primul care primește cele mai noi recomandări de proprietăți și sfaturi de la experți.