Inchiriez spatiu pentru clinica activitate medicala

5.900 € / lună
24.79 € / mp / lună

Moşilor, Bucureşti

Suprafață utilă totală:
238 mp

Descriere spațiu comercial

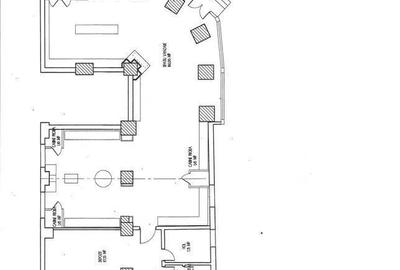
In centrul Bucurestiului , zona MOSILOR inchiriez 238,5 mp, spatiu la parter pentru clinica sau activitate medicala Spatiul este stradal, open space, are doua intrari, patru grupuri sanitare , centrala termica, AC, contorizat separat pentru curent, gaz, apa. Imobilul are S+P+8 etaje fiind ocupat in proportie de 80% de clinici medicale. ID anun? : 1749826338
Citește mai mult Citește mai puțin

Detalii spațiu comercial

ID anunț: 3431980 Actualizat în: 09 Februarie 2026
Suprafață utilă: 238 mp
Suprafață utilă totală: 238 mp

Istoric preț

Proprietăți similare

Spațiu comercial, de 192 mp, în Moșilor
5.650 € / lună
București, Moșilor
192 mp utili
Spațiu comercial, de 179 mp, în Moșilor
5.501 € / lună
București, Moșilor
179 mp utili
1985
Spațiu comercial, de 192 mp, în Moșilor
6.292 € / lună
București, Moșilor
192 mp utili
Spațiu comercial, de 200 mp, în Iancului
5.750 € / lună
București, Iancului
200 mp utili
4E
Spațiu comercial, de 400 mp, în Foișorul de Foc
5.500 € / lună
București, Foișorul de Foc
400 mp utili
Spațiu industrial, de 750.90002441406 mp, în Pantelimon
5.482 € / lună
București, Pantelimon
750,9 mp utili
1980
Spațiu comercial, de 700 mp, în Dacia
6.000 € / lună
București, Dacia
700 mp utili
500 mp teren
Spațiu comercial, de 550 mp, în Pantelimon
5.500 € / lună
București, Pantelimon
550 mp utili
1E
2000
Spațiu comercial, de 150 mp, în Iancului
6.000 € / lună
București, Iancului
150 mp utili

Abonează-te la newsletter să fii primul care primește cele mai noi recomandări de proprietăți și sfaturi de la experți.