De inchiriat! Cladire P+etaj1,2 ,zona centrala

3.000 € / lună
9.09 € / mp / lună

Central, Piteşti

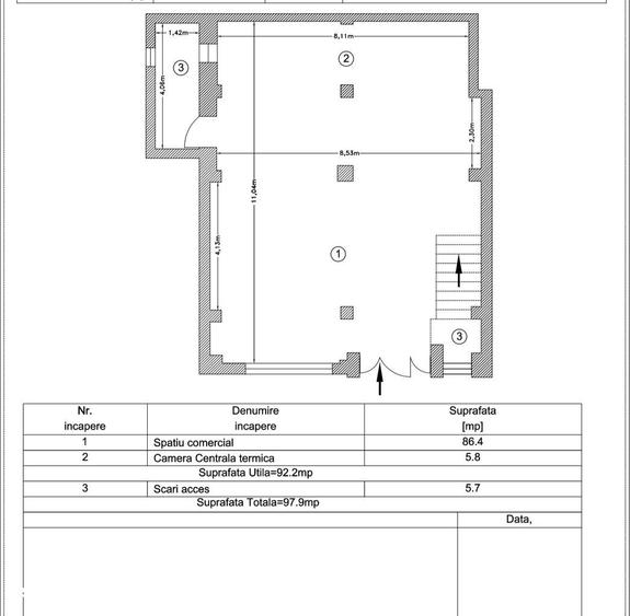
Suprafață utilă totală:
330 mp

Descriere spațiu comercial

Agentia Imobiliara Muntenia Invest va propune spre inchiriere o cladire individuala, cu regim de inaltime Parter + 2 Etaje, amplasata intr-o zona centrala, cu acces facil si vizibilitate excelenta. Proprietatea are o suprafata totala de 330 mp si ofera un cadru versatil, adaptabil unei game variate de activitati.Imobilul beneficiaza de compartimentare flexibila, ce permite organizarea atat in sistem open-space, cat si in spatii individuale, in functie de necesitatile chiriasului. Este in curs de renovare si se inchiriaza la stadiul de semifinisata. Structura pe niveluri ofera posibilitatea delimitarii eficiente a fluxurilor de activitate (receptie, sali de lucru, birouri administrative, spatii tehnice etc.).Destinatii recomandate:- activitate comerciala si showroom,- cabinete medicale, clinici, servicii medicale sau conexe,- sala de fitness / studio de antrenament personal,- centru de dezvoltare personala, training, cursuri sau activitati recreative,Un avantaj competitiv important il reprezinta disponibilitatea locurilor de parcare intre 7 si 15 locuri, alocate in functie de specificul si necesarul activitatii desfasurate, asigurand confort si accesibilitate pentru clienti si personal.Proprietatea reprezinta o solutie optima pentru companii care isi doresc o locatie centrala, reprezentativa si usor accesibila, cu infrastructura adaptabila si potential de personalizare.Pentru informatii suplimentare, conditii contractuale si programarea unei vizionari, va invitam sa ne contactati.
Citește mai mult Citește mai puțin

Detalii spațiu comercial

Actualizat în: 26 Aprilie 2026 ID anunț: 1333559
Suprafață utilă: 330 mp
Suprafață utilă totală: 330 mp

Istoric preț

Puncte de interes

Mijloace transport
transport
Statie Teatru
Mijloace transport aprox. 400 m
transport
I.C. Bratianu
Mijloace transport aprox. 446 m
transport
Statia Puturosilor Centru
Mijloace transport aprox. 773 m
transport
Pitesti Nord
Mijloace transport aprox. 1019 m
Școală
education
Scoala nr 9 / Liceul teologic penticostal
Învățământ aprox. 310 m
education
Centru educational
Învățământ aprox. 367 m
education
Scoala Militara de Maistri Militari si Subofiteri
Învățământ aprox. 420 m
education
Colegiul National Ion C. Bratianu
Învățământ aprox. 485 m
Recreere
restaurants
Restaurant Forever
Restaurante aprox. 224 m
parks
Parc
Recreere aprox. 304 m
shopping
Centrul Comercial Teilor
Supermarket/Mall aprox. 626 m
shopping
Centrul Comercial Proxis
Supermarket/Mall aprox. 637 m

Proprietăți similare

Spațiu comercial, de 585 mp, în Central
3.200 € / lună
Pitești, Central
585 mp utili
Spațiu comercial, de 270 mp, în Calea București
3.000 € / lună
Pitești, Calea București
270 mp utili
1986
Spațiu comercial, de 270 mp, în Ultracentral
3.000 € / lună
Pitești, Ultracentral
270 mp utili
Spațiu comercial, de 202.75 mp, în Negru Vodă
3.250 € / lună
Pitești, Negru Vodă
202,75 mp utili
Spațiu comercial, de 235 mp, în Central
2.900 € / lună
Pitești, Central
235 mp utili
Spațiu comercial, de 750 mp, în Central
3.025 € / lună
Pitești, Central
750 mp utili
Spațiu comercial, de 202 mp, în Negru Vodă
3.250 € / lună
Pitești, Negru Vodă
202 mp utili
Spațiu comercial, de 90 mp, în Găvana
2.700 € / lună
Pitești, Găvana
90 mp utili
Spațiu comercial, de 235 mp, în Central
2.900 € / lună
Pitești, Central
235 mp utili
1E

Abonează-te la newsletter să fii primul care primește cele mai noi recomandări de proprietăți și sfaturi de la experți.