Ovidiu, EUROHALA, 720 mp., deschidere DN, standarde europene

3.600 € / lună
5 € / mp / lună

Ovidiu, Judeţul Constanţa

Suprafață utilă totală:
720 mp

Descriere spațiu comercial

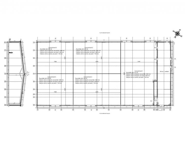
Agentia ZIG-ZAG va ofera spre inchiriere eurohala industriala , construita la STANDARDE EUROPENE, situata in zona industriala a ora?ului Ovidiu, ideala pentru diverse activita?i de logistica/ depozitare/productie / alteactivitati comerciale sau industriale. Situata strategic in zona industriala Ovidiu, cu acces facil la ?oselele principale ?i autostrada A4, ofera conexiuni excelente pentru transportul de marfuri. Suprafata de 720 mp. configurata tip openspace , ofera posibilitati de compartimentare. Fiind construita din structura metalica (galvan) cu panouri sandwich 10, ofera izola?ie termica ?i durabilitate. Dispune de urmatoarele facilitati: - acces tir si platforma betonata de jur imprejur, beton rutier pentru trafic greu ; - platforma betonata 150 mp, perfecta pentru logistica, manevra vehicule , depozitare exterioara sau parcare; - ianltime 5 m. la streasina, , 7 m. la coama; - iluminat perimetral; - supraveghere video; - 2 usi acces tir Hormann 4m x 4.5m automate si 1 usa pietonala; - sistem incalzire /racire cu ventiloconvectoare, ventilatie automata; - posibilitate de personalizare pentru nevoile chiria?ului (compartimentare); - iluminatoare in acoperis; - pardoseala elicopterizata (beton amprentat). Utilitatile imobilului cuprind: apa, curent electric trifazat (150-200 KW), canalizare (statie epurare eco), centrala proprie electrica, sistem de supraveghere, sistem incalzire /racire cu ventiloconvectoare, paza 24 /24 h, etc. Locatia dispune de transformator propriu 400 KW si posibilitate cantar auto 60 tone. Proprietar persoana juridica (pret + TVA). ID anun? : 1736334474
Citește mai mult Citește mai puțin
10 Parcări

Detalii spațiu comercial

ID anunț: 118830 Actualizat în: 27 Martie 2026
Suprafață utilă: 720 mp
Suprafață utilă totală: 720 mp
Nr. locuri parcare: 10

Istoric preț

Facilități

Ferestre cu geam termopan
Aluminiu

Proprietăți similare

Spațiu industrial, de 700 mp, în Ovidiu
3.500 € / lună
Județul Constanța, Ovidiu
700 mp utili
2025
Spațiu industrial, de 630 mp, în Palas
3.780 € / lună
Constanța, Palas
630 mp utili
Spațiu comercial, de 80 mp, în Brotăcei
3.500 € / lună
Constanța, Brotăcei
80 mp utili
2003
Spațiu industrial, de 598 mp, în Inel II
3.887 € / lună
Constanța, Inel II
598 mp utili
1E
Spațiu comercial, de 340 mp, în Delfinariu
3.700 € / lună
Constanța, Delfinariu
340 mp utili
1E
Spațiu comercial, de 96 mp, în Central
3.300 € / lună
Constanța, Central
96 mp utili
Spațiu comercial, de 600 mp, în Ultracentral
3.600 € / lună
Constanța, Ultracentral
600 mp utili
Spațiu comercial, de 325 mp, în Delfinariu
3.500 € / lună
Constanța, Delfinariu
325 mp utili
Spațiu comercial, de 159 mp, în Universitate
3.500 € / lună
Constanța, Universitate
159 mp utili
8E
2024

Abonează-te la newsletter să fii primul care primește cele mai noi recomandări de proprietăți și sfaturi de la experți.