Teren 2.500 mp Ovidiu vis-a-vis de Insula Ovidiu (sens giratoriu)

500.000 € / lună
200 € / mp / lună

Ovidiu, Judeţul Constanţa

Suprafață teren:
2.500 mp
Nr. niveluri:
2

Descriere spațiu comercial

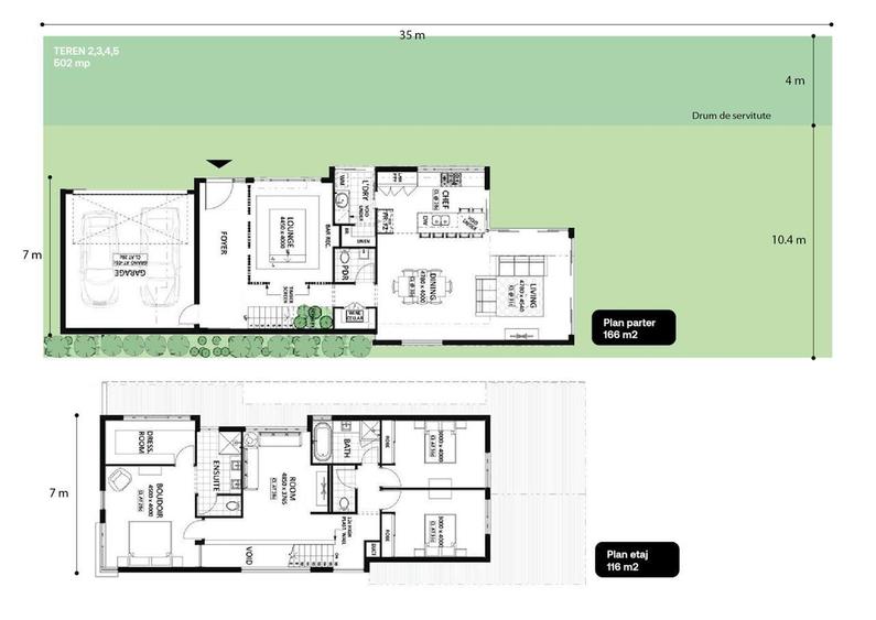
De vanzare teren intravilan, 2.500 mp, situat in Ovidiu. Localizare excelenta: doar 300 m pana la lacul Siutghiol, acces direct la DN 2A. Utilitati: disponibile la drumul de acces. Regim urbanistic: POT 45%, CUT 1.25, P+2E+M Front stradal: 14,4 m. Facilitati in apropiere: se construieste o gradinita si un mall, astfel incat toate serviciile sunt la cativa pasi.Terenul are multiple posibilitati de dezvoltare:3 blocuri de locuintelotizare in cel putin 5 loturi de 500 mpdezvoltarea a 3 cladiri de birouri, la etajul 2, casele beneficiaza de vedere panoramica catre lacul Siutghiol.Pret 200 /mp negociabilContact (folosesti formularul de contact)
Citește mai mult Citește mai puțin

Detalii spațiu comercial

Actualizat în: 29 Martie 2026 ID anunț: 1376132
Regim înălțime: P+2E

Istoric preț

Puncte de interes

Școală
education
Scoala Nr. 2
Învățământ aprox. 1278 m
education
Şcoala gimnazială
Învățământ aprox. 1285 m
education
Gradinita Licuriciul
Învățământ aprox. 1328 m
Recreere
restaurants
Popasul Citmea
Restaurante aprox. 784 m
parks
Stadionul Viitorul
Recreere aprox. 817 m
parks
Teren sportiv
Recreere aprox. 883 m
restaurants
Popasul Cismea Restaurant (en)
Restaurante aprox. 916 m

Proprietăți similare

Spațiu comercial, în Central
487.500 € / lună
Județul Constanța, Vama Veche
19.500 mp teren
Spațiu comercial, în Vest
550.000 € / lună
Constanța, Vest
5.000 mp teren
2E
Spațiu comercial, în Central
495.000 € / lună
Constanța, Central
985 mp teren
4E
Spațiu comercial, în Central
475.150 € / lună
Județul Constanța, Vama Veche
2.210 mp teren
1E
Spațiu comercial, în Brătianu
540.000 € / lună
Constanța, Brătianu
1.800 mp teren
10E
Spațiu comercial, în Central
506.250 € / lună
Județul Constanța, Eforie
6.750 mp teren
Spațiu comercial, în Stadion
510.000 € / lună
Constanța, Stadion
782 mp teren
Spațiu comercial, în Central
500.000 € / lună
Județul Constanța, Techirghiol
2.116 mp teren
Spațiu comercial, în Dacia
450.000 € / lună
Constanța, Dacia
4.500 mp teren

Abonează-te la newsletter să fii primul care primește cele mai noi recomandări de proprietăți și sfaturi de la experți.