Inchiriez Spatiu Birouri, zona Iosia Lotus Retail Park

10 € / lună
0.63 € / mp / lună

Iosia, Oradea

Suprafață utilă totală:
16 mp

Descriere spațiu comercial

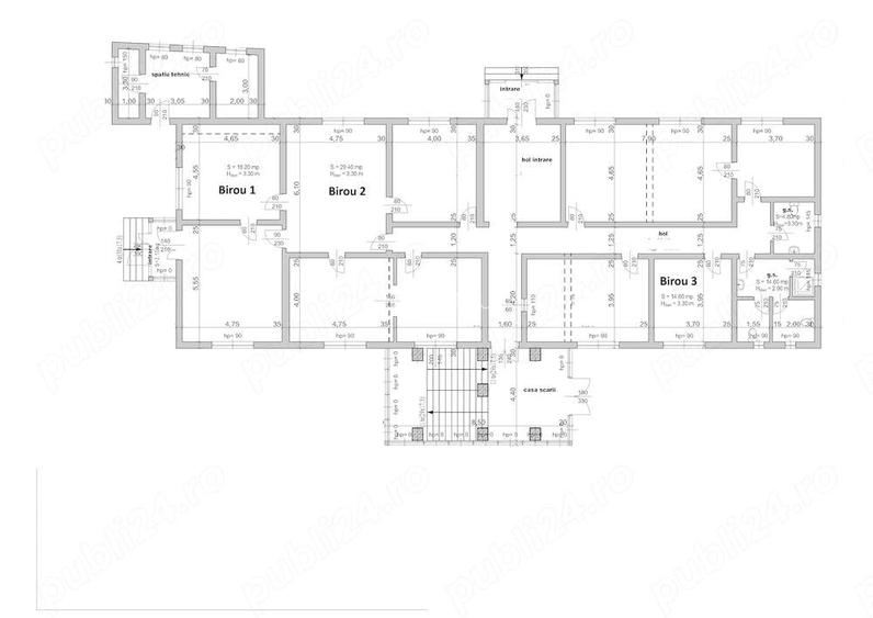
Va ofer spre inchiriere spatii cu destinatie de birouri, situate intr-o cladire moderna de birouri din Oradea,Bihor in zona Iosia aproape de Lotus Retail Park Prima Shops. Imobilul este situat pe str. Meziadului nr. 3. Birourile disponibile in acest moment au suprafete variate, intre 14 mp si 40 mp, fiind amplasate atat la parter, cat si la etajul 1 (regim P+1). Birou 1 = 19,2 mp , Birou 2 = 29,4 mp , Birou 3 = 14,6 mp acestea sunt situate la parter Birou 4 = 24,6 mp , Birou 5 = 19,8 mp , Birou 6 = 16,6 mp, Birou 7 = 30,5 mp acestea sunt situate la etaj Spatiile sunt amenajate si mobilate, pregatite pentru utilizare imediata, potrivite pentru diverse activitati de birou. Exista parcare proprie atat in fata cladirii, cat si in curtea imobilului, fiind disponibile multiple locuri de parcare si acces facil auto. Cladirea este dotata cu grupuri sanitare, sistem de incalzire pe gaz si agent termic primar, sistem de climatizare, control acces 24 7 pentru cladire si porti automate pentru acces auto, birourile beneficiind de toate utilitatile necesare. Imobilul este amplasat intr-o zona accesibila, in apropiere de Penny Market si Lidl, statii de transport in comun Pretul de inchiriere este de 10 Euro mp + TVA. Pentru mai multe detalii poze sau pentru programarea unei vizionari, va stau la dispozitie telefonic. Urmeaza sa incarc poze actuale cu fiecare birou in parte Spatiul se inchiriaza direct de la proprietar persoana juridica fara alte comisioane ID anun? : 1775669986
Citește mai mult Citește mai puțin

Detalii spațiu comercial

Actualizat în: 26 Aprilie 2026 ID anunț: 1426637
Suprafață utilă: 16 mp
Suprafață utilă totală: 16 mp

Istoric preț

Proprietăți similare

Spațiu industrial, de 500 mp, în Aeroport
11 € / lună
Oradea, Aeroport
500 mp utili
Spațiu comercial, în Central
10 € / lună
Județul Bihor, Nucet
3.000 mp teren
Spațiu comercial, de 86 mp, în Central
10 € / lună
Oradea, Central
86 mp utili
Spațiu comercial, de 250 mp, în Iosia
10 € / lună
Oradea, Iosia
250 mp utili
Spațiu comercial, în Central
11 € / lună
Oradea, Central
3.800 mp teren
Spațiu comercial, de 50 mp, în Iosia
10 € / lună
Oradea, Iosia
50 mp utili
Spațiu comercial, în Inand
9 € / lună
Județul Bihor, Inand
26.141 mp teren
Spațiu comercial, de 160 mp, în Calea Aradului
10 € / lună
Oradea, Calea Aradului
160 mp utili
Spațiu comercial, de 16 mp, în Lotus
10 € / lună
Oradea, Lotus
16 mp utili

Abonează-te la newsletter să fii primul care primește cele mai noi recomandări de proprietăți și sfaturi de la experți.