Spatiu pentru showroom/ cabinet medical de inchiriat pe Bd. Dacia

2.200 € / lună
10.73 € / mp / lună

Dacia, Oradea

Suprafață utilă totală:
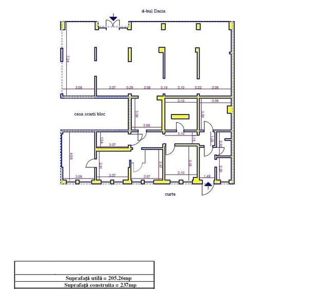
205,26 mp
Nr. niveluri:
8

Descriere spațiu comercial

Prestige Imobiliare va propune spre inchiriere: Spatiu comercial | Zona Decebal-Dacia, Oradea Caracteristici generale: Suprafata utila: 205,26 mp Destinatie actuala: magazin Vitrina stradala: 16 ml Trafic pietonal: mediu - intens Trafic auto: intens Numar incaperi: 7 Doua accese, cea din spate are zona hasurata pentru acces non-stop aprovizionare Bai: 2 Parcare: publica in fata spatiului + o parcare mare in apropiere Utilitati: curent monofazic si trifazic, apa, canalizare Incalzire: spatiu neracordat la termoficare — fara sistem de incalzire instalat in prezent Dotari incluse: Pardoseala Tarket, curent trifazic de 50kWh, Conditii de inchiriere: Chirie lunara: 2.200 €/luna (negociabil) Garantie: echivalentul unei luni de chirie (2.200 €) Comisionul aferent inchirierii este 50% din echivalentul unei luni de chirie (1.100 €) Disponibil: imediat Contactati-ne pentru detalii si vizionare. Disclaimer: Detaliile prezentate sunt furnizate de proprietar si au caracter orientativ. Nr grupuri sanitare: 2 Suprafata construita: 237 mp Nr incaperi: 7 Utilitati - Utilitati generale (Curent,Curent trifazic,Apa,Canalizare) Finisaje - Podele (Linoleum); Iluminat (Lumina naturala); Ferestre cu geam termopan (PVC) Dotari - Contorizare (Apometre) pret inchiriere: 2200 moneda inchiriere: EUR Disponibilitate proprietate: imediat
Citește mai mult Citește mai puțin

Detalii spațiu comercial

ID anunț: 4022010 Actualizat în: 31 Martie 2026
Suprafață utilă: 205,26 mp
Suprafață utilă totală: 205,26 mp
Regim înălțime: P+8E

Istoric preț

Facilități

Contorizare
Apometre
Mobilat
Nemobilat
Utilități
Curent Apă Canalizare
Podele
Linoleum
Ferestre cu geam termopan
PVC

Puncte de interes

Mijloace transport
transport
Bulevardul Dacia
Mijloace transport aprox. 544 m
transport
Piata Decebal
Mijloace transport aprox. 566 m
transport
Pod Decebal
Mijloace transport aprox. 631 m
transport
Bus 17
Mijloace transport aprox. 660 m
Școală
education
Gradinita 45 cu program prelungit
Învățământ aprox. 397 m
education
Colegiul Tehnic Constantin Brancusi
Învățământ aprox. 743 m
education
Don Orione
Învățământ aprox. 829 m
education
Gradinita cu program prelungit Nr. 35
Învățământ aprox. 865 m
Recreere
shopping
Unicarm
Supermarket/Mall aprox. 70 m
parks
Teren sportiv
Recreere aprox. 292 m
shopping
PROFI
Supermarket/Mall aprox. 328 m
restaurants
Vandana
Restaurante aprox. 527 m

Proprietăți similare

Spațiu comercial, de 205 mp, în Dacia
2.200 € / lună
Oradea, Dacia
205 mp utili
Spațiu comercial, de 178 mp, în Ultracentral
2.000 € / lună
Oradea, Ultracentral
178 mp utili
Spațiu comercial, de 203 mp, în Ultracentral
2.200 € / lună
Oradea, Ultracentral
203 mp utili
Spațiu comercial, de 264 mp, în Central
2.200 € / lună
Oradea, Central
264 mp utili
Spațiu industrial, de 334.13000488281 mp, în Decebal
2.600 € / lună
Oradea, Decebal
334,13 mp utili
Spațiu comercial, de 550 mp, în Iosia
2.002 € / lună
Oradea, Iosia
550 mp utili
1999
Spațiu industrial, de 525 mp, în Vest
2.100 € / lună
Oradea, Vest
525 mp utili
Spațiu comercial, de 280 mp, în Calea Aradului
2.000 € / lună
Oradea, Calea Aradului
280 mp utili
Spațiu comercial, de 200 mp, în Ultracentral
2.400 € / lună
Oradea, Ultracentral
200 mp utili
4E

Abonează-te la newsletter să fii primul care primește cele mai noi recomandări de proprietăți și sfaturi de la experți.