Spa?ii comerciale de inchiriat in cartierul Luceafarul vad excelent ?i vizibilitate maxima

15 € / lună
0.02 € / mp / lună

Calea Aradului, Oradea

Suprafață utilă totală:
954 mp

Descriere spațiu comercial

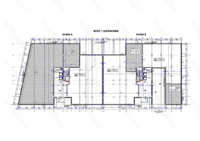
Va oferim spre inchiriere spa?ii comerciale stradale, situate la parterul blocului 1 din cartierul Luceafarul, de pe Calea Aradului din Oradea o zona comerciala in plina dezvoltare. Loca?ia beneficiaza de un vad comercial puternic, vitrine generoase ?i locuri de parcare dedicate clien?ilor, asigurand accesibilitate ?i expunere optima pentru afacerea dumneavoastra. Spa?iile dispun de suprafe?e vitrate mari, care permit iluminare naturala pe tot parcursul zilei ?i ofera o vizibilitate excelenta. Confortul este garantat de sistemul de incalzire in pardoseala, conectat la re?eaua de termoficare a ora?ului. In plus, spa?iile pot fi configurate in func?ie de cerin?ele specifice ale afacerii dumneavoastra, suprafa?a minima fiind de 80 mp. Detalii spa?ii: Suprafe?e vitrate mari; Incalzire in pardoseala, cu agent termic de la sistemul de termoficare; Posibilitatea de compartimentare la cerere (minimum 80-90 mp); Se predau la ro?u, cu utilita?ile aduse in spa?iu. Pre? de inchiriere: 15 euro mp + TVA pentru spa?iile dinspre Calea Aradului 13 euro mp + TVA pentru spa?iile situate in spatele blocului ID anun? : 1757574302
Citește mai mult Citește mai puțin

Detalii spațiu comercial

ID anunț: 1902724 Actualizat în: 01 Aprilie 2026
Suprafață utilă: 954 mp
Suprafață utilă totală: 954 mp

Istoric preț

Proprietăți similare

Spațiu comercial, de 133 mp, în Central
15 € / lună
Oradea, Central
133 mp utili
Spațiu comercial, de 120 mp, în Central
15 € / lună
Oradea, Central
120 mp utili
Spațiu comercial, de 100 mp, în Exterior Vest
15 € / lună
Oradea, Exterior Vest
100 mp utili
Spațiu comercial, de 171 mp, în Central
15 € / lună
Oradea, Central
171 mp utili
Spațiu comercial, de 414 mp, în Ultracentral
15 € / lună
Oradea, Ultracentral
414 mp utili
Spațiu comercial, în Tileagd
14 € / lună
Județul Bihor, Tileagd
5.800 mp teren
Spațiu comercial, în Cheriu
15 € / lună
Județul Bihor, Cheriu
2.552 mp teren

Abonează-te la newsletter să fii primul care primește cele mai noi recomandări de proprietăți și sfaturi de la experți.