Spatiu 369mp, Rond Uricani, aproape de Metro

2.583 € / lună
7 € / mp / lună

Exterior Vest, Iaşi

Suprafață utilă totală:
369 mp
Nr. niveluri:
1
An construcție:
2023

Descriere spațiu comercial

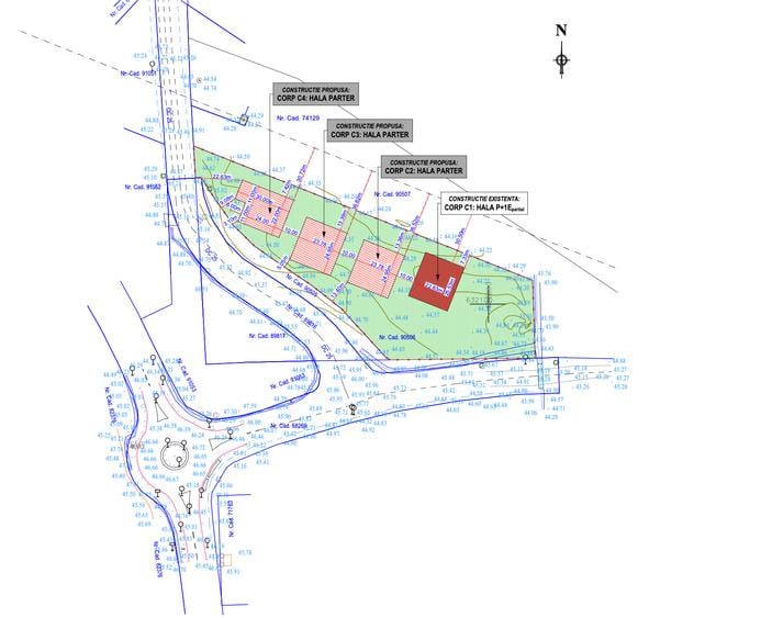
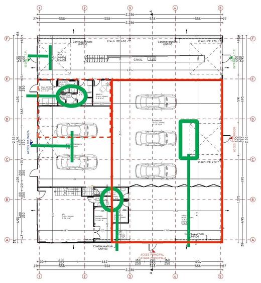
Spatiu 369mp, Rond Uricani, aproape de Metro Spatiu comercial de inchiriat in zona centurii Iasului pentru: - showroom (mobilier, scule, utilaje), - eventual unele depozitari (in special unele care pot avea si un birou de vanzari), - birou (de ex. un birou de proiectare cu showroom integrat), - poate sala sport (fitness), - un restaurant - ori o clinica veterinara “si nu numai”; Zona Uricani - Centura Iasi; 369mp sau eventual alte suprafete; 369mp total = 280mp p + 88,4mp et.; 6,5mH grinda streașina; 7,5mH coama; Suprafata totala teren: 9617mp, repartizata pentru mai multe cladiri; Parcare, acces TIR; Retea apa si apometru, fosa, eventual gaz si contor, 380V si contor - aprox. 75KW; caldura/ rece cu ventilatie/ inverter pe energie electrica; Grup sanitar, 1-2 cai de acces; pereti sandwich 100mm; 7-8 Euro+TVA/mp ar fi pretul orientativ al chiriei, 1,2 Eur+TVA/mp teren; De cand ai avea nevoie? Ce finisaje? Cand sa vizionam? Lucian Creanga - consultant imobiliar cu 400+ oferte spatii comerciale si 100.000mp+ tranzactionati - iti stau la dispozitie! (tel., sms, whatsapp), ; Poate cea mai simpla si eficienta modalitate de a analiza astfel de spatii? Am pregatit pentru tine un portofoliu cu peste 400 de oferte, tocmai ca sa cunosti mai bine piata, sa-ti clarifici criteriile de selectie si sa-ti maximizezi termenii de inchiriere. Esti agent imobiliar? Haide sa facem echipa eficienta impreuna pe termen lung.
Citește mai mult Citește mai puțin

Detalii spațiu comercial

ID anunț: 1817771 Actualizat în: 22 Ianuarie 2026
Suprafață utilă: 369 mp
Suprafață utilă totală: 369 mp
Regim înălțime: P+1E
An construcție: 2023

Istoric preț

Facilități

Utilități
Gaze Curent Apă

Puncte de interes

Mijloace transport
transport
Statia "Troita", linia 20
Mijloace transport aprox. 1714 m
transport
Statia "Antibiotice", linia 20
Mijloace transport aprox. 1777 m
transport
Statia "Daewoo", linia 20
Mijloace transport aprox. 1936 m
Școală
education
Scoala Noua
Învățământ aprox. 1752 m
Recreere
parks
stadion
Recreere aprox. 294 m
parks
Teren sportiv
Recreere aprox. 1620 m
restaurants
Stef
Restaurante aprox. 1694 m
shopping
Carrefour Era
Supermarket/Mall aprox. 1986 m

Proprietăți similare

Spațiu comercial, de 600 mp, în Exterior Vest
2.400 € / lună
Iași, Exterior Vest
600 mp utili
1E
2026
Spațiu industrial, de 335 mp, în Exterior Vest
2.345 € / lună
Iași, Exterior Vest
335 mp utili
1E
2019
Spațiu industrial, de 582 mp, în Păcurari
2.500 € / lună
Iași, Păcurari
582 mp utili
2.869 mp teren
2025
Spațiu comercial, de 1,312 mp, în Baza 3
2.380 € / lună
Iași, Baza 3
1.312 mp utili
1.385 mp teren
2E
Spațiu industrial, de 530 mp, în Tătărași
2.385 € / lună
Iași, Tătărași
530 mp utili
Spațiu comercial, de 71.199996948242 mp, în Ultracentral
2.700 € / lună
Iași, Ultracentral
71,2 mp utili
2025
Spațiu comercial, de 436 mp, în Frumoasa
2.616 € / lună
Iași, Frumoasa
436 mp utili
2E
Spațiu industrial, de 534 mp, în Tătărași
2.670 € / lună
Iași, Tătărași
534 mp utili
Spațiu industrial, în Cug
2.328 € / lună
Iași, Cug
1E
2022

Abonează-te la newsletter să fii primul care primește cele mai noi recomandări de proprietăți și sfaturi de la experți.