Spatiu comercial 396mp, central, in spate la Palas Campus

7.128 € / lună
18 € / mp / lună

Central, Iaşi

Suprafață utilă totală:
396 mp
Nr. niveluri:
2
An construcție:
2000

Descriere spațiu comercial

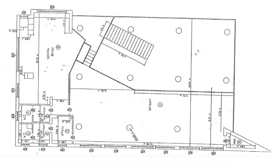
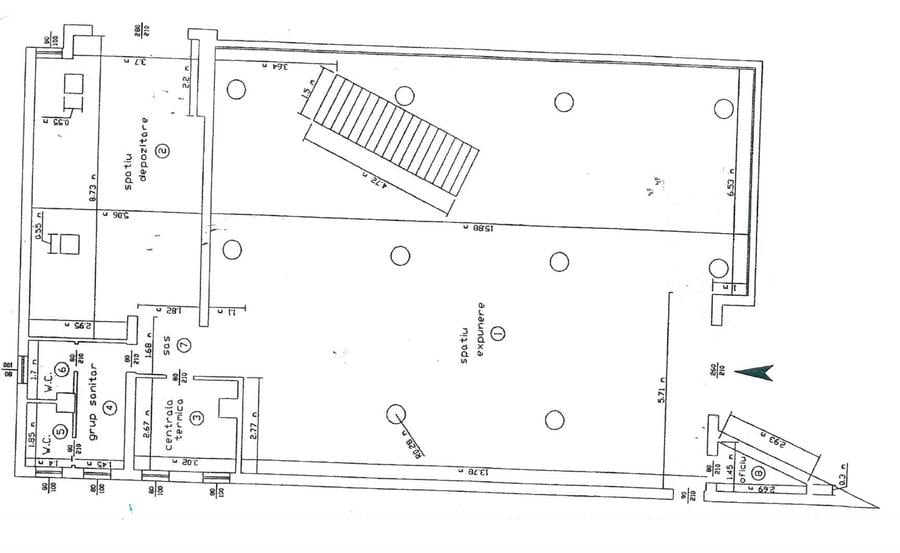
Spatiu comercial 396mp, central, in spate la Palas Campus Spatiu 395,76mp, bd. Regele Mihai I al Romaniei 25B, parter: 241,68mp; etaj: 154,08mp; Centrala termica, chiller, rooftop; retea apa, canalizare, gaz; 3-6 locuri de parcare; Orientativ: 18 Eur+TVA/mp, oferta personalizata la cerere; Lucian Creanga - consultant imobiliar cu 400+ oferte spatii si 100.000mp+ tranzactionati - iti stau la dispozitie! (tel., sms, whatsapp), ; Comision zero daca discutam doar de aceasta oferta si daca nu am mai analizat alte oferte impreuna. Am pregatit pentru tine un portofoliu cu peste 400 de oferte, tocmai ca sa cunosti mai bine piata, sa-ti clarifici criteriile de selectie si sa-ti maximizezi termenii de inchiriere. Esti agent imobiliar? Haide sa facem echipa eficienta impreuna pe termen lung.
Citește mai mult Citește mai puțin

Detalii spațiu comercial

ID anunț: 3640503 Actualizat în: 25 Februarie 2026
Suprafață utilă: 396 mp
Suprafață utilă totală: 396 mp
Regim înălțime: P+2E
An construcție: 2000

Istoric preț

Facilități

Utilități
Gaze Canalizare Curent Apă

Puncte de interes

Mijloace transport
transport
Statia "Pod Sf. Andrei", linia 2,5
Mijloace transport aprox. 190 m
transport
Pod Cantemir
Mijloace transport aprox. 310 m
transport
Statia "Pod Cantemir", linia 19
Mijloace transport aprox. 327 m
transport
Statia "Pod Cantemir", linia 2,5
Mijloace transport aprox. 354 m
Școală
education
Gradinita cu program normal nr.11
Învățământ aprox. 213 m
education
Scoala Auto Jordache
Învățământ aprox. 255 m
education
Scoala auto Soferul Amator
Învățământ aprox. 256 m
education
Gradinita cu Program Prelungit Cuvioasa Parascheva
Învățământ aprox. 324 m
Recreere
restaurants
La'Tino Cafe
Restaurante aprox. 232 m
shopping
Cidma
Supermarket/Mall aprox. 311 m
parks
Teren sportiv
Recreere aprox. 344 m
shopping
Palas Mall
Supermarket/Mall aprox. 413 m

Proprietăți similare

Spațiu comercial, de 395 mp, în Central
6.700 € / lună
Iași, Central
395 mp utili
1E
Proprietate specială, de 1,445 mp, în Zona industrială
7.514 € / lună
Iași, Zona industrială
1.445 mp utili
2E
1975
Spațiu industrial, de 1,171 mp, în Exterior Vest
6.440 € / lună
Iași, Exterior Vest
1.171 mp utili
1E
2022
Spațiu industrial, în Baza 3
6.500 € / lună
Iași, Baza 3
1E
1980
Spațiu comercial, de 2,000 mp, în Baza 3
6.464 € / lună
Iași, Baza 3
2.000 mp utili
2E
1980
Spațiu industrial, de 60,215 mp, în Miroslava
6.900 € / lună
Iași, Miroslava
60.215 mp utili
Spațiu industrial, de 2,524 mp, în Metalurgie
6.900 € / lună
Iași, Metalurgie
2.524 mp utili
1E
Spațiu comercial, de 395.76000976563 mp, în Podu Roș
7.519 € / lună
Iași, Podu Roș
395,76 mp utili
445 mp teren
1E
Spațiu comercial, de 1,160 mp, în Tătărași
7.000 € / lună
Iași, Tătărași
1.160 mp utili

Abonează-te la newsletter să fii primul care primește cele mai noi recomandări de proprietăți și sfaturi de la experți.