Showroom 457mp langa Carrefour, Kaufland, magazine tehnice

3.427 € / lună
7.50 € / mp / lună

Baza 3, Iaşi

Suprafață utilă totală:
457 mp
Nr. niveluri:
1
An construcție:
1980

Descriere spațiu comercial

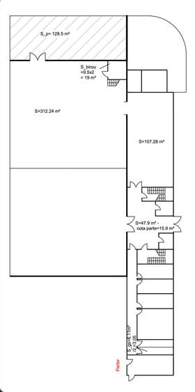
Showroom 457mp langa Carrefour, Kaufland, magazine tehnice Spatiu comercial de inchiriat pentru magazin scule, instalatii, mobila, arhitectura, auto; Spatiu cu dotari/ finisaje si dupa cerinte, situat pe coltul dintre str. Bucium si o viitoare strada; Hala/ spatiu 457,47mp, str. Bucium 34, proprietatea Arhiconstruct; 457,47mp = 312,24mp depozit + 19mp birou + 107,28mp birou/ showroom + 15,9mp cota parte hol + 3,05mp cota parte GS; Hala: 5,2mH grinda; 2,5ml*2,2mh usa; birouri: 2,4mh grinda; 2,9mh placa; Tavan: vata minerala 50mm; Acces TIR; Retea apa, canalizare, gaz, 380V, internet - retelele cu fibra RDS, Orange, Vodafone; centrala termica pe gaz; 2 cai de acces; pereti din zidarie si sandwich; Eventual in depozite se face elicopterizare si se schimba tamplaria; Orientativ: 7,5-9 Eur+TVA, oferta personalizata la cerere; Lucian Creanga - consultant imobiliar cu 400+ oferte spatii si 100.000mp+ tranzactionati - iti sunt aproape! 400+, tocmai ca sa cunosti mai bine piata, sa-ti clarifici criteriile de selectie si sa-ti optimizezi termenii tranzactiei! Comision zero pentru aceasta oferta, daca nu am mai analizat alte oferte impreuna. Esti agent imobiliar? Colaboram.
Citește mai mult Citește mai puțin

Detalii spațiu comercial

ID anunț: 3885099 Actualizat în: 19 Martie 2026
Suprafață utilă: 457 mp
Suprafață utilă totală: 457 mp
Regim înălțime: P+1E
An construcție: 1980

Istoric preț

Facilități

Utilități
Gaze Canalizare Curent Apă

Puncte de interes

Mijloace transport
transport
Moldomobila
Mijloace transport aprox. 77 m
transport
Moldomobila
Mijloace transport aprox. 106 m
transport
Statia "Moldomobila", linia 27,29
Mijloace transport aprox. 113 m
transport
Statia "Sectia de politie nr.5", linia 27,29
Mijloace transport aprox. 268 m
Școală
education
Colegiul Tehnic de Electronica si Telecomunicatii Iasi
Învățământ aprox. 290 m
education
Grupul Scolar Anghel Saligny ( Constructii )
Învățământ aprox. 301 m
education
Liceul Tehnoton
Învățământ aprox. 310 m
education
Liceul Mihail Sturdza
Învățământ aprox. 434 m
Recreere
parks
Parc
Recreere aprox. 146 m
restaurants
Camelot
Restaurante aprox. 407 m
shopping
Media Galaxy (Carrefour (Felicia))
Supermarket/Mall aprox. 469 m
shopping
Carrefour (Felicia)
Supermarket/Mall aprox. 481 m

Proprietăți similare

Spațiu comercial, de 330 mp, în Păcurari
3.630 € / lună
Iași, Păcurari
330 mp utili
1E
2007
Spațiu comercial, de 264 mp, în Tudor Vladimirescu
3.300 € / lună
Iași, Tudor Vladimirescu
264 mp utili
1E
2019
Spațiu industrial, în Exterior Vest
3.588 € / lună
Iași, Exterior Vest
1E
2025
Spațiu comercial, de 300 mp, în Tătărași
3.200 € / lună
Iași, Tătărași
300 mp utili
1E
Spațiu comercial, de 120 mp, în Piața Unirii
3.600 € / lună
Iași, Piața Unirii
120 mp utili
Spațiu comercial, de 111 mp, în Central
3.108 € / lună
Iași, Central
111 mp utili
1E
Spațiu comercial, în Aeroport
3.630 € / lună
Iași, Aeroport
1.000 mp teren
Spațiu comercial, de 140 mp, în Ultracentral
3.600 € / lună
Iași, Ultracentral
140 mp utili
7E
1975
Spațiu comercial, de 133.5 mp, în Bucșinescu
3.604 € / lună
Iași, Bucșinescu
133,5 mp utili
1E

Abonează-te la newsletter să fii primul care primește cele mai noi recomandări de proprietăți și sfaturi de la experți.