Spatiu de Birou/Comercial 240m2 zona Baza 3 - Calea Chisinaului 132

950 € / lună
3.96 € / mp / lună

Baza 3, Iaşi

Suprafață utilă totală:
240 mp

Descriere spațiu comercial

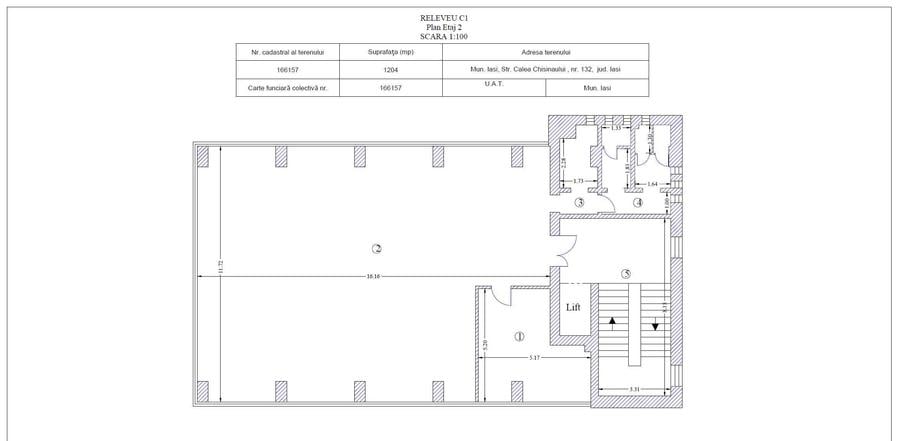
OFERTA !! Inchiriez un spatiu de birou sau comercial tip open-space DIRECT DE LA PROPRIETAR !! COMISION ZERO !! OFERTA AVANTAJOASA VALABILA IN LUNA APRILIE !!! Pentru primele 2 luni pretul este de 950 EURO/luna !!! Pretul este de 1900 EURO/LUNA ( 7,92 euro/m2 ) - negociabil !! 240m2 - Etaj 2 !! Se ofera spre inchiriere un spatiu de birou sau comercial tip open-space in suprafata de 240m2 situat la Etajul 2 a unei cladiri de birouri situata la intersectia dintre Bulevardul Metalurgiei si Calea Chisinaului, profitand de un trafic auto si pietonal intens si un vad comercial generos, fiind pozitionata in imediata aproprie statie de tramvai si autobuz. Cladirea este situata in primul plan in intersectie si mai este cunoscuta ca punct de reper cladirea (magazinul) Dolinex de la Parterul Cladirii. Un aspect foarte important cladirea dispune de autorizatie ISU. 1.) Etaj 2 - 240m2 x 7.92 euro/m2 = 1.900 EURO/luna. Imobilul este finalizat, open-space, recent renovat complet (ex. instaltii electrice, sanitare, internet, sistem anti-incendiu, sistem de climatizare rece-cald) cu finisaje de calitate (parchet trafic intens, gresie in vestiar si grupurile sanitare etc). Spatiul dispune de finisaje si dotari premium pentru standarte de clasa A precum: - Podea tehnologica cu parchet de trafic intens si gresie/granit(casa scarii); - Tavan fals&corpuri de iluminat LED; - Sistem modern de climatizare si ventilare rece-cald; - Sistem de detectie si alarmare cu senzori de fum, centrala anti incendiu, sistem desfumare; - Contorizare individuala(apometru, contor pasant electric); - Retelistica internet CAT6E, rack cu switch individual; - Aparataj Schneider, monitorizare video interior si exterior, iluminat exterior si interior LED; - Tamplarie termopan 3 laturi (50ml de geamuri); - Cladirea dispune de peste 50 locuri de parcare gratuite; Se preteaza ideal pentru activitati de tip: sali de sport, activitati fizice/recreative, sala de dans, spatiu de birou pretabil pentru call center, suport center, firme IT, administrativ, contabilitate, proiectare, arhitectura etc. Pentru mai multe detalii si programare pentru o vizionare suna-ti la nr. de tel.: o754.3o8.o38 - Holban Nicolai (tel. , WhatsApp). Colaboram cu orice agentie sau consultanti imobiliari, pentru mai multe detalii suna-ti la nr. de tel. - o754.3o8.o38 - Holban Nicolai.
Citește mai mult Citește mai puțin

Detalii spațiu comercial

ID anunț: 3875081 Actualizat în: 17 Aprilie 2026
Suprafață utilă: 240 mp
Suprafață utilă totală: 240 mp

Istoric preț

Puncte de interes

Mijloace transport
transport
Statia "Moldova Mall", linia 13
Mijloace transport aprox. 323 m
transport
Statia "Moldova Mall", linia 1
Mijloace transport aprox. 330 m
transport
Moldova Mall
Mijloace transport aprox. 334 m
transport
Moldova Mall
Mijloace transport aprox. 337 m
Școală
education
Gradinita cu program prelungit nr.28
Învățământ aprox. 32 m
education
Departamentul de Ingineria Instalatiilor
Învățământ aprox. 382 m
education
Facultatea de Automatica si Calculatoare
Învățământ aprox. 417 m
education
Institutul politehnic de cercetare Iasi
Învățământ aprox. 457 m
Recreere
restaurants
KFC
Restaurante aprox. 38 m
shopping
Palas Mall
Supermarket/Mall aprox. 94 m
shopping
Palas Mall
Supermarket/Mall aprox. 97 m
parks
Carusel
Recreere aprox. 108 m

Proprietăți similare

Spațiu comercial, de 73 mp, în Baza 3
1.000 € / lună
Iași, Baza 3
73 mp utili
Spațiu comercial, de 51 mp, în Podu Roș
969 € / lună
Iași, Podu Roș
51 mp utili
4E
1962
Spațiu comercial, de 52 mp, în Nicolina
1.000 € / lună
Iași, Nicolina
52 mp utili
4E
Spațiu comercial, de 51 mp, în Podu Roș
1.000 € / lună
Iași, Podu Roș
51 mp utili
8E
Spațiu comercial, de 150 mp, în Central
900 € / lună
Iași, Central
150 mp utili
Spațiu comercial, de 80 mp, în Nicolina
885 € / lună
Iași, Nicolina
80 mp utili
1980
Spațiu comercial, de 51 mp, în Podu Roș
1.000 € / lună
Iași, Podu Roș
51 mp utili
1962
Spațiu comercial, de 88 mp, în Podu Roș
900 € / lună
Iași, Podu Roș
88 mp utili
1965
Spațiu comercial, de 130 mp, în Centru Civic
975 € / lună
Iași, Centru Civic
130 mp utili
2E
2020

Abonează-te la newsletter să fii primul care primește cele mai noi recomandări de proprietăți și sfaturi de la experți.