• Agenție

Spațiu Comercial Premium de 190 mp | Open Space | Corbeanca – Petrești

3.500 € / lună

Corbeanca, Județul Ilfov

Suprafață utilă:
190 mp

Descriere

Raportează anunț

Spațiu Comercial Premium de 190 mp | Open Space | Corbeanca – Petrești

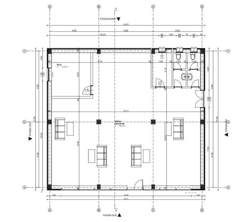
North Bucharest oferă spre închiriere un spațiu comercial generos de 190 mp, situat într-o zonă strategică din Corbeanca – Petrești, cu acces facil și vizibilitate foarte bună. Spațiul este open space și permite compartimentare flexibilă în funcție de necesitățile chiriașului. Ideal pentru activități comerciale diverse: supermarket, showroom, restaurant, cafenea, birouri, farmacie, bancă, magazin de prezentare, magazin alimentar etc. A. Detalii spațiu: Suprafață totală: 190 mp Configurație: open space (posibilitate de împărțire în două unități separate) Zonă expozițională centrală: 138.46 mp Birou: 14.40 mp Grupuri sanitare: 2 (bărbați/femei), fiecare cu 2 lavoare și toaletă Cameră tehnică / depozitare: 12.60 mp B. Configurație compartimentare: Acces principal din fațada sud (intrare pietonală) 2 accese secundare: unul în lateral (est) și unul în spate (nord) Spațiul este luminat natural din toate părțile – ferestre mari pe fiecare fațadă Posibilitate de recepție / zonă de așteptare Se pot amenaja cu ușurință birouri, spații de vânzare, zonă de servire, depozitare etc. C. Prețuri și opțiuni de închiriere: Varianta integrală (190 mp): 3.500 EUR / lună, include 5 locuri de parcare Varianta compartimentată (85 mp): 1.650 EUR / lună, include 5 locuri de parcare D. Avantaje: Spațiu nou, modern Vizibilitate și acces facil din drumul principal Flexibilitate în compartimentare Ideal pentru activități comerciale variate Posibilitate semnalistică vizibilă Locuri de parcare disponibile 📍 Locație excelentă: Corbeanca – Petrești, zonă în dezvoltare, potrivită pentru afaceri cu trafic de clienți, aproape de zona rezidențială și artere principale. 📞 Pentru mai multe informații și programări pentru vizionare, nu ezitați să ne contactați. Nr grupuri sanitare: 2 Utilitati - Utilitati generale (Curent,Apa,Canalizare,Gaz) pretinchiriere: 3500 monedainchiriere: EUR pretinchiriereunitar: 18.42 monedainchiriereunitar: EUR Disponibilitate proprietate: Imediat
Citește mai mult Citește mai puțin

ID anunț: 9201705 Actualizat în: 21 Noiembrie 2025
Suprafață utilă: 190 mp
Suprafață utilă totală: 190 mp

Abonează-te la newsletter să fii primul care primește cele mai noi recomandări de proprietăți și sfaturi de la experți.

Căutări similare