Tomis Plus, spatiu comercial, 128 mp.

649 € / lună
5.07 € / mp / lună

Tomis Plus, Constanţa

Suprafață utilă totală:
128 mp
An construcție:
2013

Descriere spațiu comercial

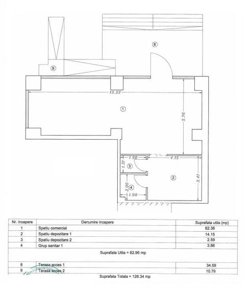
Agenția Zig-Zag vă propune spre închiriere un spațiu comercial cu poziționare strategică, amplasat direct la Bd. Tomis, în zona Tomis Plus – una dintre cele mai dinamice și în continuă dezvoltare zone ale orașului. Cu o suprafață totală de 128 mp, spațiul este compus din: - 83 mp. utili interior, open space, cu posibilitate de re/compartimentare in functie de necesitatile fiecarui chirias; - două terase generoase in proprietate, de 11 mp. și 35 mp.; - vitrină amplă, cu deschidere de 13 ml + 6 ml. Expunerea vitrată impresionantă oferă vizibilitate maximă și lumină naturală abundentă, asigurând un impact vizual puternic pentru orice tip de activitate comercială sau de servicii. Configurația spațiului permite adaptarea pentru: showroom, cafenea / concept store, servicii premium, clinică / cabinet, birou reprezentativ etc. Amplasamentul la bulevard, într-o zonă rezidențială consolidată, garantează trafic constant și potențial comercial ridicat. Proprietar persoana juridic ( pret+TVA). Pentru informații suplimentare și stabilirea unei vizionări, vă invităm să ne contactați.
Citește mai mult Citește mai puțin

Detalii spațiu comercial

ID anunț: 3684903 Actualizat în: 02 Martie 2026
Suprafață utilă: 128 mp
Suprafață utilă totală: 128 mp
An construcție: 2013

Istoric preț

Facilități

Utilități
Curent Apă Canalizare Gaze

Puncte de interes

Mijloace transport
transport
Statia Carrefour, autobuzele 100C, 43C
Mijloace transport aprox. 1230 m
transport
Carrefour [43C 100C]
Mijloace transport aprox. 1295 m
transport
Sanatoriu [3]
Mijloace transport aprox. 1502 m
transport
Sere[3 43C 100C]
Mijloace transport aprox. 1613 m
Școală
education
Şcoala cu Clasele I-VIII Nr.14
Învățământ aprox. 1244 m
education
Scoala Nr. 14
Învățământ aprox. 1247 m
education
Gradinita Nr.39
Învățământ aprox. 1268 m
education
Baza nautica UMC
Învățământ aprox. 1933 m
Recreere
shopping
Carrefour
Supermarket/Mall aprox. 1045 m
shopping
Centrul Comercial Tom
Supermarket/Mall aprox. 1104 m
restaurants
Popasul Cismea Restaurant (en)
Restaurante aprox. 1910 m
parks
Parc
Recreere aprox. 1940 m

Proprietăți similare

Spațiu comercial, de 54 mp, în Tomis III
700 € / lună
Constanța, Tomis III
54 mp utili
8E
1980
Spațiu comercial, de 60 mp, în Casa de Cultură
649 € / lună
Constanța, Casa de Cultură
60 mp utili
4E
Spațiu industrial, de 300 mp, în Inel II
630 € / lună
Constanța, Inel II
300 mp utili
Spațiu comercial, de 58 mp, în Tomis III
620 € / lună
Constanța, Tomis III
58 mp utili
Spațiu comercial, în Central
600 € / lună
Constanța, Central
Spațiu comercial, de 36 mp, în Delfinariu
642 € / lună
Constanța, Delfinariu
36 mp utili
5E
Spațiu comercial, de 35 mp, în Tomis III
700 € / lună
Constanța, Tomis III
35 mp utili
Spațiu comercial, de 60 mp, în Delfinariu
600 € / lună
Constanța, Delfinariu
60 mp utili
Spațiu industrial, de 170 mp, în Kamsas
668 € / lună
Constanța, Kamsas
170 mp utili

Abonează-te la newsletter să fii primul care primește cele mai noi recomandări de proprietăți și sfaturi de la experți.