Spațiu comercial premium, clădire nouă – 560 mp

6.720 € / lună
12 € / mp / lună

Casa de Cultură, Constanţa

Suprafață utilă totală:
560 mp

Descriere spațiu comercial

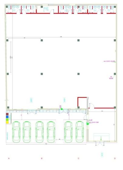
Avem plăcerea de a vă propune spre închiriere o proprietate cu potențial ridicat, situată în Constanța, pe strada Oborului nr. 42. Spațiul este potrivit atât pentru activități comerciale, cât și pentru birouri sau servicii, beneficiind de o suprafață totală de aproximativ 560 mp, tip open space, cu deschidere de 24 m la stradă, înălțime de până la 6 m și o curte de 115 mp. Proprietatea este dotată cu toate utilitățile necesare – energie electrică (25 kw, 400 V, trifazat), apă, canalizare, gaze și internet prin fibră optică. Proprietatea beneficiază de o amplasare strategică pe strada Oborului, arteră de circulație cu lățime de 12 m, paralelă cu Bulevardul Alexandru Lăpușneanu. • Trotuar generos: 4 m lățime – acces facil și vizibilitate excelentă • Zonă intens circulată – pietonal și auto, ideală pentru activități comerciale sau de servicii. Condițiile de închiriere sunt flexibile și pot fi adaptate în funcție de nevoile viitorului chiriaș. Rămânem la dispoziția dumneavoastră pentru programarea unei vizionări.
Citește mai mult Citește mai puțin

Detalii spațiu comercial

ID anunț: 3225314 Actualizat în: 02 Februarie 2026
Suprafață utilă: 560 mp
Suprafață utilă totală: 560 mp

Istoric preț

Puncte de interes

Mijloace transport
transport
Statia Bucuresti; Linia 100C
Mijloace transport aprox. 201 m
transport
Policlinica 2 [100
Mijloace transport aprox. 309 m
transport
Statia Policlinica; Linia 100C
Mijloace transport aprox. 318 m
transport
Statia Liceul Ovidiu; Linia 48,100C
Mijloace transport aprox. 359 m
Școală
education
COLEGIUL TEHNIC VASILE PÂRVAN
Învățământ aprox. 113 m
education
Liceul cu Program Sportiv - CSS
Învățământ aprox. 317 m
education
Liceul cu program sportiv Nicolae Rotaru
Învățământ aprox. 320 m
education
Scoala nr. 24
Învățământ aprox. 333 m
Recreere
restaurants
Angelli
Restaurante aprox. 153 m
shopping
Kaufland
Supermarket/Mall aprox. 286 m
parks
Fantana arteziana "Policlinica 2"
Recreere aprox. 418 m
shopping
Carrefour Market
Supermarket/Mall aprox. 428 m

Proprietăți similare

Spațiu comercial, de 306 mp, în Casa de Cultură
6.120 € / lună
Constanța, Casa de Cultură
306 mp utili
Spațiu industrial, în Zona Industrială
6.471 € / lună
Constanța, Zona Industrială
1980
Spațiu comercial, de 520 mp, în Trocadero
6.200 € / lună
Constanța, Trocadero
520 mp utili
2E
2024
Spațiu comercial, de 550 mp, în Km 5
6.050 € / lună
Constanța, Km 5
550 mp utili
Spațiu industrial, în CET
6.699 € / lună
Constanța, CET
1E
Spațiu industrial, de 1,400 mp, în Zona Industrială
7.000 € / lună
Constanța, Zona Industrială
1.400 mp utili
1E
Spațiu comercial, de 428.08999633789 mp, în Central
6.499 € / lună
Constanța, Central
428,09 mp utili
10E
1975
Spațiu industrial, de 1,033 mp, în Zona Industrială
6.198 € / lună
Constanța, Zona Industrială
1.033 mp utili
1E
2024
Spațiu comercial, de 360 mp, în Universitate
7.200 € / lună
Constanța, Universitate
360 mp utili
6E
2026

Abonează-te la newsletter să fii primul care primește cele mai noi recomandări de proprietăți și sfaturi de la experți.