Spatiu comercial de inchiriat in Hasdeu

990 € / lună
28.29 € / mp / lună

Haşdeu, Cluj-Napoca

Suprafață utilă totală:
35 mp

Descriere spațiu comercial

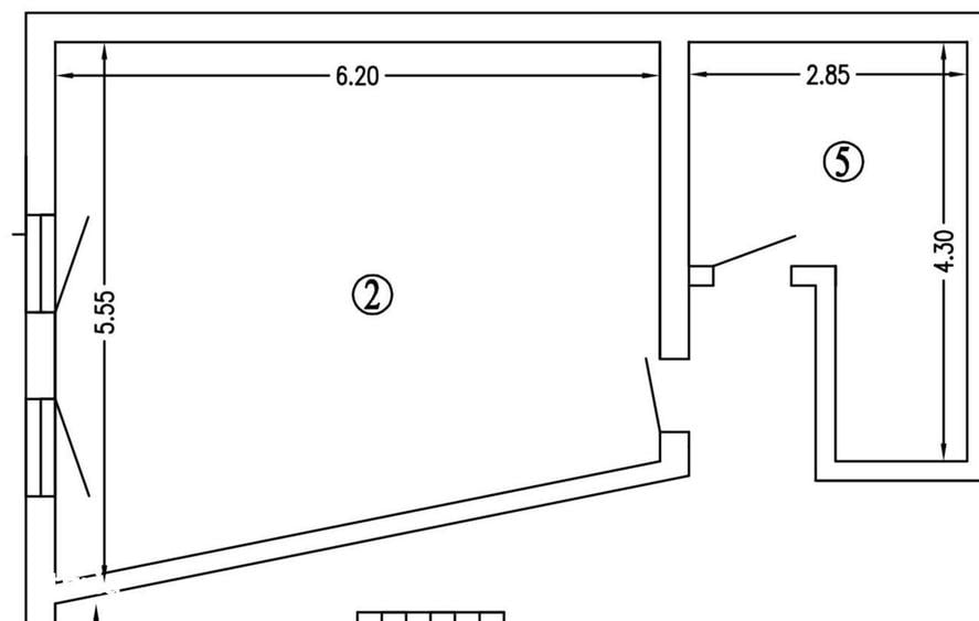
Lions imobiliare ofera spre inchiriere spatiu comercial situat in cartierul Zorilor, zona Hasdeu.Acesta este situat la parterul unui imobil, are o suprafata utila de 35 mp, este compus dintr-o camera open space si un grup social.Imobilul este pretabil pentru diferite activitati: cabinet medical, farmacie, etc.Pret 990 euro/ luna + tva.Daca sunteti interesat(a) sa inchiriati acest spatiu sau doriti mai multe informatii suplimentare despre spatiu puteti completa formularul dedicat ofertei de pe pagina si veti fi contactat de catre un specialist al agentiei in cel mai scurt timp.
Citește mai mult Citește mai puțin

Detalii spațiu comercial

ID anunț: 3607987 Actualizat în: 26 Martie 2026
Suprafață utilă: 35 mp
Suprafață utilă totală: 35 mp

Istoric preț

Puncte de interes

Mijloace transport
transport
Statia Spital Recuperare, Linia 50
Mijloace transport aprox. 20 m
transport
Spital Recuperare Sud
Mijloace transport aprox. 50 m
transport
Spital Recuperare Nord
Mijloace transport aprox. 96 m
transport
Zorilor
Mijloace transport aprox. 521 m
Școală
education
UT Facultatea de Constructii si Facultatea de Arhitectura si Urbanism
Învățământ aprox. 201 m
education
CFDP si Facultatea de Arhitectura si Urbanism
Învățământ aprox. 245 m
education
Helen
Învățământ aprox. 288 m
education
Grăd.Universul copiilor str.1
Învățământ aprox. 417 m
Recreere
parks
Parc
Recreere aprox. 25 m
restaurants
Mates Pub
Restaurante aprox. 28 m
shopping
Carrefour Express
Supermarket/Mall aprox. 54 m
shopping
Profi
Supermarket/Mall aprox. 214 m

Proprietăți similare

Teren construcție, în Zorilor
1.000 € / lună
Cluj-Napoca, Zorilor
500 mp teren
Construcții
Spațiu comercial, de 50 mp, în Mărăști
990 € / lună
Cluj-Napoca, Mărăști
50 mp utili
Spațiu comercial, de 25 mp, în Mănăștur
1.000 € / lună
Cluj-Napoca, Mănăștur
25 mp utili
Spațiu comercial, de 60 mp, în Someșeni
960 € / lună
Cluj-Napoca, Someșeni
60 mp utili
Spațiu comercial, de 35 mp, în Central
900 € / lună
Cluj-Napoca, Central
35 mp utili
3E
1990
Spațiu comercial, de 34 mp, în Ultracentral
950 € / lună
Cluj-Napoca, Ultracentral
34 mp utili
2E
1967
Spațiu comercial, de 70 mp, în Mărăști
1.000 € / lună
Cluj-Napoca, Mărăști
70 mp utili
1980
Spațiu comercial, de 100 mp, în Gheorgheni
1.000 € / lună
Cluj-Napoca, Gheorgheni
100 mp utili
2E
Spațiu comercial, de 30 mp, în Ultracentral
900 € / lună
Cluj-Napoca, Ultracentral
30 mp utili
3E

Abonează-te la newsletter să fii primul care primește cele mai noi recomandări de proprietăți și sfaturi de la experți.