Inchiriere cladire noua 1200 mp utili, ideala pentru gradinita- cresa in Dambul

15.009 € / lună
9.38 € / mp / lună

Dâmbul Rotund, Cluj-Napoca

Suprafață utilă totală:
1.600 mp
Nr. niveluri:
2
An construcție:
2025

Descriere spațiu comercial

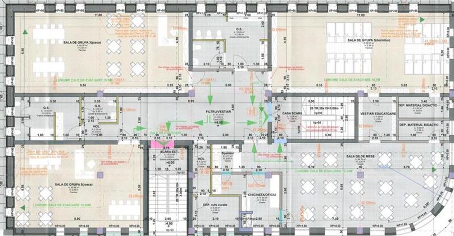
CLASIC Imobiliare va propune spre inchiriere o cladire noua cu suprafata utila de 1600 mp, autorizata pentru gradinita in cartierul Dambul Rotund si este desfasurata astfel: n n n nDEMISOL- suprafata de 400 mp utili, aproximativ 14 locuri de parcare, camera tehnica n n n nPARTER- patru incaperi generoase, cabinet medical, chicineta, vestiar, patru grupuri sanitare n n n nETAJ 1- patru incaperi generoase, chicineta, vestiar, trei grupuri sanitare n n n nETAJ 2- patru incaperi generoase, chicineta, vestiar, patru grupuri sanitare n n n nCladirea se preda finisata complet, cu incalzire in pardoseala, tarchet, lavabil, corpuri de iluminat, centrala termica proprie, geamuri termopan 3 sticle. Are curte libera de aproximativ 500 mp cu spatiu de joaca pentru copii si acces separat exterior pentru fiecare nivel in parte. n n n nIn cazul in care sunteti interesat de o vizionare sau alte detalii suplimentare nu ezitati sa ne contactati. ID intern: CC38112619 n n n nPret 19.000 euro+TVA n n
Citește mai mult Citește mai puțin

Detalii spațiu comercial

ID anunț: 3478312 Actualizat în: 12 Februarie 2026
Suprafață utilă: 1.600 mp
Suprafață utilă totală: 1.600 mp
Regim înălțime: P+2E
An construcție: 2025

Istoric preț

Facilități

Utilități
Apă Curent Gaze Canalizare

Puncte de interes

Mijloace transport
transport
Fagaras
Mijloace transport aprox. 937 m
transport
Statia Fagaras, Linia 31
Mijloace transport aprox. 945 m
transport
Trandafirilor
Mijloace transport aprox. 950 m
transport
Statia Trandafirilor, Linia 31
Mijloace transport aprox. 960 m
Școală
education
Grăd.Neghiniţăstr. 1
Învățământ aprox. 634 m
education
Colegiul Naţional George Bariţiu
Învățământ aprox. 809 m
education
Scoala generala nr. 7 / Emil Isac
Învățământ aprox. 854 m
education
Scoala Generala si Liceul Waldorf
Învățământ aprox. 1002 m
Recreere
parks
Teren sportiv
Recreere aprox. 811 m
restaurants
Restaurant
Restaurante aprox. 994 m
shopping
Lidl
Supermarket/Mall aprox. 1657 m
shopping
Oncos
Supermarket/Mall aprox. 1911 m

Proprietăți similare

Spațiu comercial, de 3,600 mp, în Exterior Est
16.200 € / lună
Cluj-Napoca, Exterior Est
3.600 mp utili
5.000 mp teren
Spațiu comercial, de 1,400 mp, în Someșeni
15.000 € / lună
Cluj-Napoca, Someșeni
1.400 mp utili
Spațiu comercial, de 3,300 mp, în Exterior Vest
16.500 € / lună
Cluj-Napoca, Exterior Vest
3.300 mp utili
1.500 mp teren
2020
Spațiu industrial, de 2,500 mp, în Iris
16.250 € / lună
Cluj-Napoca, Iris
2.500 mp utili
Spațiu comercial, de 37 mp, în Mănăștur
16.000 € / lună
Cluj-Napoca, Mănăștur
37 mp utili
Spațiu comercial, de 1,260 mp, în Mănăștur
13.860 € / lună
Cluj-Napoca, Mănăștur
1.260 mp utili
Spațiu comercial, de 1,000 mp, în Bună Ziua
15.000 € / lună
Cluj-Napoca, Bună Ziua
1.000 mp utili
3E
Spațiu comercial, de 873 mp, în Central
13.531 € / lună
Cluj-Napoca, Central
873 mp utili
Spațiu industrial, de 3,100 mp, în Industrial
13.950 € / lună
Cluj-Napoca, Industrial
3.100 mp utili
1980

Abonează-te la newsletter să fii primul care primește cele mai noi recomandări de proprietăți și sfaturi de la experți.