
5 luni în urmă
14
- Agenție
De inchiriat hala cu birouri zona 1 Mai, Cluj-Napoca
3.500 €
/ lună
Central, Cluj-Napoca
Descriere
Raportează anunț
Sesizează o problemă
De inchiriat hala cu birouri zona 1 Mai, Cluj-Napoca
De inchiriat hala cu birouri zona 1 Mai, Cluj-Napoca
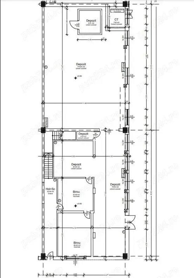
Agen?ia Reform Imobiliare va propune spre inchiriere o hala spa?ioasa ?i func?ionala, ideala pentru depozitare ?i activita?i administrative, situata in zona 1 Mai, Cluj-Napoca. Suprafa?a totala: 648 mp Parter (432 mp): Inal?ime: 4 m Spa?iu open-space pentru depozitare 2 birouri 2 accese Dotat cu sistem de racire, ideal pentru produse farmaceutice Etaj (216 mp): 5 incaperi pentru birouri Bucatarie Toalete Dispune de generator propriu Pre?: 5,5 mp 3500 euro Contact pentru detalii ?i vizionari: ID anun?
Citește mai mult
Citește mai puțin
ID anunț: 191205
Actualizat în: 01 Octombrie 2025
Suprafață utilă:
648 mp
Suprafață utilă totală:
648 mp
Istoric preț
Proprietăți similare
Abonează-te la newsletter să fii primul care primește cele mai noi recomandări de proprietăți și sfaturi de la experți.
Căutări similare
- Spații comerciale de închiriat în Central
- Spații comerciale de închiriat în Cluj-Napoca
- Spații comerciale de închiriat în Mărăști
- Spații comerciale de închiriat în Someșeni
- Spații comerciale de închiriat în Dâmbul Rotund
- Spații comerciale de închiriat în Mănăștur
- Spații comerciale de închiriat în Iris
- Spații comerciale de închiriat în Gheorgheni
- Spații comerciale de închiriat în Ultracentral
- Spații comerciale de închiriat în Zorilor
- Spații comerciale de închiriat în Bulgaria
- Spații comerciale de închiriat în Grigorescu