Caransebes - Sp. Birouri cu 7 camere - S:180mp

1.000 € / lună
5.56 € / mp / lună

Caransebeş, Judeţul Caraş Severin

Suprafață utilă totală:
180 mp

Descriere spațiu comercial

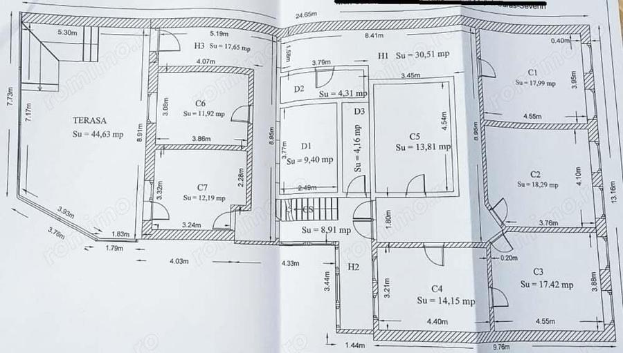
IM Imobiliare va ofera spre inchiriere spatiu de birouri cu 7 camere si locuri de depozitare cu o suprafata totala de 180mp si o terasa de 45 mp. Spatiul este compartimentat cum se vede in planul din imagini. Pentru mai multe detalii sunati la numarul afisat. ID anun? : 1733409660
Citește mai mult Citește mai puțin

Detalii spațiu comercial

ID anunț: 165199 Actualizat în: 21 Ianuarie 2026
Suprafață utilă: 180 mp
Suprafață utilă totală: 180 mp

Istoric preț

Proprietăți similare

Spațiu comercial, de 240 mp, în Micro IV
1.000 € / lună
Reșița, Micro IV
240 mp utili
Spațiu comercial, de 60 mp, în Micro IV
900 € / lună
Reșița, Micro IV
60 mp utili
Spațiu comercial, de 100 mp, în Micro III
1.000 € / lună
Reșița, Micro III
100 mp utili
Spațiu comercial, de 160 mp, în Central
1.000 € / lună
Reșița, Central
160 mp utili

Abonează-te la newsletter să fii primul care primește cele mai noi recomandări de proprietăți și sfaturi de la experți.