Cladire birouri individuala

6.320 € / lună
8 € / mp / lună

Vlahuţă, Braşov

Suprafață utilă totală:
790 mp

Descriere spațiu comercial

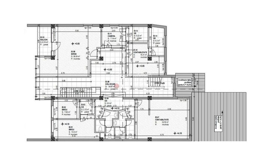
Spatiul accesat este situat in zona B-dului Alexandru Vlahuta, in imediata apropiere a ITC. Pozitionat intr-o zona dinamica a orasului Brasov, imobilul este ideal pentru exploatare ca sediu de firma. LAYOUT: SUBSOL: - suprafata utila: 75mp; - amenajata in sali de meeting; PARTER: - suprafata utila: 232mp; ETAJ 1: - suprafata utila: 205mp; ETAJ 2: - suprafata utila: 196mp; MANSARDA: - suprafata utila: 76mp; DESTINATIE: Spatiul propus este ideal pentru activitati de tip office, sediu firma, call center, SPA sau clinica medicala. DOTARI: - gresie; - parchet; - mocheta; - sistem climatizare HVAC; - aer conditionat; - plafon casetat; - sistem supraveghere video/alarma; - tamplarie din PVC cu team termopan; - centrala termica; - balcon la etajul 1 si la mansarda; - parcare privata; - grupuri sanitare / nivel. FACILITATI SI SERVICII: - Transport public, la 50 m; - Curte (loc fumat); - Receptie. PARCARE PROPRIE: 6 LOCURI; SITUATIE C.F.: - Spatiu Comercial. NOTA: Perioada Minima Inchiriere Acceptata: 12 luni; Nr terase: 2 Nr grupuri sanitare: 7 Suprafata construita: 950 mp Nr incaperi: 19 Disponibilitate proprietate: Imediat Suprafata totala: 460 m2 An finalizare constructie: 2008 Stadiu constructie: Finalizat Numar incaperi: 19 Numar Grupuri Sanitare: 7 Posibilitate parcare: Nu Tip imobil: Cladire de birouri Publicat prin , vezi anuntul complet aici.
Citește mai mult Citește mai puțin

Detalii spațiu comercial

ID anunț: 28857 Actualizat în: 04 Februarie 2026
Suprafață utilă: 790 mp
Suprafață utilă totală: 790 mp

Istoric preț

Puncte de interes

Mijloace transport
transport
Statia "Branduselor", linia 21,45,23,(40),8
Mijloace transport aprox. 106 m
transport
Branduselor
Mijloace transport aprox. 114 m
transport
Statia "Branduselor", linia 21,45,23,(40),8
Mijloace transport aprox. 176 m
transport
Branduselor
Mijloace transport aprox. 204 m
Școală
education
Gradinita 36
Învățământ aprox. 174 m
education
Şcoala Generală nr. 27
Învățământ aprox. 249 m
education
Scoala Generala Nr. 27
Învățământ aprox. 253 m
education
Gradinita Nr.29
Învățământ aprox. 400 m
Recreere
restaurants
Pizza Nela Bruni
Restaurante aprox. 102 m
parks
Parc
Recreere aprox. 125 m
shopping
Carrefour Market
Supermarket/Mall aprox. 179 m
shopping
Carrefour Express
Supermarket/Mall aprox. 185 m

Proprietăți similare

Spațiu comercial, de 240 mp, în Blumăna
5.700 € / lună
Brașov, Blumăna
240 mp utili
2E
1960
Spațiu industrial, de 1,500 mp, în Vest
6.750 € / lună
Brașov, Vest
1.500 mp utili
2010
Spațiu industrial, de 1,229 mp, în Astra
6.145 € / lună
Brașov, Astra
1.229 mp utili
1.229 mp teren
1985
Spațiu industrial, de 1,300 mp, în Griviței
5.850 € / lună
Brașov, Griviței
1.300 mp utili
6.000 mp teren
2005
Spațiu comercial, de 350 mp, în Centrul Civic
5.750 € / lună
Brașov, Centrul Civic
350 mp utili
2015
Spațiu comercial, de 700 mp, în Răcădău
5.950 € / lună
Brașov, Răcădău
700 mp utili
1E
Spațiu comercial, de 350 mp, în Ultracentral
5.750 € / lună
Brașov, Ultracentral
350 mp utili
6E
1980
Spațiu comercial, de 590 mp, în Brașovul Vechi
6.000 € / lună
Brașov, Brașovul Vechi
590 mp utili
2E
2012
Spațiu comercial, de 274.57000732422 mp, în Răcădău
6.153 € / lună
Brașov, Răcădău
274,57 mp utili
12E

Abonează-te la newsletter să fii primul care primește cele mai noi recomandări de proprietăți și sfaturi de la experți.