Spatiu comercial, 2 camere, terasa 23 mp, acces din terasa Apahida

500 € / lună
13.51 € / mp / lună

Apahida, Judeţul Cluj

Suprafață utilă totală:
37 mp
An construcție:
2025

Descriere spațiu comercial

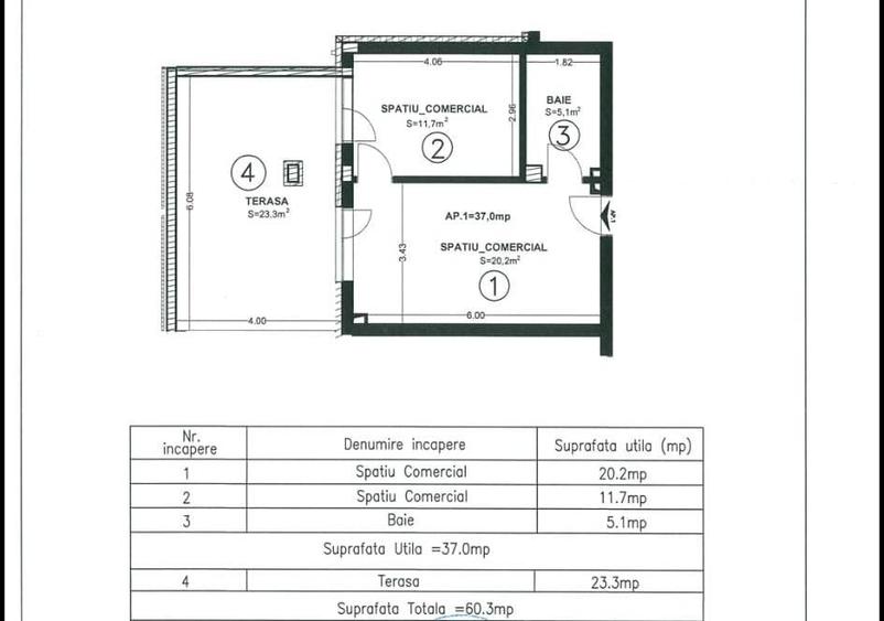
Spatiu comercial inscris in cartea funciara! Locatie: Apahida, Ansamblul Estimo de pe str.Octavian Paler, bloc nou. Parter cu acces direct din terasa dar si din casa scarii. Se afla la prima inchiriere, peretii sunt zugraviti in lavabil alb, baia finisata, centrala termica proprie, incalzire prin pardoseala. Pretabil pentru activitati de birou, proiectare, salon beauty, infrumusetare, magazin online. Compus din 2 camere, baie si terasa: suprafata utila 37 mp astfel: 20,2 mp+11,7 mp+baia 5,1 mp si TERASA 23,3 mp. Dispune de un loc de parcare. Pret de inchiriere 500 euro/luna. Se inchiriaza prin Agentia Record Imobiliare comision 50%.
Citește mai mult Citește mai puțin

Detalii spațiu comercial

ID anunț: 2812046 Actualizat în: 15 Ianuarie 2026
Suprafață utilă: 37 mp
Suprafață utilă totală: 37 mp
An construcție: 2025

Istoric preț

Facilități

Utilități
Apă Gaze Canalizare
Dotări
Instalație încălzire

Puncte de interes

Școală
education
Scoala Veche
Învățământ aprox. 1455 m
Recreere
restaurants
Han Km 17
Restaurante aprox. 1485 m

Proprietăți similare

Spațiu comercial, de 61 mp, în Florești
550 € / lună
Județul Cluj, Florești
61 mp utili
3E
2020
Spațiu comercial, de 30 mp, în Central
490 € / lună
Cluj-Napoca, Central
30 mp utili
1E
1970
Spațiu comercial, de 38 mp, în Mărăști
501 € / lună
Cluj-Napoca, Mărăști
38 mp utili
2006
Spațiu comercial, de 60 mp, în Florești
520 € / lună
Județul Cluj, Florești
60 mp utili
2014
Spațiu comercial, de 60 mp, în Gherla
450 € / lună
Județul Cluj, Gherla
60 mp utili
Spațiu comercial, de 82 mp, în Florești
499 € / lună
Județul Cluj, Florești
82 mp utili
Spațiu comercial, de 250 mp, în Central
550 € / lună
Cluj-Napoca, Central
250 mp utili
Spațiu comercial, de 15 mp, în Central
450 € / lună
Cluj-Napoca, Central
15 mp utili
Spațiu comercial, de 70 mp, în Central
490 € / lună
Județul Cluj, Dej
70 mp utili

Abonează-te la newsletter să fii primul care primește cele mai noi recomandări de proprietăți și sfaturi de la experți.