SAD CABINET MEDICINA FAMILIE Simion Barnutiu - Lorena

125.000 €
1,893.94 € / mp

Simion Bărnuţiu, Timişoara

Suprafață utilă totală:
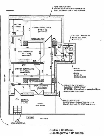
66,65 mp
An construcție:
2009

Descriere spațiu comercial

Va propunem spre vanzare un Spatiu cu Alta Dstinatie in zona Simion Barnutiu -Telegrafului - Lorena, SAD ce este cu destinatia de Cabinet Madicina de Familie. Cabinetele sunt functionale in acest moment si sunt dotate si compartimentate dupa toate normele in vigoare ceea ce permite potentialului cumparator sa desfasoare acelasi tip de activitate sau chiar unui investitor sa aiaba in chirie acest domeniu de activitate. Avand in evdere procedurile tot mai complicate si limitarea SAD-urilor pe oras, acest spatiu ofera posibilitatea inceperii activitatii sau chiar continuarea ei in acest domeniu. Compartimentarea formata din din 2 |cabinete consultatie, sala de tratament, sala de asteptare, vestiar, grup sanitar pacienti, grup sanitar personal medical, boxa curatenie si deseuri periculoase, hol si tersa, ca si in RLV-ul atasat.
Citește mai mult Citește mai puțin

Detalii spațiu comercial

ID anunț: 2854972 Actualizat în: 06 Aprilie 2026
Suprafață utilă totală: 66,65 mp
Regim înălțime: P+3E
An construcție: 2009

Istoric preț

Facilități

Utilități
Gaze Curent Canalizare Apă

Puncte de interes

Mijloace transport
transport
Statie Renasterii T11
Mijloace transport aprox. 89 m
transport
Renasterii
Mijloace transport aprox. 116 m
transport
Samuil Micu
Mijloace transport aprox. 266 m
transport
Samuil Micu
Mijloace transport aprox. 320 m
Școală
education
SoFi Day Care
Învățământ aprox. 203 m
education
Grădiniţa Program Normal Nr. 16
Învățământ aprox. 210 m
education
Colegiul Tehnic Regele Ferdinand I
Învățământ aprox. 255 m
education
COLEGIUL TEHNIC "REGELE FERDINAND I " - Grup Scolar Energetic
Învățământ aprox. 304 m
Recreere
restaurants
Bar Davinci
Restaurante aprox. 124 m
shopping
Profi City
Supermarket/Mall aprox. 274 m
parks
Parc
Recreere aprox. 279 m
shopping
Profi City Dorobantilor
Supermarket/Mall aprox. 467 m

Proprietăți similare

Spațiu industrial, de 56 mp, în Lipovei
114.425 €
Timișoara, Lipovei
56 mp utili
1E
2022
Spațiu comercial, de 80.599998474121 mp, în Șagului
120.000 €
Timișoara, Șagului
80,6 mp utili
3E
2024
Spațiu comercial, de 41 mp, în P-ța Unirii
114.990 €
Timișoara, P-ța Unirii
41 mp utili
2E
Spațiu comercial, de 56 mp, în Lipovei
114.425 €
Timișoara, Lipovei
56 mp utili
5E
Spațiu comercial, de 73 mp, în Fabric
118.000 €
Timișoara, Fabric
73 mp utili
1E
1950
Spațiu comercial, de 77 mp, în Torontalului
120.990 €
Timișoara, Torontalului
77 mp utili
3E
2024
Spațiu comercial, de 62 mp, în Torontalului
125.000 €
Timișoara, Torontalului
62 mp utili
2010
Spațiu comercial, de 83 mp, în Freidorf
120.000 €
Timișoara, Freidorf
83 mp utili
3E
2025
Spațiu comercial, de 52 mp, în Girocului
118.000 €
Timișoara, Girocului
52 mp utili

Abonează-te la newsletter să fii primul care primește cele mai noi recomandări de proprietăți și sfaturi de la experți.