Proprietate speciala Cladire Mixta - Investitie - Agricultori/Decebal

6.000.000 €
4,590.67 € / mp

Decebal, Bucureşti

Suprafață utilă totală:
1.307 mp
An construcție:
2024

Descriere spațiu comercial

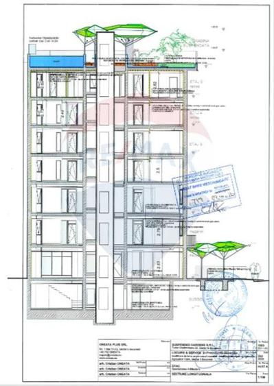
Această proprietate speciala reprezinta o oportunitate unica pentru investitorii! Va prezentam la vanzare o cladire noua (finalizata in 2024) cu regim de inaltime S+P+M+4E+5E retras, situata pe Str Agricultori, in proximitatea Bdulul Decebal. Cladirea are o amprenta la sol de 132 mp, este construita pe o suprafata de teren de 332 mp si are destinatie mixta: • rezidential (6 apartamente, un penthouse, terasa, piscina), • comercial: 4 birouri, un magazin alimentar si un restaurant cu terasa cu profil italian. Proprietatea are lift si 10 locuri de parcare cu 2 prize pentru incarcare electrica. Suprafata construita desfasurata este de 1710 mp cuprinzand subsol, parter, mezanin si 5 etaje, ultimul retras. Proprietatea are acces la 3 strazi: Aleea Agricultori, strada Agricultori si Str Delea Noua, Destinatia acestei cladiri este extrem de versatila ea putand fi usor transformata complet in spatii de birouri sau clinica medicala sau hotel boutique. Configuratie: Subsol - 121 mp Bucatarie moderna, utilata, functionala Parter - 116 mp Restaurant si Magazin Mezanin - 155,8 mp (2 spatii de birou) Etaj 1 - 155,8 mp (2 spatii de birou) Etaj 2 - 140 mp (apartament cu 2 si 3 camere) Etaj 3 - 140 mp (apartament cu 2 si 3 camere) Etaj 4 - 140 mp (apartament cu 2 si 3 camere) Etaj 5 - 159,5 mp Penthouse 179 mp terasa, piscina Dotari & confort premium:
 • Se vinde complet mobilata si utilata (apartamentele si spatiile sunt inchiriate)
 • Electrocasnice noi aflate inca in garantie
 • Centrale electrice proprii in fiecare apartament • Aer conditionat in toate apartamentele Date principale: •Regim de înălțime: S+P+M+4E+5E retras •Suprafață construită totală: 1710 mp • Teren: 332 mp • Amprenta la sol 132 mp • Terase: 179 mp • 1 ascensor • Locatie centrala premium, ideala pentru turism, business, leisure.
Citește mai mult Citește mai puțin

Detalii spațiu comercial

ID anunț: 1842087 Actualizat în: 04 Aprilie 2026
Suprafață utilă totală: 1.307 mp
An construcție: 2024
Etaj: Etaj 5

Istoric preț

Puncte de interes

Mijloace transport
transport
Statia Bd. Decebal / Dristorului linia N104, 104,70, 79, 92
Mijloace transport aprox. 238 m
transport
Delea Veche
Mijloace transport aprox. 275 m
transport
Statia Calea Calarasilor / Delea Veche; Linia:N109, 70, 79, 92
Mijloace transport aprox. 276 m
transport
Statia Calea Calarasilor / Delea Veche; Linia: 40, 56
Mijloace transport aprox. 282 m
Școală
education
Scoala cu clasele I-VIII, Nr. 70
Învățământ aprox. 432 m
education
Scoala nr. 70
Învățământ aprox. 439 m
education
Gradinita Era
Învățământ aprox. 511 m
education
Gradinita catolica "Sfanta Cruce"
Învățământ aprox. 576 m
Recreere
parks
Parc
Recreere aprox. 97 m
restaurants
Restaurantul Babilon
Restaurante aprox. 158 m
shopping
Mega Image
Supermarket/Mall aprox. 159 m
shopping
Succes Non-Stop
Supermarket/Mall aprox. 165 m

Proprietăți similare

Spațiu comercial, de 6,000 mp, în Basarabia
5.500.000 €
București, Basarabia
6.000 mp utili
Birou, de 3,560 mp, în Unirii
6.500.000 €
București, Unirii
3.560 mp utili
450 mp teren
9E
Spațiu comercial, de 3,022 mp, în Unirii
5.550.000 €
București, Unirii
3.022 mp utili
7E
Hotel/Pensiune, de 1,845 mp, în P-ța Unirii
5.400.000 €
București, P-ța Unirii
1.845 mp utili
2004
Proprietate specială, de 5,500 mp, în P-ța Victoriei
5.900.000 €
București, P-ța Victoriei
5.500 mp utili
Hotel/Pensiune, de 4,800 mp, în Rosetti
6.500.000 €
București, Rosetti
4.800 mp utili
2012
Birou, de 4,600 mp, în Cotroceni
6.000.000 €
București, Cotroceni
4.600 mp utili
2009
Hotel/Pensiune, de 2,147 mp, în P-ța Victoriei
6.500.000 €
București, P-ța Victoriei
2.147 mp utili
636 mp teren
4E
Hotel/Pensiune, de 3,000 mp, în Armeneasca
6.490.000 €
București, Armeneasca
3.000 mp utili
2010

Abonează-te la newsletter să fii primul care primește cele mai noi recomandări de proprietăți și sfaturi de la experți.