Apartament cu 3 camere de tip Penthouse/ Duplex, Metrou Berceni

164.900 € + TVA

Berceni, Bucureşti

Nr. camere:
3
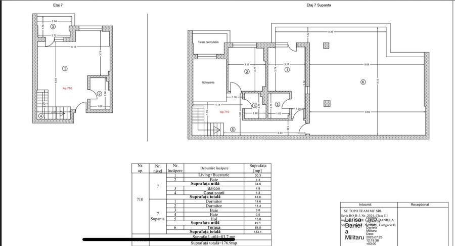
Suprafață utilă:
177 mp
Etaj:
8 / 8
An construcție:
2025
Nr. niveluri:
8

Descriere apartament

Va ofer spre vanzare un apartament cu 3 camere de tip Duplex cu vedere panoramica, amplasat la 7 minute de mers pe jos de statie de metrou Berceni. Apartamentul dispune de: COMISION 0 - terasa proprie in suprafata de 85 mp -suprafata utila 84 mp -incalzire in pardoseala, centrala proprie -finisaje premium la alegere - compartimentare eficienta -toata utilitatile (apa, canalizare, gaz, energie electrica) - Aer conditionat inclus -vedere panoramica De asemenea, in zona regasiti o varietate de centre comerciale, unitati de invatamant, atat scoli cat si gradinite, sali fitness, mijloace de transport in comun, parcuri, etc. Imaginile prezentate au caracter informativ. Pentru mai multe detalii si vizionari ma puteti contacta telefonic/WhatsApp, !
Citește mai mult Citește mai puțin
Confort 1 Decomandat Piscină Aer condiționat Centrală proprie Bine întreținut (Bună)

Detalii apartament

ID anunț: 411324 Actualizat în: 13 Aprilie 2026
Nr. camere: 3
Suprafață utilă: 177 mp
Suprafață utilă totală: 177 mp
Compartimentare: Decomandat
Confort: 1
Etaj: Etaj 8 / 8
Nr. băi: 3
An construcție: 2025
Regim înălțime: P+8E

Istoric preț

Facilități

Pereți
Faianță Vopsea lavabilă Vinarom
Podele
Gresie Parchet
Ușă intrare
Parchet Metal PVC
Uși interior
Celulare PVC
Stare interior
Stare bună
Izolații termice
Exterior
Ferestre cu geam termopan
PVC
Contorizare
Contor gaz Apometre
Alte spații utile
Terasă WC Serviciu
Facilități imobil
Piscină exterioară Lift Interfon Acoperiș Videointerfon
Utilități
Curent Apă Canalizare Cablu Supraveghere video
Sistem încălzire
Centrală proprie
Internet
Cablu Fibră optică Wireless
Climatizare
Aer condiționat
Amenajare străzi
Asfaltate Iluminat stradal Mijloace de transport în comun
Servicii imobil
Administrare Supraveghere video

Puncte de interes

Mijloace transport
transport
Statia IMGB Poarta 2, linia 125, metrou M2
Mijloace transport aprox. 33 m
transport
Berceni (M2)
Mijloace transport aprox. 87 m
transport
Statia IMGB Poarta 1 linia 125
Mijloace transport aprox. 704 m
transport
Statia IMGB Vulcan Berceni, linia 125, 141, 220
Mijloace transport aprox. 710 m
Școală
education
Colegiul Tehnic Miron Nicolescu
Învățământ aprox. 1199 m
Recreere
shopping
WOW Market
Supermarket/Mall aprox. 442 m
shopping
Nonni
Supermarket/Mall aprox. 445 m
parks
Parc
Recreere aprox. 548 m
restaurants
Pizza Italia
Restaurante aprox. 864 m

Proprietăți similare

Penthouse cu 3 camere decomandat în Berceni
179.700 € + TVA
București, Berceni
3 camere
102 mp
Etaj 7 / 7
Penthouse cu 4 camere decomandat, mobilat în Berceni
170.000 € + TVA
București, Berceni
4 camere
91 mp
Etaj 7 / 7
Penthouse cu 3 camere decomandat în Parcul Carol
169.280 € + TVA
București, Parcul Carol
3 camere
80 mp
Etaj 2 / 12
Penthouse cu 2 camere semidecomandat în Pipera
165.000 €
București, Pipera
2 camere
40 mp
Etaj 3 / 3
Penthouse cu 2 camere decomandat în Bucur Obor
170.000 € + TVA
București, Bucur Obor
2 camere
60 mp
Etaj 10 / 11
Penthouse cu 4 camere decomandat, mobilat în Dristor
164.900 €
București, Dristor
4 camere
150 mp
Etaj 4
Penthouse cu 3 camere decomandat în Prelungirea Ghencea
160.600 €
București, Prelungirea Ghencea
3 camere
123,4 mp
Etaj 5

Abonează-te la newsletter să fii primul care primește cele mai noi recomandări de proprietăți și sfaturi de la experți.