Penthouse în ONE Herastrau Towers

1.999.000 € + TVA

Herăstrău, Bucureşti

Nr. camere:
5
Suprafață utilă:
274,89 mp
Etaj:
11 / 12
An construcție:
2021
Nr. niveluri:
12

Descriere apartament

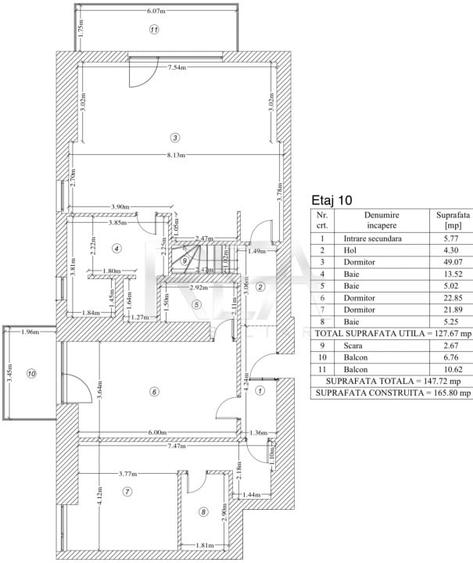
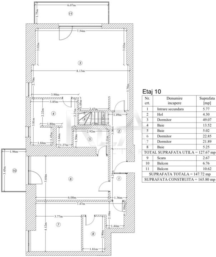
R.E.A. Imobiliare vă propune spre achiziție un penthouse exclusivist, situat în prestigiosul ansamblu rezidențial ONE Herăstrău Towers, un reper al eleganței urbane și al stilului de viață rafinat. Localizare de top: În inima nordului Capitalei, la doar câțiva pași de Parcul Herăstrău și zona de business Pipera–Aviației, cu acces rapid către aeroport, restaurante fine dining, școli internaționale și centre comerciale. Proprietate remarcabilă, desfășurată pe două niveluri (etajele 10 și 11): - Suprafață utilă de 275 mp + trei terase generoase, ajungând la un total de 311 mp - 5 camere spațioase: 3 dormitoare, un living spectaculos si camera de dining sau spațiu multifuncțional - 4 băi moderne, amenajate cu materiale de înaltă calitate - 3 locuri de parcare subterană pentru achizitie. Design de excepție & dotări premium: - Mobilier custom realizat la comandă, electrocasnice de top și finisaje de lux - Tavane înalte și suprafețe vitrate pe întreaga fațadă pentru o lumină naturală maximă și vedere panoramică spectaculoasă asupra orașului și lacului Herăstrău - Terase perfecte pentru relaxare și socializare. Avantaje ale ansamblului ONE Herăstrău Towers: - Clădire certificată Green Homes, cu eficiență energetică ridicată - Servicii de concierge și pază 24/7 - Spații comerciale în incintă (cafenele, restaurante, supermarket) - Arhitectură modernă semnată de birouri de renume - Comunitate exclusivistă, cu acces controlat și intimitate garantată O alegere ideală pentru cei care apreciază luxul autentic, confortul fără compromisuri și o locație de excepție. Contactează R.E.A. Imobiliare pentru detalii suplimentare și programarea unei vizionări private. Proprietăți de acest calibru sunt rare — acest penthouse este un veritabil statement de stil și eleganță urbană. Cod proprietate P7664
Citește mai mult Citește mai puțin
Decomandat Lux Curte comună Ventiloconvectoare Centrală imobil Bine întreținut (Bună)

Detalii apartament

ID anunț: 48246 Actualizat în: 31 Martie 2026
Nr. camere: 5
Suprafață utilă: 274,89 mp
Suprafață utilă totală: 274,89 mp
Compartimentare: Decomandat
Etaj: Etaj 11 / 12
Nr. băi: 4
An construcție: 2021
Regim înălțime: P+12E

Istoric preț

Facilități

Pereți
Vopsea lavabilă Faianță
Podele
Parchet Gresie
Ușă intrare
Parchet Metal Lemn
Uși interior
Lemn
Stare interior
Stare bună
Izolații termice
Exterior Interior Bloc izolat termic
Ferestre cu geam termopan
Lemn Aluminiu
Contorizare
Apometre Contor căldură Contor gaz
Bucătărie
Mobilată Utilată
Mobilat
Lux
Electrocasnice
Mașină de spălat Frigider Aragaz Mașină spălat vase TV Cuptor microunde Hotă
Diverse
Telecomandă poartă acces auto
Alte spații utile
Terasă WC Serviciu
Facilități imobil
Videointerfon Lift Spații agrement Curte comună
Utilități
Curent Apă Canalizare Gaze Mașină de spălat rufe Frigider Aragaz / Plită Mașină de spălat vase TV Cuptor cu microunde Supraveghere video
Sistem încălzire
Centrală imobil
Internet
Fibră optică
Climatizare
Ventiloconvectoare
Amenajare străzi
Asfaltate Iluminat stradal Mijloace de transport în comun
Servicii imobil
Supraveghere video

Puncte de interes

Mijloace transport
transport
Pasaj Baneasa statie 605, 5
Mijloace transport aprox. 122 m
transport
Carutasilor / Pasajul Aviatiei statie 301, 112
Mijloace transport aprox. 243 m
transport
Maguricea
Mijloace transport aprox. 340 m
transport
Maguricea
Mijloace transport aprox. 342 m
Școală
education
Grădiniţa Mary Poppins
Învățământ aprox. 392 m
education
Scoala primara si gimnaziala MEA
Învățământ aprox. 437 m
education
Gradinita Miniterra
Învățământ aprox. 499 m
education
Grădiniţa Pentru Hipoacuzici NR. 65
Învățământ aprox. 684 m
Recreere
parks
Parc
Recreere aprox. 75 m
shopping
Mega Image
Supermarket/Mall aprox. 152 m
shopping
Lidl
Supermarket/Mall aprox. 243 m
restaurants
Le Club
Restaurante aprox. 431 m

Proprietăți similare

Penthouse cu 5 camere decomandat în Herăstrău
2.000.000 € + TVA
București, Herăstrău
5 camere
283,63 mp
Etaj 9 / 11
Penthouse cu 4 camere semidecomandat în Herăstrău
1.800.000 € + TVA
București, Herăstrău
4 camere
210 mp
Etaj 10
Penthouse cu 4 camere decomandat în Herăstrău
1.999.990 € + TVA
București, Herăstrău
4 camere
301,21 mp
Etaj 11 / 12
Penthouse cu 6 camere decomandat, mobilat în Herăstrău
1.980.000 € + TVA
București, Herăstrău
6 camere
411 mp
Etaj 10
Penthouse cu 4 camere decomandat, mobilat în Floreasca
2.000.000 €
București, Floreasca
4 camere
236 mp
Etaj 6 / 6
Penthouse cu 4 camere decomandat, mobilat în Floreasca
1.900.000 €
București, Floreasca
4 camere
255 mp
Etaj 7 / 7
Penthouse cu 5 camere decomandat în Floreasca
2.000.000 €
București, Floreasca
5 camere
259 mp
Etaj 9 / 10

Abonează-te la newsletter să fii primul care primește cele mai noi recomandări de proprietăți și sfaturi de la experți.