Oferta duplex de lux cu 3 camere Aviatiei - Pod Baneasa

399.000 € + TVA

Aviaţiei, Bucureşti

Nr. camere:
3
Suprafață utilă:
91 mp
Etaj:
7 / 7
An construcție:
2023
Nr. niveluri:
7

Descriere apartament

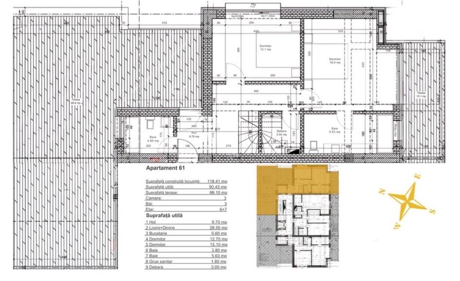
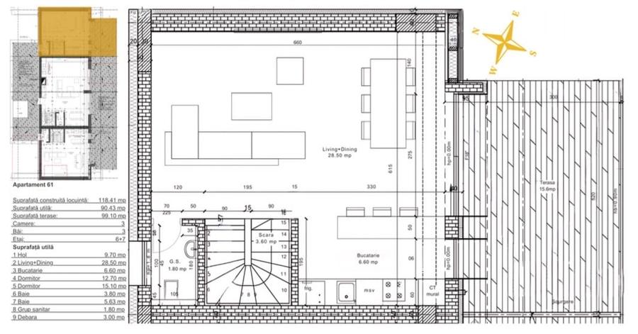
Daca esti in cautarea unei locuinte premium in zona de Nord a Bucurestiului, atunci te invitam sa vezi noul proiect cu apartamente finisate cu materiale de ultima generatie! Proiectul va ofera diferite tipuri de apartamente cu 2, 3 si 4 camere, toate beneficiind de suprafete interioare mari si terase generoase! Finisajele la exterior: tamplarie aluminium Schuco, fatada ventilata cu placi HPL si caramida aparenta tip Klinker, termoizolatie din vata minerala bazaltica (Rockwoll) Finisajele la interior: usi de tip Filomuro, sistem de incalzire prin pardoseala marca TECE, control smartphone, sistem de aerisire cu recuperare de caldura NovingAIR, pardoseala placata cu parchet triplu stratificat in living/dormitor/hol, baile placate cu placi ceramice de la Delta Studio, centrala termica Viessman Vitodens 24KW, aparataje electrice - marca Schneider, aparate aer conditionat marca Daikin in fiecare camera, baile echipate cu baterii si obiecte sanitare marca ROCA, terase placate cu pardoseala flotanta. Acest duplex cu 3 camere este situat la etajele 6 si 7 si are o suprafata utila 90,43 mp si 3 terase cu suprafete de 10,10 mp, 15,60 mp si respectiv 66,80 mp. Compartimentarea interioara este gandita, astfel incat, sa ofere fiecarui spatiu utilitate si confort. Superbul duplex este impartit astfel: la etajul 6 regasim zona de dormitoare unde avem un dormitor matrimonial cu baie proprie, un dormitor secundar, o baie, o debara, hol si doua terase, iar la etajul 7 regasim zona de living cu bucatarie deschisa (cu posibilitate de inchidere), zona de dining si acces la o terasa. In pretul acestui superb duplex aveti inclus un loc de parcare in subteran! Locurile de parcare se pot achizitiona separat, fiind disponibile la subsol -1 si -2. Pentru mai multe informatii si vizionari, nu ezitati sa ne contactati!
Citește mai mult Citește mai puțin
Aer condiționat Centrală proprie

Detalii apartament

ID anunț: 128264 Actualizat în: 14 Ianuarie 2026
Nr. camere: 3
Suprafață utilă: 91 mp
Suprafață utilă totală: 91 mp
Etaj: Etaj 7 / 7
Nr. băi: 3
An construcție: 2023
Regim înălțime: P+7E

Istoric preț

Facilități

Pereți
Faianță Vopsea lavabilă
Podele
Gresie Parchet
Rulouri/Obloane
Aluminiu
Ușă intrare
Parchet Metal
Uși interior
Celulare
Izolații termice
Exterior
Ferestre cu geam termopan
Aluminiu
Contorizare
Contor gaz Apometre
Dotări
Lift
Diverse
Telecomandă poartă acces auto
Alte spații utile
Terasă WC Serviciu
Facilități imobil
Lift Videointerfon
Utilități
Curent Apă Canalizare Supraveghere video
Sistem încălzire
Centrală proprie
Internet
Fibră optică
Climatizare
Aer condiționat
Amenajare străzi
Asfaltate Iluminat stradal Mijloace de transport în comun
Servicii imobil
Supraveghere video
Facilități
Terasă Lift Garaj Balcon

Puncte de interes

Mijloace transport
transport
Pasaj Baneasa statie 605, 5
Mijloace transport aprox. 298 m
transport
Maguricea
Mijloace transport aprox. 386 m
transport
Maguricea
Mijloace transport aprox. 408 m
transport
Maguricea statie 605, 5
Mijloace transport aprox. 445 m
Școală
education
Scoala primara si gimnaziala MEA
Învățământ aprox. 279 m
education
Grup Scolar Industrial Henri Coanda
Învățământ aprox. 601 m
education
Grupul Şcolar de Aeronautică "Henri Coandă".
Învățământ aprox. 678 m
education
Gradinita Miniterra
Învățământ aprox. 678 m
Recreere
shopping
Lidl
Supermarket/Mall aprox. 167 m
shopping
Mega Image
Supermarket/Mall aprox. 265 m
parks
Parc
Recreere aprox. 340 m
restaurants
Simbi's
Restaurante aprox. 699 m

Proprietăți similare

Penthouse cu 4 camere decomandat în Băneasa
425.000 €
București, Băneasa
4 camere
170 mp
Parter / 4
Penthouse cu 3 camere decomandat în Sisești
387.848 € + TVA
București, Sisești
3 camere
105 mp
Etaj 3 / 4
Penthouse cu 4 camere în Pipera
399.900 € + TVA
București, Pipera
4 camere
376,6 mp
Etaj 5 / 5
Penthouse cu 4 camere decomandat, mobilat în Dămăroaia
385.000 €
București, Dămăroaia
4 camere
133,53 mp
Etaj 5
Penthouse cu 3 camere decomandat, mobilat în Pipera
390.000 €
București, Pipera
3 camere
212 mp
Etaj 4 / 4
Penthouse cu 3 camere decomandat în Pipera
399.999 € + TVA
București, Pipera
3 camere
119 mp
Etaj 7 / 7
Penthouse cu 3 camere decomandat în Banu Manta
370.000 €
București, Banu Manta
3 camere
96 mp
Etaj 8 / 8
Penthouse cu 4 camere decomandat, mobilat în Pipera
410.000 €
București, Pipera
4 camere
188 mp
Etaj 9 / 9
Penthouse cu 4 camere decomandat în Pipera
391.400 € + TVA
București, Pipera
4 camere
206 mp
Etaj 3 / 4

Abonează-te la newsletter să fii primul care primește cele mai noi recomandări de proprietăți și sfaturi de la experți.