Penthouse semifinisat pe doua niveluri, 200mp, zona Calea Floresti

620.000 €

Mănăştur, Cluj-Napoca

Nr. camere:
5
Suprafață utilă:
200,59 mp
Etaj:
2 / 25
An construcție:
2023
Nr. niveluri:
25

Descriere apartament

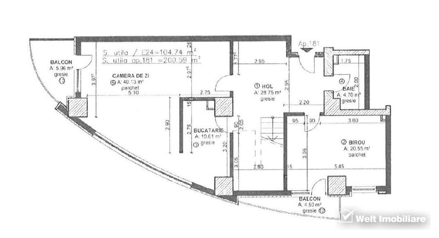
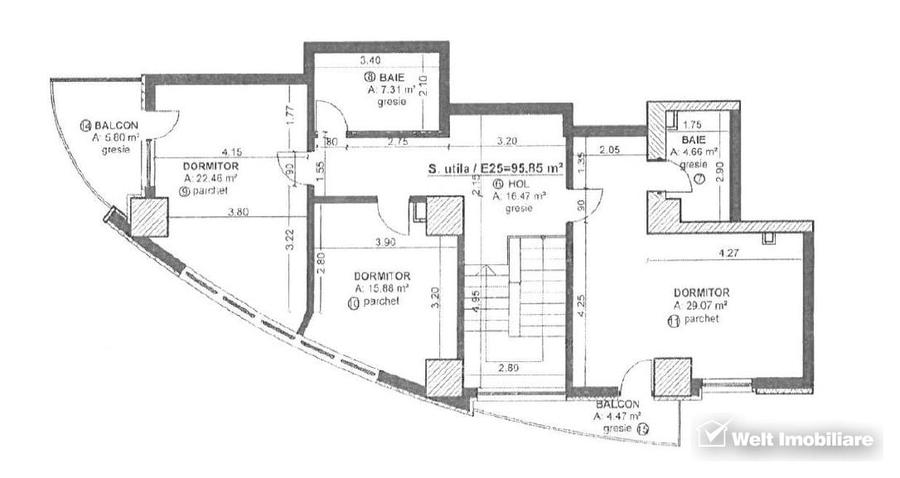
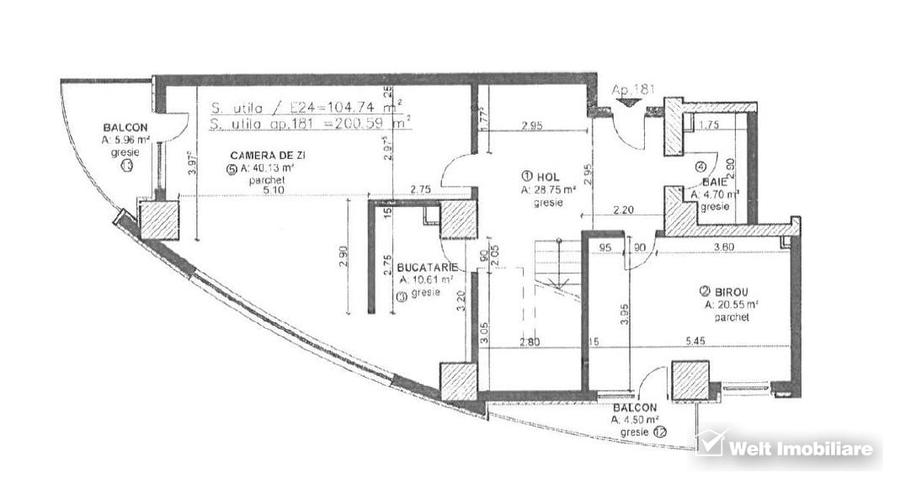
Welt Imobiliare va prezinta spre vanzare un penthouse semifinisat in cartierul Manastur, zona Calea Floresti. Imobilul este cu scara interioara la etajul 24, respectiv etajul 25, al unui imobil nou, dispus pe 25 etaje, avand o suprafata utila de 201 m² + 4 balcoane de 20m². Compartimentarea a fost gandita astfel: * Primul nivel - 1 living tip open space cu bucatarie si iesire la balcon - 1 dormitor cu iesire la balcon - 1 baie - hol * Al doilea nivel - 3 dormitoare cu iesire la balcon - 2 bai - 2 balcone - hol Apartamentul este bineintretinut cu supraveghere video, lift si se vinde la stadiul semifinisat. Exista posibilitatea achizitionarii unui loc de parcare subteran. Contactati-ne pentru informatii suplimentare sau pentru a stabili o vizionare!
Citește mai mult Citește mai puțin
Semidecomandat Nemobilat Bine întreținut (Bună)

Detalii apartament

ID anunț: 3838531 Actualizat în: 03 Aprilie 2026
Nr. camere: 5
Suprafață utilă: 200,59 mp
Suprafață utilă totală: 200,59 mp
Compartimentare: Semidecomandat
Etaj: Etaj 2 / 25
Nr. băi: 3
An construcție: 2023
Regim înălțime: P+25E

Istoric preț

Facilități

Utilități
Curent Canalizare Gaze
Bucătărie
Utilată
Mobilat
Nemobilat
Facilități imobil
Interfon Videointerfon Lift
Ușă intrare
PVC Metal
Stare interior
Stare bună
Ferestre cu geam termopan
PVC
Amenajare străzi
Asfaltate Iluminat stradal Mijloace de transport în comun

Puncte de interes

Mijloace transport
transport
Nodul N Nord
Mijloace transport aprox. 104 m
transport
Nod Omega
Mijloace transport aprox. 228 m
transport
Cora
Mijloace transport aprox. 468 m
transport
Statia Magazin CORA, Linia CORA
Mijloace transport aprox. 481 m
Școală
education
Gradinita Dumbrava Minunata
Învățământ aprox. 528 m
education
Şcoala Generală Nr. 29 / "Octavian Goga"
Învățământ aprox. 834 m
education
Scoala Octavian Goga
Învățământ aprox. 855 m
education
Grăd.Dumbrava minunată
Învățământ aprox. 885 m
Recreere
shopping
Cora
Supermarket/Mall aprox. 295 m
shopping
Praktiker
Supermarket/Mall aprox. 327 m
parks
Parc
Recreere aprox. 338 m
restaurants
Marty Restaurants
Restaurante aprox. 597 m

Proprietăți similare

Penthouse cu 4 camere semidecomandat în Mănăștur
620.000 €
Cluj-Napoca, Mănăștur
4 camere
215 mp
2022
Penthouse cu 5 camere decomandat în Mănăștur
620.000 €
Cluj-Napoca, Mănăștur
5 camere
215 mp
2025
Penthouse cu 5 camere decomandat în Mănăștur
620.000 €
Cluj-Napoca, Mănăștur
5 camere
200,59 mp
2023
Penthouse cu 5 camere semidecomandat în Mănăștur
600.000 €
Cluj-Napoca, Mănăștur
5 camere
210 mp
2022
Penthouse cu 5 camere decomandat în Mănăștur
620.000 €
Cluj-Napoca, Mănăștur
5 camere
200 mp
2021
Penthouse cu 5 camere semidecomandat, mobilat în Bună Ziua
680.000 €
Cluj-Napoca, Bună Ziua
5 camere
206 mp
Etaj 6 / 6
Penthouse cu 3 camere semidecomandat, mobilat în Gheorgheni
569.000 €
Cluj-Napoca, Gheorgheni
3 camere
160 mp
Etaj 4
Penthouse cu 6 camere semidecomandat, mobilat în Bună Ziua
680.000 €
Cluj-Napoca, Bună Ziua
6 camere
210 mp
Etaj 6 / 6

Abonează-te la newsletter să fii primul care primește cele mai noi recomandări de proprietăți și sfaturi de la experți.