Penthouse de exceptie cu terasa panoramica de 104 m2 in Sopor !

€ 275.000 + TVA

Gheorgheni, Cluj-Napoca

Nr. camere:
3
Suprafață utilă:
76,3 mp
Etaj:
8 / 8
An construcție:
2023
Nr. niveluri:
8

Descriere

Raportează anunț

Penthouse de exceptie cu terasa panoramica de 104 m2 in Sopor !

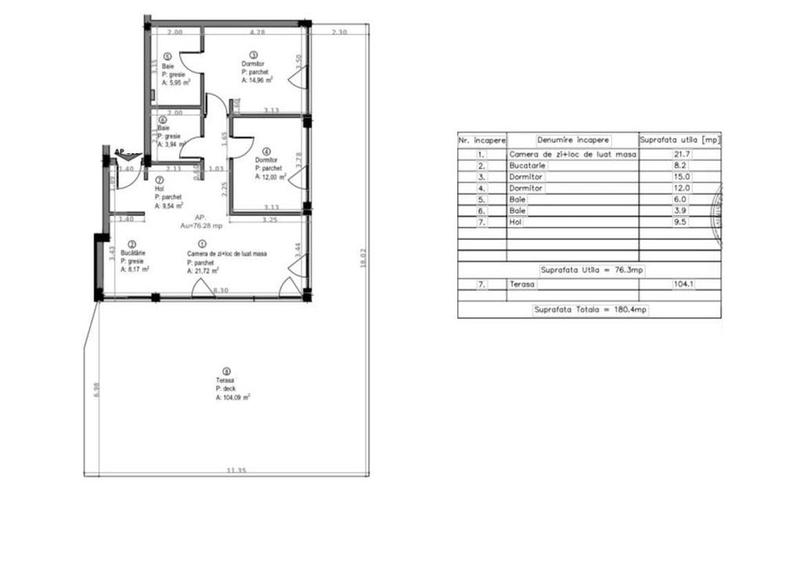
Descopera un penthouse spectaculos situat in zona Soporului, la cativa pasi de Iulius Mall, Baza Sportiva Gheorgheni, Parcul Detunata si multiple magazine si centre comerciale. Pozitionat la etaj retras, acest apartament iese in evidenta prin suprafetele vitrate mari care inunda fiecare incapere cu lumina naturala si creeaza o atmosfera de spatiu si deschidere. Suprafata utila de 76.3 mp este inteligent compartimentata. Zona de zi cuprinde un living si o bucatarie open space ce cumuleaza aproape 30 mp, cu acces direct pe terasa impresionanta de 104 m2 mp. Terasa inconjoara intreg apartamentul si ofera o priveliste larga si un spatiu excelent pentru relaxare, socializare sau amenajarea unei gradini suspendate. Zona de noapte este bine definita, oferind intimitate si confort. Apartamentul dispune de doua dormitoare, dintre care unul beneficiaza de baie proprie , configurand astfel un dormitor matrimonial complet. Cel de-al doilea dormitor are suprafata ampla si acces facil la cea de-a doua baie. In plus, apartamentul dispune de un hol spatios care asigura o circulatie fluida si echilibrata. Se preda la stadiul semifinisat, cu incalzire in pardoseala, oferind libertatea de a fi personaliza dupa preferinte. Zona este una in plina dezvoltare, cu acces rapid la mijloace de transport, parcuri, centre comerciale, restaurante si toate facilitatile urbane de care ai nevoie pentru un stil de viata activ si modern. -Pretul acestui penthouse este de 275.000 euro. -Vanzarea se face de pe persoana juridica, iar la pret se adauga TVA, cu posibilitatea aplicarii mecanismului de taxare inversa - Optional, se poate achizitiona parcare subterana la 15.000 euro + TVA.
Citește mai mult Citește mai puțin
ID anunț: 1005718 Actualizat în: 08 Ianuarie 2026
Nr. camere: 3
Suprafață utilă: 76,3 mp
Suprafață utilă totală: 76,3 mp
Compartimentare: Semidecomandat
Etaj: Etaj 8 / 8
Nr. băi: 2
An construcție: 2023
Regim înălțime: P+8E

Istoric preț

Utilități

Utilități
Apă Canalizare Curent Gaze Supraveghere video
Facilități
Lift

Proprietăți similare

Penthouse cu 3 camere semidecomandat, mobilat în Grigorescu
€ 250.000
Cluj-Napoca, Grigorescu
3 camere
77 mp
Etaj 2 / 2
Penthouse cu 3 camere semidecomandat în Bună Ziua
€ 275.000
Cluj-Napoca, Bună Ziua
3 camere
125 mp
Etaj 3 / 3
Penthouse cu 3 camere semidecomandat, mobilat în Bună Ziua
€ 270.000
Cluj-Napoca, Bună Ziua
3 camere
125 mp
Etaj 2 / 3
Penthouse cu 3 camere semidecomandat în Semicentral
€ 264.355 + TVA
Cluj-Napoca, Semicentral
3 camere
76 mp
Etaj 2 / 6
Penthouse cu 3 camere semidecomandat în Bună Ziua
€ 300.000 + TVA
Cluj-Napoca, Bună Ziua
3 camere
82 mp
Etaj 8
Penthouse cu 4 camere semidecomandat în Iris
€ 284.900
Cluj-Napoca, Iris
4 camere
98 mp
Etaj 2 / 3
Penthouse cu 4 camere semidecomandat, mobilat în Grigorescu
€ 260.000 + TVA
Cluj-Napoca, Grigorescu
4 camere
140 mp
Etaj 9 / 10
Penthouse cu 3 camere în Florești
€ 279.300
Județul Cluj, Florești
3 camere
99 mp
Etaj 5
Penthouse cu 3 camere, mobilat în Florești
€ 296.500
Județul Cluj, Florești
3 camere
108 mp
Etaj 4

Abonează-te la newsletter să fii primul care primește cele mai noi recomandări de proprietăți și sfaturi de la experți.