
3 luni în urmă
DEZVOLTATOR Studio in Centrul Orasului
146.000 €
+ TVA
Matei Voievod, București
Descriere
Raportează anunț
Sesizează o problemă
DEZVOLTATOR Studio in Centrul Orasului
DEZVOLTATOR Studio in Centrul Orasului
R.E.A. Imobiliare ofera spre achizitie
Studio, decomandat, cu spatii vitrate, la etajul 2/3, in TEPES VODA 152- Termen de finalizare Decembrie 2025.
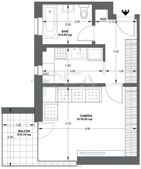
Suprafata totala de 39,30 mp: 34,20 mp utili+ 5,10 mp balcon.
Configuratie: camera, bucatarie, hol, baie si balcon.
Parcare subterana disponibila la 25.000 EUR+TVA.
Acces la transport public: 3 minute pana la statiile STB, 8 minute pana la metrou Piata Iancului sau metrou Piata Muncii.
Pentru detalii si vizionari, contactati-ne specificand codul de identificare P5009.
- TEPES VODA 152 este un proiect exclusivist de tip boutique, amplasat central. Format din 2 corpuri si doar 41 de apartamente, acest ansamblu este gandit pentru cei care apreciaza intimitatea si calitatea. Cladirea are trei etaje si dispune de o fatada ventilata partial, combinand un design contemporan cu o eficienta energetica ridicata.
- Apartamentele se predau la cheie, cu finisaje premium, la alegere. Colaboram cu renumitul Delta Studio pentru gresie si faianta, iar parchetul, perfect compatibil cu incalzirea in pardoseala, iti va oferi un confort desavarsit. Fiecare apartament este echipat cu centrala proprie si sistem de incalzire in pardoseala, pentru un control optim al temperaturii si al costurilor.
- Dezvoltatorul are o experienta de peste 20 de ani in domeniu, fiind recunoscut pentru calitatea constructiilor sale. TEPES VODA 152 este un imobil de lux, unde calitatea constructiei si finisajele de inalta clasa sunt standard.
Citește mai mult
Citește mai puțin
ID anunț: 1105177
Actualizat în: 10 Octombrie 2025
Nr. camere:
1
Suprafață utilă:
34,2 mp
Suprafață utilă totală:
34,2 mp
Suprafață construită:
34,2 mp
Compartimentare:
Decomandat
Etaj:
Etaj 2 / 3
Nr. băi:
1
An construcție:
2025
Regim înălțime:
P+3E
Istoric preț
Utilități
Utilități
Apă
Gaze
Climă
Canalizare
Facilități
Terasă
Lift
Balcon
Proprietăți similare
Abonează-te la newsletter să fii primul care primește cele mai noi recomandări de proprietăți și sfaturi de la experți.
Căutări similare
- Garsoniere de vânzare în Matei Voievod
- Garsoniere de vânzare în Ultracentral
- Garsoniere de vânzare în Central
- Garsoniere de vânzare în Universitate
- Garsoniere de vânzare în Cișmigiu
- Garsoniere de vânzare în P-ța Victoriei
- Garsoniere de vânzare în Ultracentral
- Garsoniere de vânzare în P-ța Romană
- Garsoniere de vânzare în P-ța Universității
- Garsoniere de vânzare în Romană
- Garsoniere de vânzare în Victoriei
- Garsoniere de vânzare în Calea Victoriei