Apartament 1 camera de vanzare, curte comuna, zona Traian, Timisoara

70.000 €

Traian, Timişoara

Nr. camere:
1
Suprafață utilă:
28 mp
Etaj:
Parter / 1
An construcție:
1980
Nr. niveluri:
1

Descriere apartament

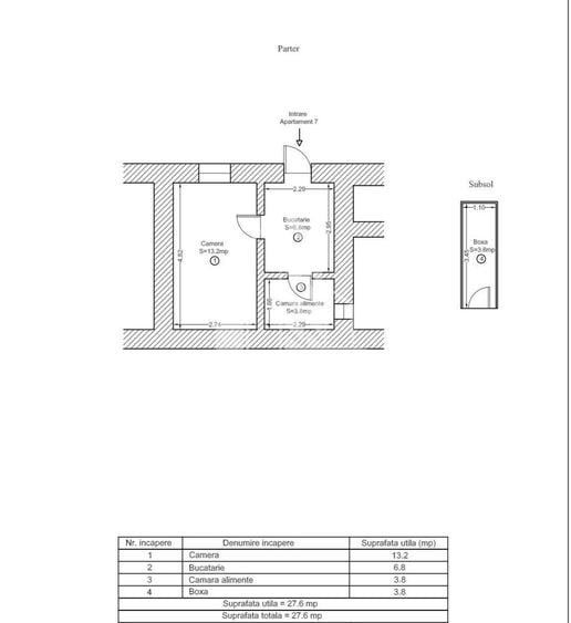
Agentia imobiliara APOSTU ESTATE va propune spre vanzare un apartament cu 1 camera, renovat, situat la parterul unei curti comune, situat in zona Traian/Fabric din Timisoara, judetul Timis. Apartamentul este amplasat la parterul unui imobil construit intre 1977-1990 si are o suprafata utila de 27,6 mp ,de asemenea detine o boxa pentru depozitare de 3,8mp. Confortul termic se realizeaza prin intermediul centralei proprii pe gaz cu sistem de incalzire prin calorifere. Apartamentul este compartimentat astfel: -bucatarie inchisa -dormitor -baie cu cada si geam de aerisire Proprietatea se vinde cum se vede in poze si este o varianta ideala pentru familii, cuplu sau investitie. Vecinatati: Piata Traian la 2 min de mers pe jos , mijloace de transport in comun,magazine,banci,farmacii la 3 min de mers pe jos, Iulius Mall la 11 min cu masina, Piata Unirii la 11 min cu masina, Fabrica de Bere la 5 min de mers pe jos, Facultatea de Medicina la 17 min de mers pe jos, Complexul Studentesc la 15 min de mers pe jos. Agentia imobiliara Apostu Estate va ofera consultanta bancara gratuita prin intermediul colaboratorilor nostri pentru alegerea celui mai potrivit tip de credit, astfel incat tu sa devi noul proprietar al acestui apartament. Va asteptam cu drag la o vizionare! Id Intern: CP2979729
Citește mai mult Citește mai puțin
Confort 1 Decomandat Mobilat Curte comună Calorifere Centrală proprie Renovat

Detalii apartament

ID anunț: 3884016 Actualizat în: 03 Aprilie 2026
Nr. camere: 1
Suprafață utilă: 28 mp
Suprafață utilă totală: 28 mp
Compartimentare: Decomandat
Confort: 1
Etaj: Parter / 1
Nr. băi: 1
An construcție: 1980
Regim înălțime: P+1E

Istoric preț

Facilități

Pereți
Faianță Vopsea lavabilă
Podele
Gresie Parchet
Ușă intrare
Parchet PVC Lemn
Uși interior
PVC Lemn
Stare interior
Renovat
Contorizare
Apometre Contor căldură Contor gaz
Bucătărie
Mobilată Utilată
Mobilat
Mobilat
Electrocasnice
Aragaz Frigider Hotă Mașină de spălat
Facilități imobil
Acoperiș Curte comună Interfon
Utilități
Curent Apă Canalizare Gaze Aragaz / Plită Frigider Mașină de spălat rufe
Sistem încălzire
Calorifere Centrală proprie
Amenajare străzi
Iluminat stradal Mijloace de transport în comun Asfaltate Betonate

Puncte de interes

Mijloace transport
transport
Statie Iepurelui E8, A21
Mijloace transport aprox. 161 m
transport
Iepurelui
Mijloace transport aprox. 171 m
transport
Iepurelui
Mijloace transport aprox. 172 m
transport
Baba Dochia
Mijloace transport aprox. 209 m
Școală
education
Gradinita Program Normal Nr. 5
Învățământ aprox. 66 m
education
ŞCOALA GIMNAZIALĂ NR.1
Învățământ aprox. 230 m
education
Scoala Gimnaziala nr. 1
Învățământ aprox. 239 m
education
Liceul Teoretic William Shakespeare
Învățământ aprox. 363 m
Recreere
restaurants
Pizzeria Mamma Mia
Restaurante aprox. 52 m
parks
Parc
Recreere aprox. 129 m
shopping
Profi
Supermarket/Mall aprox. 301 m
shopping
Profi
Supermarket/Mall aprox. 464 m

Proprietăți similare

Garsonieră decomandată în Traian
70.000 €
Timișoara, Traian
1 camere
28 mp
Parter / 1
Garsonieră în Traian
70.000 €
Timișoara, Traian
1 camere
1977
Garsonieră decomandată, mobilată în Traian
65.000 €
Timișoara, Traian
1 camere
50 mp
Demisol / 1
Garsonieră decomandată în Steaua
69.000 €
Timișoara, Steaua
1 camere
34 mp
Etaj 1 / 4
Garsonieră decomandată, mobilată în Complex Studențesc
65.000 €
Timișoara, Complex Studențesc
1 camere
25 mp
Etaj 3
Garsonieră decomandată, mobilată în Iosefin
75.000 €
Timișoara, Iosefin
1 camere
31 mp
Demisol / 2
Garsonieră semidecomandată, mobilată în Lipovei
69.990 €
Timișoara, Lipovei
1 camere
36 mp
1980
Garsonieră decomandată în Aradului
76.000 €
Timișoara, Aradului
1 camere
35 mp
Etaj 1 / 4
Garsonieră în Circumvalațiunii
64.700 €
Timișoara, Circumvalațiunii
1 camere
30 mp
Etaj 1

Abonează-te la newsletter să fii primul care primește cele mai noi recomandări de proprietăți și sfaturi de la experți.