Garsoniera Mansarda | Vila Boutique P+2+M | Apusului | OFERTA LIMITATA

58.680 € + TVA

Apusului, Bucureşti

Nr. camere:
1
Suprafață utilă:
32,6 mp
An construcție:
2026
Nr. niveluri:
3

Descriere apartament

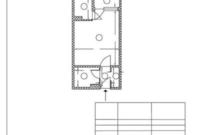
ID - P13335 O investitie inteligenta sau locuinta ideala pentru un stil de viata dinamic. Situata la mansarda, intr-o vila boutique din zona Apusului, aceasta garsoniera iti ofera liniste si acces rapid la tot ce conteaza: Lidl 2 min, Mega 5 min, autobuz 1 min, metrou 10 min. Caracteristici: Suprafata utila 32,60 mp. Compartimentare semidecomandata, ideala pentru a crea zone distincte de zi si de noapte. 1 balcon cu priveliste deschisa spre verdeata. Detalii premium: Ferestre Rehau gri antracit. Constructie solida, la stadiul de rosu avansat. Pret: 1.800 €/mp + TVA (negociabil). Livrare prevazuta pentru 2026, dar cu posibilitate de finalizare mult mai devreme.
Citește mai mult Citește mai puțin
Semidecomandat Centrală proprie

Detalii apartament

ID anunț: 1894502 Actualizat în: 16 Martie 2026
Nr. camere: 1
Suprafață utilă: 32,6 mp
Suprafață utilă totală: 32,6 mp
Compartimentare: Semidecomandat
Nr. băi: 1
An construcție: 2026
Regim înălțime: P+3E

Istoric preț

Facilități

Utilități
Curent Apă Canalizare Gaze
Sistem încălzire
Centrală proprie
Ușă intrare
Metal Lemn PVC
Uși interior
Lemn PVC
Ferestre cu geam termopan
Lemn PVC
Amenajare străzi
Asfaltate Iluminat stradal Mijloace de transport în comun

Puncte de interes

Mijloace transport
transport
Statia Ghirlandei, linia 106
Mijloace transport aprox. 359 m
transport
statia Roşia Montană (106, 178*) (en)
Mijloace transport aprox. 408 m
transport
Statia Rosia Montana, linia 106
Mijloace transport aprox. 417 m
transport
Statia Dezrobirii, linia 178,106
Mijloace transport aprox. 428 m
Școală
education
Cresa Militari
Învățământ aprox. 143 m
education
Scoala Nr. 310 Regele Mihai I
Învățământ aprox. 335 m
education
Scoala generala nr.310
Învățământ aprox. 335 m
education
Scoala Generala Nr. 310
Învățământ aprox. 354 m
Recreere
shopping
magazin universal Profi
Supermarket/Mall aprox. 282 m
shopping
Profi
Supermarket/Mall aprox. 282 m
restaurants
Tenis Club 2000
Restaurante aprox. 326 m
parks
Apusului
Recreere aprox. 566 m

Proprietăți similare

Garsonieră decomandată, mobilată în Apusului
64.500 €
București, Apusului
1 camere
38 mp
Etaj 3
Garsonieră decomandată în Apusului
55.999 €
București, Apusului
1 camere
38 mp
Etaj 2
Garsonieră decomandată în Militari
57.000 €
București, Militari
1 camere
35 mp
Etaj 7 / 7
Garsonieră în Drumul Taberei
62.000 €
București, Drumul Taberei
1 camere
31 mp
Etaj 9 / 10
Garsonieră decomandată în Militari
55.500 €
București, Militari
1 camere
33 mp
6E
Garsonieră semidecomandată în Drumul Taberei
61.000 €
București, Drumul Taberei
1 camere
32 mp
Etaj 3 / 10
Garsonieră decomandată în Drumul Taberei
62.000 €
București, Drumul Taberei
1 camere
33,1 mp
Parter / 4
Garsonieră semidecomandată în Drumul Taberei
54.000 €
București, Drumul Taberei
1 camere
32 mp
Etaj 9
Garsonieră decomandată, mobilată în Militari
54.999 €
București, Militari
1 camere
30 mp
Etaj 2 / 7

Abonează-te la newsletter să fii primul care primește cele mai noi recomandări de proprietăți și sfaturi de la experți.