Parcul Carol - Tineretului vanzare garsoniera

125.519 € + TVA

Tineretului, Bucureşti

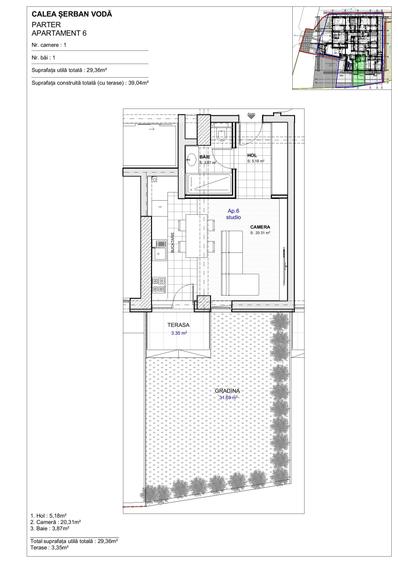
Nr. camere:
1
Suprafață utilă:
40,49 mp
Etaj:
Parter / 4
An construcție:
2026
Nr. niveluri:
4

Descriere apartament

Bonus loc de parcare subteran Descoperiți un proiect rezidențial exclusivist, situat între Parcul Tineretului și Parcul Carol, una dintre cele mai frumoase zone centrale din București. Imobilul, aflat în construcție, îmbină designul modern cu finisaje premium și tehnologii actuale pentru confort și eficiență energetică, incalzire prin pardoseala, tamplarie aluminiu cu geam tripan, izolatie cu vata minerala, centrala termica de imobil. Un proiect rar, care oferă proximitate față de natură și acces rapid la centrul orașului.
Citește mai mult Citește mai puțin
Confort 1 Semidecomandat Nemobilat Centrală imobil Renovat

Detalii apartament

ID anunț: 2716821 Actualizat în: 06 Februarie 2026
Nr. camere: 1
Suprafață utilă: 40,49 mp
Suprafață utilă totală: 40,49 mp
Compartimentare: Semidecomandat
Confort: 1
Etaj: Parter / 4
Nr. băi: 1
An construcție: 2026
Regim înălțime: P+4E

Istoric preț

Facilități

Pereți
Faianță Vopsea lavabilă
Podele
Parchet Gresie
Ușă intrare
Parchet Metal
Uși interior
Celulare
Stare interior
Renovat
Izolații termice
Exterior
Ferestre cu geam termopan
Aluminiu
Contorizare
Apometre Contor căldură Contor gaz
Mobilat
Nemobilat
Dotări imobil
Lift Interfon
Utilități
Gaze Curent Canalizare Apă
Sistem încălzire
Centrală imobil
Acces internet
Fibră optică
Amenajare străzi
Iluminat stradal Mijloace de transport în comun Asfaltate
Servicii imobil
Administrare

Puncte de interes

Mijloace transport
transport
Cutitul de Argint
Mijloace transport aprox. 47 m
transport
Cimitirul Eroii Revolutiei
Mijloace transport aprox. 286 m
transport
Microbuz 572
Mijloace transport aprox. 426 m
transport
Adesgo
Mijloace transport aprox. 426 m
Școală
education
Gradinita Pisicel
Învățământ aprox. 174 m
education
GRĂDINIŢA DE COPII NR. 168
Învățământ aprox. 307 m
education
Gradinita cu orar prelungit nr. 168
Învățământ aprox. 307 m
education
Scoala nr. 114
Învățământ aprox. 533 m
Recreere
shopping
Issa Supermarket Non-Stop
Supermarket/Mall aprox. 61 m
restaurants
El Conquistador
Restaurante aprox. 160 m
parks
Teren sportiv
Recreere aprox. 306 m
shopping
Mega Image
Supermarket/Mall aprox. 779 m

Proprietăți similare

Garsonieră decomandată, mobilată în Tineretului
114.900 €
București, Tineretului
1 camere
41 mp
Etaj 3 / 25
Garsonieră decomandată, mobilată în Tineretului
115.000 €
București, Tineretului
1 camere
30 mp
Etaj 6 / 25
Garsonieră decomandată, mobilată în Tineretului
125.000 €
București, Tineretului
1 camere
35 mp
Etaj 6 / 11
Garsonieră decomandată în Timpuri Noi
119.900 €
București, Timpuri Noi
1 camere
38 mp
Etaj 6
Garsonieră decomandată în Mărășești
122.500 €
București, Mărășești
1 camere
40 mp
Etaj 1
Garsonieră decomandată, mobilată în Văcăresti
125.000 €
București, Văcăresti
1 camere
37 mp
Etaj 6 / 10
Garsonieră decomandată în Văcăresti
125.000 €
București, Văcăresti
1 camere
40 mp
Etaj 6 / 10
Garsonieră decomandată în Timpuri Noi
120.000 €
București, Timpuri Noi
1 camere
38 mp
Etaj 6
Garsonieră decomandată în Giurgiului
125.000 € + TVA
București, Giurgiului
1 camere
89 mp
Etaj 2 / 3

Abonează-te la newsletter să fii primul care primește cele mai noi recomandări de proprietăți și sfaturi de la experți.