Metrou Berceni 500m – Nou – garsoniera 38mp – 79,739E

79.739 €

Berceni, Bucureşti

Nr. camere:
1
Suprafață utilă:
38 mp
Etaj:
2 / 5
An construcție:
2026
Nr. niveluri:
5

Descriere apartament

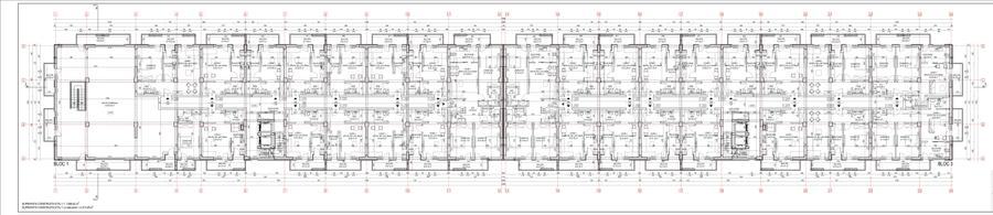
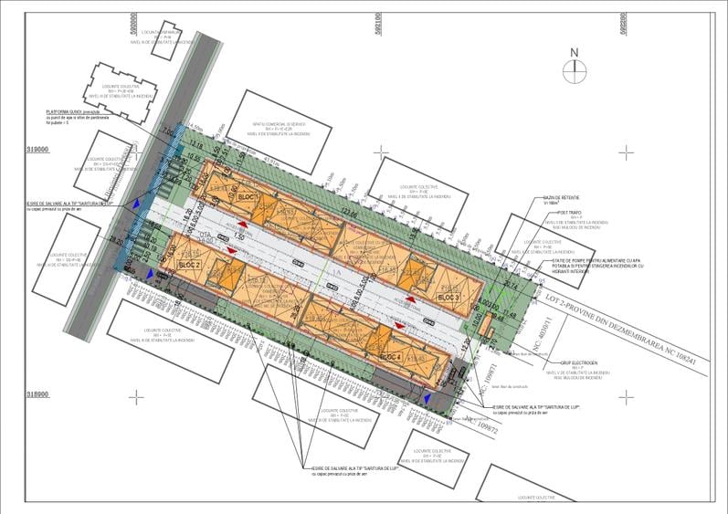
Metrou Berceni 500m – Nou – garsoniera 38mp – 79,739E Cel mai nou proiect din zona Metrou Berceni ofera spre vanzare garsoniere, si apartamente cu 2,3 si 4 camere, la doar 500m distanta de statia de Metrou Berceni Ansamblul va fi compus din 8 blocuri, S+P+5ET si se va edifica in 2 FAZE In Faza 1 se vor edifica blocurile 1 si 3 (stanga) si blocurile 2 si 4 (dreapta), in calcan. Subsolul este comun pentru blocurile 1 si 2. Parterul va detine exclusiv spatii comerciale iar pe fiecare etaj (cu exceptia etajului 1 din bloc 1), regasim 11 garsoniere, 2 apartamente cu 3 camere, 2 apartamente cu 2 camere si 1 apartament cu 4 camere Toate apartamentele beneficiaza de incalzire in pardoseala, aer conditionat si bucatarie mobilata (voucher 1500E) Garsoniere incepand de la 61,300 + tva (avans 50%) / 65,900 + tva (avans 15%) 2 camere - 95,700 + tva (avans 50%) / 102,900 + tva (avans 15%) 3 camere - 129,900 + tva (avans 50%) / 139,900 + tva (avans 15%) 4 camere – 168,300 + tva (avans 50%) / 181,000 + tva (avans 15%) Loc parcare subteran – 12,000 + tva Facilitati - gradinite, magazine, fructe&legume, restaurante, parc, piscina, salon, sala fitness, fastfood, restaurant chinezesc, cofetarie, spalatorie clinica,6 pizzerii, DM, 2 mega-image (unul Non Stop), 4 magazine Profi, Penny, spalatorie auto, magazin optica medicala, Carrefour Expres. Toate utilitatiile (apa,gaz,curent) contorizate individual Centrala Termica de bloc cu contorizare individual pe apartament Pentru ap de 3 si 4 camere- sistem de automatizare al incalzirii in pardoseala (cu mai multe termostate) 2 lifturi silentioase Panouri solare cu baterii - doar pentru spatiile comune Garsonierele si ap 2 camere au in standard DUS WALKIN cu sticla latime 100 cm Ap 3 si 4 camere au o baie cu cada si una cu dus walkin Bazin toaleta incastrat Tamplarie PVC Salamander cu geam TRIPAN Videointerfon Usi de intrare apartament metalica Gresie/ Faianta/ Parchet/ Obiecte sanitare - la alegere dintr-o gama variata Balcoane cu sticla securizata Beton + caramida tip bca (inclusiv peretii interiori) + izolatie polistiren expandat 10cm – Andrei
Citește mai mult Citește mai puțin
Confort 1 Decomandat Parțial mobilat Aer condiționat Centrală imobil Renovat

Detalii apartament

ID anunț: 3920437 Actualizat în: 23 Martie 2026
Nr. camere: 1
Suprafață utilă: 38 mp
Suprafață utilă totală: 38 mp
Compartimentare: Decomandat
Confort: 1
Etaj: Etaj 2 / 5
Nr. băi: 1
An construcție: 2026
Regim înălțime: P+5E

Istoric preț

Facilități

Pereți
Faianță Vopsea lavabilă
Podele
Gresie Parchet
Ușă intrare
Parchet Metal PVC
Uși interior
Celulare PVC
Stare interior
Renovat
Izolații termice
Exterior
Ferestre cu geam termopan
PVC
Contorizare
Contor gaz Apometre
Bucătărie
Mobilată
Mobilat
Parțial mobilat
Facilități imobil
Lift Videointerfon
Utilități
Gaze Curent Canalizare Apă
Sistem încălzire
Centrală imobil
Internet
Fibră optică
Climatizare
Aer condiționat
Amenajare străzi
Asfaltate Iluminat stradal Mijloace de transport în comun
Servicii imobil
Administrare Menaj

Puncte de interes

Mijloace transport
transport
Statia IMGB Poarta 2, linia 125, metrou M2
Mijloace transport aprox. 429 m
transport
Berceni (M2)
Mijloace transport aprox. 438 m
transport
Statia IMGB Poarta 1 linia 125
Mijloace transport aprox. 758 m
transport
Dimitrie Leonida (M2)
Mijloace transport aprox. 894 m
Școală
education
Colegiul Tehnic Miron Nicolescu
Învățământ aprox. 1270 m
education
Grupul Industrial "Dacia"
Învățământ aprox. 1898 m
Recreere
shopping
Nonni
Supermarket/Mall aprox. 121 m
shopping
WOW Market
Supermarket/Mall aprox. 273 m
parks
Parc
Recreere aprox. 474 m
restaurants
Pizza Italia
Restaurante aprox. 550 m

Proprietăți similare

Garsonieră semidecomandată, mobilată în Berceni
73.000 €
București, Berceni
1 camere
36 mp
Etaj 5 / 5
Garsonieră decomandată în Berceni
78.500 €
București, Berceni
1 camere
40 mp
Etaj 3
Garsonieră în Berceni
78.900 € + TVA
București, Berceni
1 camere
39,1 mp
Etaj 9
Garsonieră decomandată în Berceni
72.500 €
București, Berceni
1 camere
35 mp
Parter
Garsonieră decomandată în Berceni
72.000 €
București, Berceni
1 camere
36 mp
Parter
Garsonieră decomandată în Berceni
80.000 € + TVA
București, Berceni
1 camere
38,51 mp
Etaj 4 / 11
Garsonieră decomandată în Berceni
72.000 €
București, Berceni
1 camere
36 mp
Parter / 6
Garsonieră decomandată în Berceni
74.000 €
București, Berceni
1 camere
41 mp
Etaj 2
Garsonieră decomandată în Berceni
79.900 € + TVA
București, Berceni
1 camere
39,06 mp
Parter

Abonează-te la newsletter să fii primul care primește cele mai noi recomandări de proprietăți și sfaturi de la experți.