Garsoniera Policlinica Titan-Parcul Titanii

48.000 €

Titan, Bucureşti

Nr. camere:
1
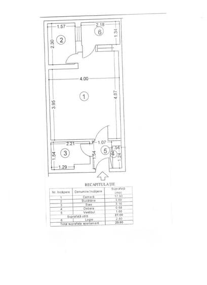
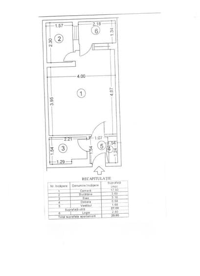
Suprafață utilă:
29,8 mp
Etaj:
10 / 10
An construcție:
1966
Nr. niveluri:
10

Descriere apartament

Garsoniera nerenovata, suprafata 29,8 mp, etaj 10/10, orientare spre est, bloc anvelopat, logie inchisa cu termopan (suprafata logiei se adauga la suprafata utila), bloc cu 4 lifturi din care unul de capacitate mare, an constructie 1966.Bloc este situat langa Policlinica Titan, si parcul Titanii, la 5 minute de Piata Salajan (Titan 1), la 10 minute de statiile de metru Nicolae Grigorescu si Titan, de Galeriile Titan si parcul IOR.Pretul este 48.000 euro, negociabil.
Citește mai mult Citește mai puțin

Detalii apartament

ID anunț: 4014106 Actualizat în: 02 Aprilie 2026
Nr. camere: 1
Suprafață utilă: 29,8 mp
Suprafață utilă totală: 29,8 mp
Etaj: Etaj 10 / 10
An construcție: 1966
Regim înălțime: P+10E

Istoric preț

Puncte de interes

Mijloace transport
transport
Metrorex.Statia Titan (M1)
Mijloace transport aprox. 224 m
transport
Titan
Mijloace transport aprox. 239 m
transport
Statia Liviu Rebreanu / Posta Titan, linia 253, 311, 330, 335, N104, 101, 102,92
Mijloace transport aprox. 243 m
transport
Liviu Rebreanu
Mijloace transport aprox. 243 m
Școală
education
Gradinita nr.69
Învățământ aprox. 190 m
education
Cresa nr. 2 Titan
Învățământ aprox. 337 m
education
School 195, new building (en)
Învățământ aprox. 353 m
education
Gradinita de copii nr.191
Învățământ aprox. 358 m
Recreere
parks
Parc
Recreere aprox. 113 m
restaurants
Nufarul Titan
Restaurante aprox. 180 m
shopping
Usi metalice
Supermarket/Mall aprox. 199 m
shopping
Shop&Go Nicolae Grigorescu 20
Supermarket/Mall aprox. 229 m

Proprietăți similare

Garsonieră în Titan
45.500 €
București, Titan
1 camere
17 mp
Etaj 6
Garsonieră decomandată, mobilată în Titan
51.500 €
București, Titan
1 camere
26 mp
Etaj 1
Garsonieră în Titan
52.000 €
București, Titan
1 camere
27 mp
Garsonieră în Titan
50.000 €
București, Titan
1 camere
38 mp
Garsonieră în Titan
45.000 €
București, Titan
1 camere
26 mp
1978
Garsonieră decomandată, mobilată în Titan
51.000 €
București, Titan
1 camere
28 mp
Etaj 1 / 10
Garsonieră în Titan
48.000 €
București, Titan
1 camere
40 mp
1980
Garsonieră în Titan
44.000 €
București, Titan
1 camere
18 mp
Etaj 10
Garsonieră decomandată în Titan
45.000 €
București, Titan
1 camere
31 mp
Etaj 10

Abonează-te la newsletter să fii primul care primește cele mai noi recomandări de proprietăți și sfaturi de la experți.