Garsoniera - Hills Pallady - Metrou 3 minute | Mobilata si utilata - Bloc 2022

87.900 €

Theodor Pallady, Bucureşti

Nr. camere:
1
Suprafață utilă:
30 mp
Etaj:
10 / 11
An construcție:
2022
Nr. niveluri:
11

Descriere apartament

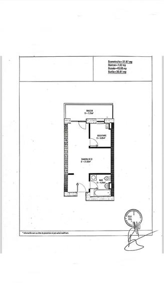
Avem deosebita placere sa va prezentam spre vanzare o garsoniera semidecomandata cu o suprafata utila de 37mp. Aceasta este situata la etajul 10/11 al unui imobil finalizat in 2022. Blocul dispune de paza umana, supraveghere video si diferite magazine. → Localizare : Aceasta se afla la doar 3 minute acces pietonal fata de statia de Metrou Anghel Saligny. Este amplasat in apropierea celor 3 puncte de interes : Bulevardul Theodor Pallady, Autostrada A3 si Splaiul Unirii. → Detalii proprietate : → Aceasta se vinde complet mobilata si utilata ( fara cateva obiecte personale). → Incalzirea se face prin intermediul centralei termice proprii, cu calorifere. →Compartimentarea este in felul urmator ( vezi schita in ultima poza, sau la sectiunea schite ). 1. Camera de zi - 21.02 mp 2. Bucatarie - 5.05 mp 3. Baie - 4.54 mp →Suprafata utila = 30.61mp 4.Balcon - 7.79 mp →Suprafata Totala cu balcon = 37.87 mp →Detalii imobil : → Ansamblu rezidential, cu paza umana 24/24, supraveghere video. MegaImage in incinta complxului si 5 To Go. → Optional, se poate achizitiona contracost loc de parcare suprateran ( 10.000 euro). → Detalii suplimentare : → Proprietatea este inchiriata in prezent, se poate achizitiona ca si investitie, chiriasul ramanand in proprietate, sau se poate elibera, dupa achizitie. → Vizionarile se stabilesc cu o programare in prealabil, fiind inchiriata. Alte detalii financiare : → Se accepta orice modalitate de plata, fie transfer bancar sau credit ipotecar. → Comision cumparator : 3% din pretul de tranzactionare. → Proprietar persoana fizica, nu se aduga tva. →Se accepta orice metoda de plata, fie ca este achitarea integrala ( transfer bancar ), fie prin credit. →Pentru varianta creditarii, va stam la dispozitie gratuit cu echipa, cat si pentru toata procedura juridica de achizitie. → Alte detalii pret : → Proprietar persoana fizica, NU se aduga TVA. → Pret negociabil, se accepta oferte. → Comision agentie : Standard. → Pentru mai multe informatii, detalii, poze, va rugam sa contactati broker-ul care se ocupa de proprietate. Vecinatati : Statia de metrou Anghel Saligny - 2 minute pe jos - in fata ansamblului Bulevardul Theodor Pallady Ikea Pallady Autostrada A3 Parcul Teilor Parcul IOR Metro Pallady Jumbo Pallady Metrou Nicolae Teclu Bulevardul 1 Decembrie 1918 Centura Bucuresti Garsoniera de vanzare in Hills Pallady Hills Pallady de vanzare
Citește mai mult Citește mai puțin
Confort 1 Semidecomandat

Detalii apartament

ID anunț: 111649 Actualizat în: 03 Octombrie 2025
Nr. camere: 1
Suprafață utilă: 30 mp
Suprafață utilă totală: 30 mp
Compartimentare: Semidecomandat
Confort: 1
Etaj: Etaj 10 / 11
Nr. băi: 1
An construcție: 2022
Regim înălțime: P+11E

Istoric preț

Facilități

Utilități
Apă Climă Canalizare Mașină de spălat rufe Frigider Aragaz / Plită TV
Facilități
Mobilat Lift Balcon

Puncte de interes

Mijloace transport
transport
Anghel Saligny
Mijloace transport aprox. 108 m
transport
Metrorex.Staţia Anghel Saligny (M3)(2008)
Mijloace transport aprox. 185 m
transport
Intrare sat Catelu, Linia 246
Mijloace transport aprox. 211 m
transport
Anghel Saligny, linia M3
Mijloace transport aprox. 306 m
Școală
education
Spectrum Liceul Teoretic International de Informatica
Învățământ aprox. 516 m
education
Scoala gimnaziala nr.2 - Catelu
Învățământ aprox. 911 m
education
Gradinita Confort City
Învățământ aprox. 1803 m
Recreere
shopping
Jumbo Pallady
Supermarket/Mall aprox. 465 m
shopping
Real hypermarket
Supermarket/Mall aprox. 486 m
restaurants
Hotel MARI VILA
Restaurante aprox. 785 m
parks
Parc
Recreere aprox. 1032 m

Proprietăți similare

Garsonieră decomandată în Theodor Pallady
83.000 € + TVA
București, Theodor Pallady
1 camere
36,26 mp
Etaj 10 / 10
Garsonieră decomandată, mobilată în Theodor Pallady
85.000 €
București, Theodor Pallady
1 camere
41 mp
Parter
Garsonieră decomandată, mobilată în Theodor Pallady
80.000 €
București, Theodor Pallady
1 camere
37,4 mp
Etaj 7
Garsonieră semidecomandată în Theodor Pallady
84.000 €
București, Theodor Pallady
1 camere
30 mp
Etaj 1
Garsonieră decomandată în Theodor Pallady
83.000 € + TVA
București, Theodor Pallady
1 camere
36,26 mp
Etaj 10 / 10
Garsonieră decomandată în Theodor Pallady
84.900 €
București, Theodor Pallady
1 camere
40,1 mp
Parter / 3
Garsonieră decomandată, mobilată în Theodor Pallady
85.500 €
București, Theodor Pallady
1 camere
35 mp
Etaj 3
Garsonieră în Theodor Pallady
84.000 € + TVA
București, Theodor Pallady
1 camere
37,52 mp
Etaj 1 / 11
Garsonieră în Theodor Pallady
84.000 € + TVA
București, Theodor Pallady
1 camere
37,52 mp
Etaj 1 / 11

Abonează-te la newsletter să fii primul care primește cele mai noi recomandări de proprietăți și sfaturi de la experți.