Dezvoltator, garsoniera, et.1 - Iancului/ Metrou Comision 0% !

133.000 €

Iancului, Bucureşti

Nr. camere:
1
Suprafață utilă:
34,6 mp
Etaj:
1 / 2
An construcție:
2024
Nr. niveluri:
2

Descriere apartament

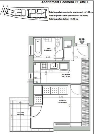
Va oferim spre vanzare o garsoniera situata intr-un bloc nou construit din zona Iancului/Sector 2. Amplasamentul este de exceptie, imobilul fiind ideal pentru persoane si familii care doresc sa aiba in apropiere principalele puncte de interes, unde puteti avea acces facil catre: mijloace de transport in comun, statia de metrou Iancului, , scoli si licee de renume, gradinite, supermarketuri, farmacii. Imobilul dispune de lift si curte. DESCRIERE: - Etaj 1/P+2E+M - O camera, baie, bucatarie, hol, bacon - Suprafata utila 34.6 mp - Suprafata totala 41.9 mp - Suprafata terasa 5.1 mp Apartamentul este amenajat cu finisaje premium, incalzire in pardoseala, termopane. usa metalica si centrala proprie. Imobilul dispune de parcare subterana si se poate achizitiona separat, pretul acestuia fiind de 20.000 euro + Tva. ID: CP2075713 PRET: 133.000 Euro+Tva TEL .:
Citește mai mult Citește mai puțin
Decomandat Curte comună Aer condiționat Centrală proprie

Detalii apartament

ID anunț: 312473 Actualizat în: 02 Aprilie 2026
Nr. camere: 1
Suprafață utilă: 34,6 mp
Suprafață utilă totală: 34,6 mp
Compartimentare: Decomandat
Etaj: Etaj 1 / 2
Nr. băi: 1
An construcție: 2024
Regim înălțime: P+2E

Istoric preț

Facilități

Pereți
Faianță Vopsea lavabilă
Podele
Gresie Parchet
Ușă intrare
Parchet Metal
Uși interior
Celulare
Izolații termice
Exterior Interior
Utilități
Curent Apă Canalizare Gaze Cablu
Sistem încălzire
Centrală proprie
Internet
Cablu
Climatizare
Aer condiționat
Amenajare străzi
Iluminat stradal Mijloace de transport în comun Asfaltate
Facilități imobil
Curte comună

Puncte de interes

Mijloace transport
transport
Statia Mecet linia 90,86
Mijloace transport aprox. 61 m
transport
Matasari
Mijloace transport aprox. 286 m
transport
Statia Matasari linia 55
Mijloace transport aprox. 308 m
transport
Matasari
Mijloace transport aprox. 324 m
Școală
education
Universitatea Nationala de Arta Teatrala si Cinematografica
Învățământ aprox. 193 m
education
Amalia's Kindergarten (en)
Învățământ aprox. 224 m
education
Montessori Kindergarden of Bucharest
Învățământ aprox. 249 m
education
Facultatea de Instalatii (en)
Învățământ aprox. 251 m
Recreere
restaurants
art club (en)
Restaurante aprox. 153 m
parks
Parc
Recreere aprox. 236 m
shopping
InterMacedonia
Supermarket/Mall aprox. 596 m
shopping
White Jaguar
Supermarket/Mall aprox. 619 m

Proprietăți similare

Garsonieră decomandată în Iancului
123.950 €
București, Iancului
1 camere
34 mp
Etaj 1
Garsonieră în Obor
132.000 € + TVA
București, Obor
1 camere
51 mp
Etaj 2 / 4
Garsonieră decomandată în Obor
131.500 € + TVA
București, Obor
1 camere
44 mp
Etaj 3 / 17
Garsonieră semidecomandată în Pache Protopopescu
121.297 € + TVA
București, Pache Protopopescu
1 camere
30,47 mp
Parter / 5
Garsonieră decomandată în Ștefan cel Mare
131.901 € + TVA
București, Ștefan cel Mare
1 camere
34,7 mp
Etaj 2 / 3
Garsonieră semidecomandată în Obor
132.000 € + TVA
București, Obor
1 camere
36,9 mp
Etaj 2 / 4
Garsonieră decomandată în Ștefan cel Mare
138.122 €
București, Ștefan cel Mare
1 camere
34 mp
Parter
Garsonieră decomandată, mobilată în Lacul Tei
139.900 €
București, Lacul Tei
1 camere
45 mp
Etaj 2
Garsonieră semidecomandată, mobilată în Obor
135.000 €
București, Obor
1 camere
34 mp
Etaj 8 / 10

Abonează-te la newsletter să fii primul care primește cele mai noi recomandări de proprietăți și sfaturi de la experți.