Apartament 1 cameră Păcurari/Kaufland/Moldova Mall - etaj 1, cu boxa

89.000 €

Păcurari, Iaşi

Nr. camere:
1
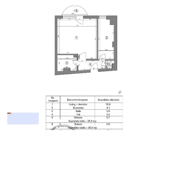
Suprafață utilă:
40 mp
Etaj:
1 / 8
An construcție:
1990
Nr. niveluri:
8

Descriere apartament

Apartament Păcurari – combinatie ideala si rara de confort, accesibilitate și calitatea construcției Dacă îți dorești un apartament care îmbină inteligent calitatea construcției cu accesul rapid la facilități și mobilitate urbană, această proprietate din Păcurari este alegerea potrivită. Proprietatea se remarcă printr-un avantaj rar: echilibrul dintre o construcție solidă, facilități la îndemână și mobilitate eficientă, fără aglomerația specifică zonelor centrale dominate de imobile vechi și fără disconfortul generat de distanțele mari și timpul petrecut în trafic din zonele limitrofe cu dezvoltări noi. 📍 Localizare Blocul este amplasat la bulevard, dar cu vedere în spate, oferind un echilibru ideal între accesibilitate și liniște. În imediata apropiere: • Stație de transport public chiar în fața blocului • Supermarketuri (Kaufland, Profi non stop) • Moldova Mall – la câteva minute • Sală de sport • Benzinării (Petrom, OMV) • Farmacii și clinică stomatologică • Școli și grădinițe 🏠 Detalii apartament: • Suprafață utilă: 39 mp (intabulată) • Etaj 1 din 8 • Compartimentare decomandată • Debara (spațiu de depozitare) • Boxă proprie la subsol 🔧 Dotări și îmbunătățiri: • Apartament renovat în ultimii ani • Centrală termică proprie pe gaz • Tâmplărie PVC (inclusiv balcon) • Locuință bine întreținută, gata de mutare 🏢 Bloc și facilități • Bloc pe cadre, construit în 1990, fără risc seismic • Scară foarte bine întreținută, cu modernizări recente • Lift nou • Ușă nouă la intrare • Videointerfon și supraveghere video • Subsol curat și electrificat • Vecini liniștiți
Citește mai mult Citește mai puțin
Confort 1 Decomandat Parțial mobilat Centrală proprie Renovat

Detalii apartament

ID anunț: 3840001 Actualizat în: 20 Martie 2026
Nr. camere: 1
Suprafață utilă: 40 mp
Suprafață utilă totală: 40 mp
Compartimentare: Decomandat
Confort: 1
Etaj: Etaj 1 / 8
Nr. băi: 1
An construcție: 1990
Regim înălțime: P+8E

Istoric preț

Facilități

Utilități
Canalizare Gaze Apă Supraveghere video
Sistem încălzire
Centrală proprie
Mobilat
Parțial mobilat
Stare interior
Renovat
Servicii imobil
Administrare Supraveghere video Menaj

Puncte de interes

Mijloace transport
transport
Statia "Pacurari", linia 18,20,43,43c,46
Mijloace transport aprox. 16 m
transport
Rond Pacurari
Mijloace transport aprox. 108 m
transport
Peco OMV
Mijloace transport aprox. 283 m
transport
Statia "Rond Canta", linia 30b
Mijloace transport aprox. 301 m
Școală
education
Sc Gen Elena Cuza
Învățământ aprox. 808 m
education
Gradinita cu program normal nr.15
Învățământ aprox. 900 m
education
Gradinita Nr. 9
Învățământ aprox. 906 m
education
Gradinita nr 15
Învățământ aprox. 984 m
Recreere
restaurants
Tester
Restaurante aprox. 32 m
parks
Teren sportiv
Recreere aprox. 158 m
shopping
Kaufland (Pacurari)
Supermarket/Mall aprox. 262 m
shopping
Kaufland Pacurari
Supermarket/Mall aprox. 268 m

Proprietăți similare

Garsonieră decomandată în Păcurari
89.000 €
Iași, Păcurari
1 camere
40 mp
Etaj 8
Garsonieră decomandată în Păcurari
87.824 €
Iași, Păcurari
1 camere
37 mp
Demisol
Garsonieră decomandată, mobilată în Păcurari
89.000 €
Iași, Păcurari
1 camere
40 mp
Etaj 8
Garsonieră decomandată în Păcurari
85.890 €
Iași, Păcurari
1 camere
38 mp
Etaj 7 / 7
Garsonieră decomandată în Păcurari
95.182 € + TVA
Iași, Păcurari
1 camere
38,85 mp
Etaj 6 / 9
Garsonieră decomandată în Păcurari
87.824 €
Iași, Păcurari
1 camere
39,7 mp
Parter
Garsonieră decomandată în Păcurari
92.759 €
Iași, Păcurari
1 camere
46,47 mp
Etaj 4
Garsonieră decomandată în Păcurari
89.000 €
Iași, Păcurari
1 camere
40 mp
Etaj 8
Garsonieră decomandată în Podul de Fier
85.000 €
Iași, Podul de Fier
1 camere
34 mp
Etaj 2

Abonează-te la newsletter să fii primul care primește cele mai noi recomandări de proprietăți și sfaturi de la experți.