PF vand apartament 1 camera

105.000 €

Floreşti, Judeţul Cluj

Nr. camere:
1
Suprafață utilă:
40 mp
Etaj:
3

Descriere apartament

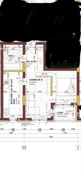
Persoana fizica vand apartament 1 camera. Bloc nou construit! Suprafata apartamentului 40mp Parcare subterana nr 32 Etajul 3 cu privire spre Lidl In poze se vede planul apartamentului. Casa scari este asa cum se vede in poza, poze reale! Interiorul este in proces de 90% gata! Baia este facuta, Va fi vopsit pereti, cu parchet si usi de interior! Bucataria probabil va fi mobilata, inca nu e 100% decis dar putem discuta despre asta la telefon. Apartamentul va fi facut in totalitate,ce va trebui e doar mobilierul personalizat de proprietarul final! Blocur are lift! Poza cu parcarea subterana chiar la intrare pe partea stanga. Statie autobuz in fata blocului! Este un bloc mai special cu magazine la parter si vizavi se va construi un Mall pe viitor. Potential si ca investitie pe termen lung. Blocul este construit langa cimitirul Central Parcarea se vinde separat, sau impreuna la un comun acord. Eu sunt proprietarul si se vinde fara comision direct de la noul proprietar. Pt orce informati astept sa imi scrieti in mesaje.
Citește mai mult Citește mai puțin
Decomandat

Detalii apartament

ID anunț: 3954412 Actualizat în: 26 Martie 2026
Nr. camere: 1
Suprafață utilă: 40 mp
Suprafață utilă totală: 40 mp
Compartimentare: Decomandat
Etaj: Etaj 3

Istoric preț

Puncte de interes

Mijloace transport
transport
Iuliu Hossu
Mijloace transport aprox. 297 m
transport
M-Complex Floresti
Mijloace transport aprox. 432 m
transport
Primaria Floresti N
Mijloace transport aprox. 527 m
transport
Primaria Floresti S
Mijloace transport aprox. 529 m
Recreere
shopping
Diana
Supermarket/Mall aprox. 150 m
restaurants
Silviu
Restaurante aprox. 280 m
shopping
Lidl
Supermarket/Mall aprox. 651 m
parks
Parc
Recreere aprox. 815 m

Proprietăți similare

Garsonieră în Florești
99.801 €
Județul Cluj, Florești
1 camere
54,14 mp
Parter / 4
Garsonieră în Florești
95.000 €
Județul Cluj, Florești
1 camere
40 mp
Etaj 3
Garsonieră decomandată, mobilată în Florești
110.000 €
Județul Cluj, Florești
1 camere
41,8 mp
Etaj 3
Garsonieră decomandată în Florești
109.000 €
Județul Cluj, Florești
1 camere
41 mp
Garsonieră în Florești
96.000 €
Județul Cluj, Florești
1 camere
35 mp
Garsonieră semidecomandată, mobilată în Florești
99.000 €
Județul Cluj, Florești
1 camere
41 mp
Parter
Garsonieră decomandată, mobilată în Florești
98.000 €
Județul Cluj, Florești
1 camere
43 mp
Etaj 2
Garsonieră decomandată în Florești
95.000 €
Județul Cluj, Florești
1 camere
35 mp
Etaj 2
Garsonieră decomandată, mobilată în Florești
104.900 €
Județul Cluj, Florești
1 camere
43 mp
Etaj 2 / 3

Abonează-te la newsletter să fii primul care primește cele mai noi recomandări de proprietăți și sfaturi de la experți.