Studio parter 50mp cu terasa 22mp Busteni Zamora DIRECT PROPRIETAR

79.500 €

Buşteni, Judeţul Prahova

Nr. camere:
1
Suprafață utilă:
50 mp
Etaj:
Parter / 2
An construcție:
2025
Nr. niveluri:
2

Descriere apartament

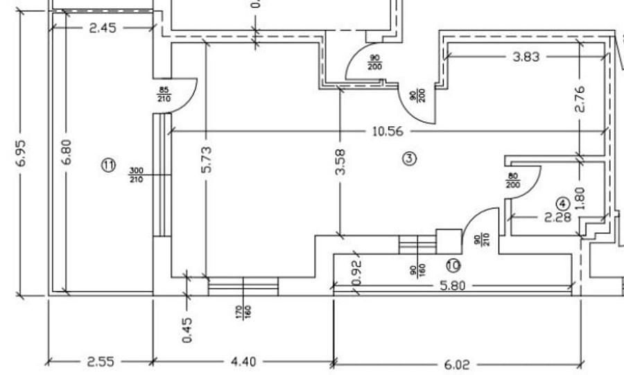
Apartament studio de vanzare in Busteni, situat in zona Zamora. Apartamentul face parte dintr-un imobil nou, 2025, construit pe Parter + Etaj + Mansarda. Apartamentul se afla la parter si este compus din living, open space, dormitor, baie si 2 terase de 6 si 16 m patrati utili cu vedere spre munte. Zona in care este situat ii confera viitorului proprietar acces rapid si usor la centre comerciale care se afla in apropiere de apartament/imobil si de majoritatea zonelor de interes turistic. Prin designul intregului imobil dar si prin constructia apartamentului, viitorul proprietar se va putea bucura de un stil de viata modern si relaxant! Studioul este dotat cu centrala proprie pe gaze si sistem de incazilre clasic pe calorifere. De
Citește mai mult Citește mai puțin
Confort 1 Decomandat Zonă de deal / munte

Detalii apartament

ID anunț: 320564 Actualizat în: 10 Martie 2026
Nr. camere: 1
Suprafață utilă: 50 mp
Suprafață utilă totală: 50 mp
Compartimentare: Decomandat
Confort: 1
Etaj: Parter / 2
An construcție: 2025
Regim înălțime: P+2E

Istoric preț

Puncte de interes

Recreere
parks
Parcul Schiel
Recreere aprox. 925 m
parks
Teren sportiv
Recreere aprox. 1126 m
restaurants
Pensiune Casa Alba
Restaurante aprox. 1447 m
restaurants
Pensiunea Casa Magica 3*
Restaurante aprox. 1521 m

Proprietăți similare

Garsonieră nedecomandată în Zamora
75.000 €
Județul Prahova, Bușteni
1 camere
28 mp
Etaj 2
Garsonieră decomandată în Zamora
82.000 €
Județul Prahova, Bușteni
1 camere
49 mp
Parter
Garsonieră în Zamora
79.500 €
Județul Prahova, Bușteni
1 camere
70 mp
Parter / 2
Garsonieră nedecomandată în Central
75.000 €
Județul Prahova, Bușteni
1 camere
28 mp
Etaj 2 / 3
Garsonieră circulară, mobilată în Cezar Petrescu
78.000 €
Județul Prahova, Bușteni
1 camere
46,6 mp
Etaj 3 / 4
Garsonieră semidecomandată, mobilată în Platoul Izvor
85.000 € + TVA
Județul Prahova, Sinaia
1 camere
36 mp
Etaj 4 / 10
Garsonieră decomandată în Central
87.000 €
Județul Prahova, Sinaia
1 camere
40 mp
Etaj 5 / 10
Garsonieră semidecomandată în Furnica
82.390 € + TVA
Județul Prahova, Sinaia
1 camere
28,1 mp
Demisol / 4
Garsonieră decomandată, mobilată în Ultracentral
75.000 €
Ploiești, Ultracentral
1 camere
40 mp
Etaj 1 / 4

Abonează-te la newsletter să fii primul care primește cele mai noi recomandări de proprietăți și sfaturi de la experți.