Garsoniera decomandata de 40 mp, bloc nou, parcare si boxa

96.000 €

Avantgarden, Braşov

Nr. camere:
1
Suprafață utilă:
40 mp
Etaj:
4 / 8
An construcție:
2025
Nr. niveluri:
8

Descriere apartament

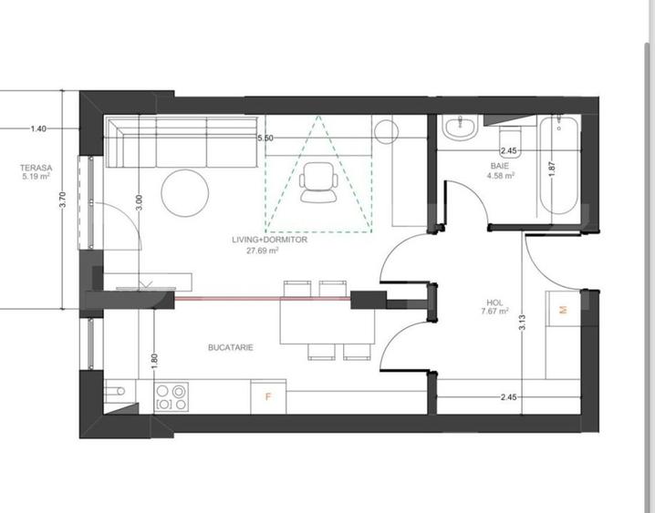
BLITZ va propune spre vanzare o garsoniera eleganta si eficient compartimentata, situata intr-un bloc nou finalizat in 2025, in inima cartierului Avantgarden - Faza V. Ideala pentru cei care cauta confort, eficienta si un stil de viata modern! Detalii esentiale: Suprafata utila: 40 mp + balcon de 5 mp Etaj: 4 din 4 Compartimentare decomandata: hol generos, baie, bucatarie separata si dormitor Perete mobil - permite transformarea in open-space cand ai nevoie de mai mult spatiu Se vinde nemobilata, ideala pentru a fi personalizata dupa gustul tau Facilitati incluse: Loc de parcare propriu Boxa pentru depozitare, perfecta pentru obiectele sezoniere sau suplimentare Confort termic la standarde europene: Incalzire prin centrala de bloc cu calorifere - eficienta, siguranta si consum controlat Izolatie cu vata bazaltica de 10 cm - temperatura optima si costuri reduse Bloc premium: Design modern, cu fatada si spatii comune de lux Constructie solida, cu finisaje de calitate superioara Avantgarden - un cartier complet: Supermarketuri, cafenele, servicii medicale, farmacii, parcuri si zone de relaxare Acces facil la transportul in comun Comunitate tanara, linistita si bine organizata Se poate achizitiona cu cash sau prin credit bancar. Contacteaza-ne acum si programeaza o vizionare! Aceasta garsoniera ofera un mix rar de functionalitate, confort si stil - nu rata ocazia sa devina noua ta locuinta! Cod oferta / ID BLITZ: P146997
Citește mai mult Citește mai puțin
Confort 1 Decomandat

Detalii apartament

ID anunț: 285924 Actualizat în: 13 Septembrie 2025
Nr. camere: 1
Suprafață utilă: 40 mp
Suprafață utilă totală: 40 mp
Suprafață construită: 40 mp
Compartimentare: Decomandat
Confort: 1
Etaj: Etaj 4 / 8
Nr. băi: 1
An construcție: 2025
Regim înălțime: P+8E

Istoric preț

Facilități

Utilități
Apă Gaze Canalizare
Facilități
Balcon Boxă Lift

Puncte de interes

Mijloace transport
transport
Facultativa
Mijloace transport aprox. 195 m
transport
Molnar Janos
Mijloace transport aprox. 354 m
transport
Statia "Molnar Janos", linia 28
Mijloace transport aprox. 360 m
transport
Camine IAR
Mijloace transport aprox. 369 m
Școală
education
Gradinita privata Happy Kids
Învățământ aprox. 865 m
education
Gradinita cu program normal nr. 5 (fosta nr. 20)
Învățământ aprox. 939 m
education
Gradinita cu program prelungit nr. 6 (fosta nr. 35)
Învățământ aprox. 1229 m
education
Institutul de Cercetare Dezvoltare Inovare Produse High tech pentru Dezvoltare Durabila
Învățământ aprox. 1259 m
Recreere
shopping
Rapid Gospodarilor
Supermarket/Mall aprox. 507 m
restaurants
Pizza Saltinbocca
Restaurante aprox. 910 m
parks
Fosta cariera de piatra Bartolomeu
Recreere aprox. 1073 m
shopping
Auchan
Supermarket/Mall aprox. 1160 m

Proprietăți similare

Garsonieră decomandată în Avantgarden
103.000 €
Brașov, Avantgarden
1 camere
40 mp
Etaj 5 / 5
Garsonieră decomandată, mobilată în Avantgarden
95.000 €
Brașov, Avantgarden
1 camere
38 mp
Etaj 2 / 7
Garsonieră decomandată, mobilată în Avantgarden
103.000 €
Brașov, Avantgarden
1 camere
36 mp
Etaj 7 / 8
Garsonieră decomandată în Avantgarden
102.000 €
Brașov, Avantgarden
1 camere
39 mp
Etaj 6 / 8
Garsonieră decomandată, mobilată în Avantgarden
103.000 €
Brașov, Avantgarden
1 camere
38 mp
Etaj 3 / 8
Garsonieră decomandată în Avantgarden
90.000 €
Brașov, Avantgarden
1 camere
41 mp
Demisol
Garsonieră decomandată în Avantgarden
87.500 €
Brașov, Avantgarden
1 camere
36 mp
Etaj 1 / 8
Garsonieră decomandată în Avantgarden
97.000 €
Brașov, Avantgarden
1 camere
33 mp
Etaj 1 / 8
Garsonieră decomandată în Avantgarden
95.500 €
Brașov, Avantgarden
1 camere
39 mp
Etaj 2 / 6

Abonează-te la newsletter să fii primul care primește cele mai noi recomandări de proprietăți și sfaturi de la experți.